State Form 49008 Notice of Intent to Construct a Water Main Extension - Indiana

State Form 49008 Notice of Intent to Construct a Water Main Extension - Indiana

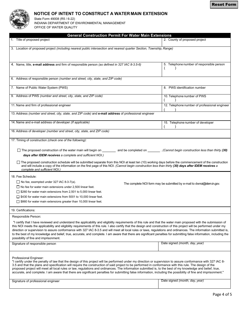
What Is State Form 49008?

This is a legal form that was released by the Indiana Department of Environmental Management - a government authority operating within Indiana. As of today, no separate filing guidelines for the form are provided by the issuing department.

Form Details:

  • Released on June 1, 2022;
  • The latest edition provided by the Indiana Department of Environmental Management;
  • Easy to use and ready to print;
  • Quick to customize;
  • Compatible with most PDF-viewing applications;
  • Fill out the form in our online filing application.

Download a fillable version of State Form 49008 by clicking the link below or browse more documents and templates provided by the Indiana Department of Environmental Management.

ADVERTISEMENT

Other Revision

Download State Form 49008 Notice of Intent to Construct a Water Main Extension - Indiana

4.4 of 5 (79 votes)
  • State Form 49008 Notice of Intent to Construct a Water Main Extension - Indiana

    1

  • State Form 49008 Notice of Intent to Construct a Water Main Extension - Indiana, Page 2

    2

  • State Form 49008 Notice of Intent to Construct a Water Main Extension - Indiana, Page 3

    3

  • State Form 49008 Notice of Intent to Construct a Water Main Extension - Indiana, Page 4

    4

  • State Form 49008 Notice of Intent to Construct a Water Main Extension - Indiana, Page 5

    5

  • State Form 49008 Notice of Intent to Construct a Water Main Extension - Indiana, Page 1
  • State Form 49008 Notice of Intent to Construct a Water Main Extension - Indiana, Page 2
  • State Form 49008 Notice of Intent to Construct a Water Main Extension - Indiana, Page 3
  • State Form 49008 Notice of Intent to Construct a Water Main Extension - Indiana, Page 4
  • State Form 49008 Notice of Intent to Construct a Water Main Extension - Indiana, Page 5
Prev 1 2 3 4 5 Next
ADVERTISEMENT

Related Documents