State Form 49008 Notice of Intent to Construct a Water Main Extension - Indiana

Notification Icon This version of the form is not currently in use and is provided for reference only. Download this version of State Form 49008 for the current year.

State Form 49008 Notice of Intent to Construct a Water Main Extension - Indiana

What Is State Form 49008?

This is a legal form that was released by the Indiana Department of Environmental Management - a government authority operating within Indiana. As of today, no separate filing guidelines for the form are provided by the issuing department.

FAQ

Q: What is Form 49008?
A: Form 49008 is a notice of intent to construct a water main extension in Indiana.

Q: When is Form 49008 required?
A: Form 49008 is required when there is intent to construct a water main extension in Indiana.

Q: Is there a fee for submitting Form 49008?
A: The fee for submitting Form 49008 may vary depending on the specific requirements of the local government or regulatory agency.

Q: Are there any specific guidelines or requirements for completing Form 49008?
A: Yes, there may be specific guidelines or requirements for completing Form 49008, such as providing detailed plans and specifications for the water main extension.

Q: How should I submit Form 49008?
A: You should submit Form 49008 to the appropriate local government or regulatory agency as specified in the instructions provided with the form.

Q: What is the purpose of Form 49008?
A: The purpose of Form 49008 is to notify the relevant authorities of the intent to construct a water main extension in Indiana.

Q: What are the consequences of not submitting Form 49008?
A: Not submitting Form 49008 when required may result in penalties or delays in the construction of the water main extension.

Q: Can I request an extension to submit Form 49008?
A: It is necessary to check with the local government or regulatory agency regarding the possibility of requesting an extension for submitting Form 49008.

ADVERTISEMENT

Form Details:

  • Released on March 1, 2020;
  • The latest edition provided by the Indiana Department of Environmental Management;
  • Easy to use and ready to print;
  • Quick to customize;
  • Compatible with most PDF-viewing applications;
  • Fill out the form in our online filing application.

Download a fillable version of State Form 49008 by clicking the link below or browse more documents and templates provided by the Indiana Department of Environmental Management.

Download State Form 49008 Notice of Intent to Construct a Water Main Extension - Indiana

4.4 of 5 (67 votes)
  • State Form 49008 Notice of Intent to Construct a Water Main Extension - Indiana

    1

  • State Form 49008 Notice of Intent to Construct a Water Main Extension - Indiana, Page 2

    2

  • State Form 49008 Notice of Intent to Construct a Water Main Extension - Indiana, Page 3

    3

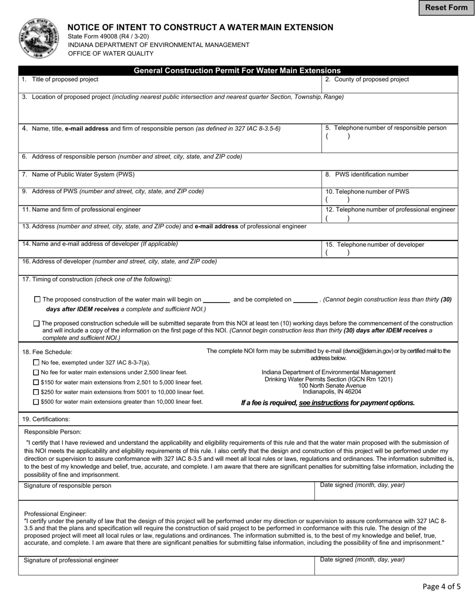
  • State Form 49008 Notice of Intent to Construct a Water Main Extension - Indiana, Page 4

    4

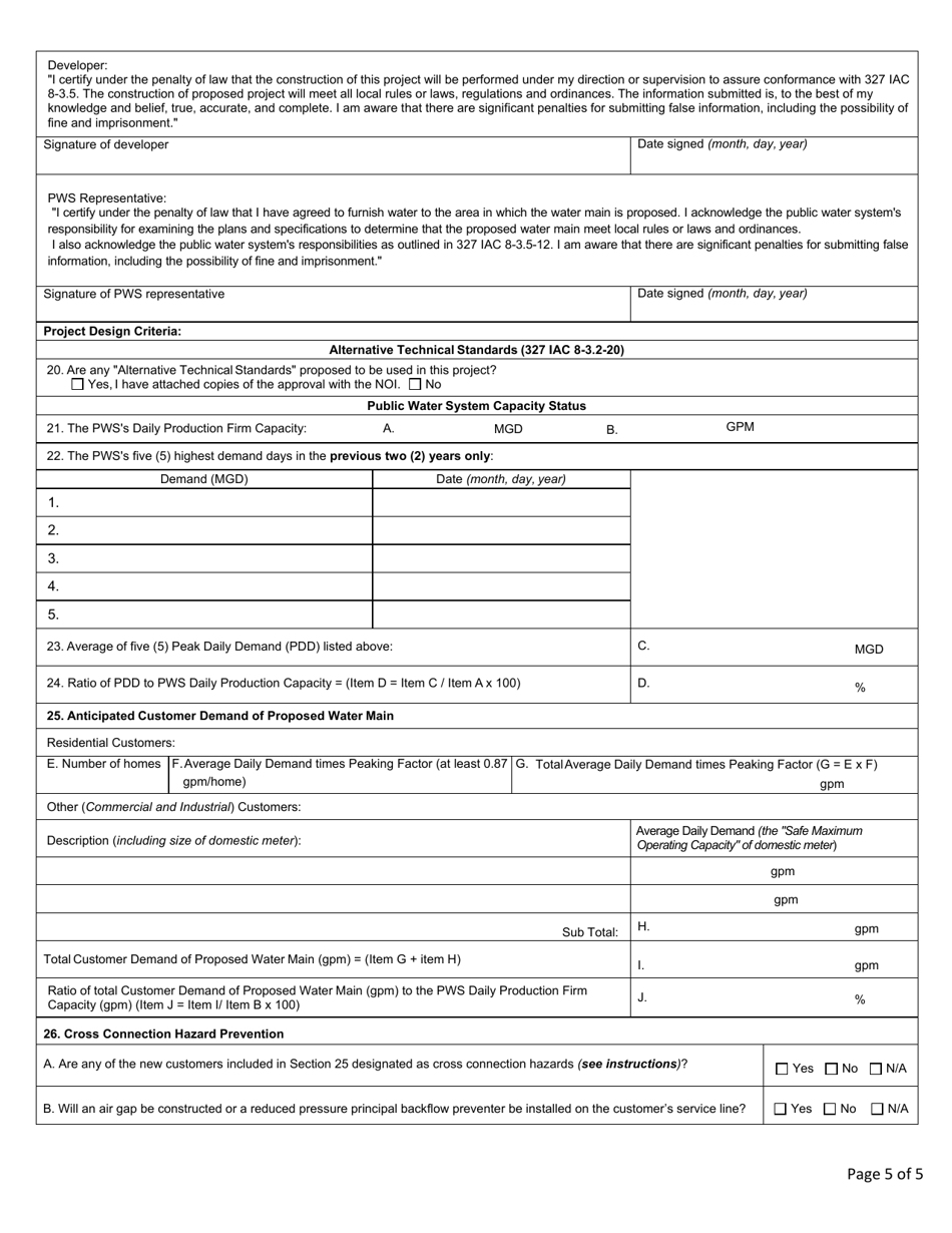
  • State Form 49008 Notice of Intent to Construct a Water Main Extension - Indiana, Page 5

    5

  • State Form 49008 Notice of Intent to Construct a Water Main Extension - Indiana, Page 1
  • State Form 49008 Notice of Intent to Construct a Water Main Extension - Indiana, Page 2
  • State Form 49008 Notice of Intent to Construct a Water Main Extension - Indiana, Page 3
  • State Form 49008 Notice of Intent to Construct a Water Main Extension - Indiana, Page 4
  • State Form 49008 Notice of Intent to Construct a Water Main Extension - Indiana, Page 5
Prev 1 2 3 4 5 Next
ADVERTISEMENT

Related Documents