Form CEM-1303 Positive Work Zone Protection Supplement - California

Form CEM-1303 Positive Work Zone Protection Supplement - California

What Is Form CEM-1303?

This is a legal form that was released by the California Department of Transportation - a government authority operating within California. As of today, no separate filing guidelines for the form are provided by the issuing department.

FAQ

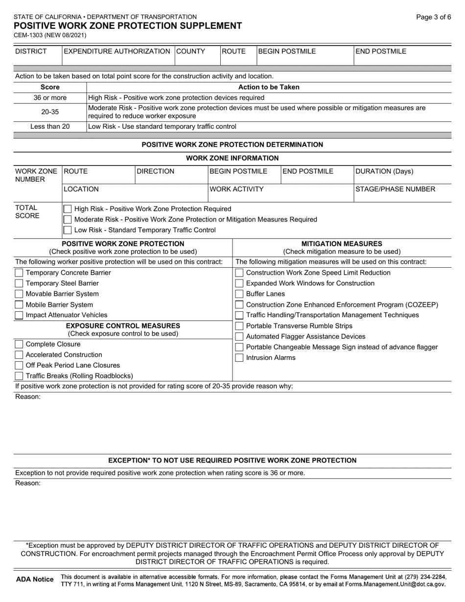
Q: What is Form CEM-1303?
A: Form CEM-1303 is a Positive Work Zone Protection Supplement used in California.

Q: What is the purpose of Form CEM-1303?
A: The purpose of Form CEM-1303 is to provide supplemental instructions and information for positive work zone protection.

Q: Who uses Form CEM-1303?
A: Form CEM-1303 is used by contractors, designers, and inspectors on construction projects in California.

Q: What is positive work zone protection?
A: Positive work zone protection refers to measures taken to ensure worker safety and minimize traffic disruptions in construction work zones.

Q: Are there any specific requirements for positive work zone protection in California?
A: Yes, California has specific requirements for positive work zone protection, which are outlined in Form CEM-1303.

ADVERTISEMENT

Form Details:

  • Released on August 1, 2021;
  • The latest edition provided by the California Department of Transportation;
  • Easy to use and ready to print;
  • Quick to customize;
  • Compatible with most PDF-viewing applications;
  • Fill out the form in our online filing application.

Download a fillable version of Form CEM-1303 by clicking the link below or browse more documents and templates provided by the California Department of Transportation.

Download Form CEM-1303 Positive Work Zone Protection Supplement - California

4.4 of 5 (32 votes)
  • Form CEM-1303 Positive Work Zone Protection Supplement - California

    1

  • Form CEM-1303 Positive Work Zone Protection Supplement - California, Page 2

    2

  • Form CEM-1303 Positive Work Zone Protection Supplement - California, Page 3

    3

  • Form CEM-1303 Positive Work Zone Protection Supplement - California, Page 4

    4

  • Form CEM-1303 Positive Work Zone Protection Supplement - California, Page 5

    5

  • Form CEM-1303 Positive Work Zone Protection Supplement - California, Page 6

    6

  • Form CEM-1303 Positive Work Zone Protection Supplement - California, Page 1
  • Form CEM-1303 Positive Work Zone Protection Supplement - California, Page 2
  • Form CEM-1303 Positive Work Zone Protection Supplement - California, Page 3
  • Form CEM-1303 Positive Work Zone Protection Supplement - California, Page 4
  • Form CEM-1303 Positive Work Zone Protection Supplement - California, Page 5
  • Form CEM-1303 Positive Work Zone Protection Supplement - California, Page 6
Prev 1 2 3 4 5 6 Next
ADVERTISEMENT