Army
Business
Legal
Letters
Life
Real Estate
Tax
Wills
Blog
Upload
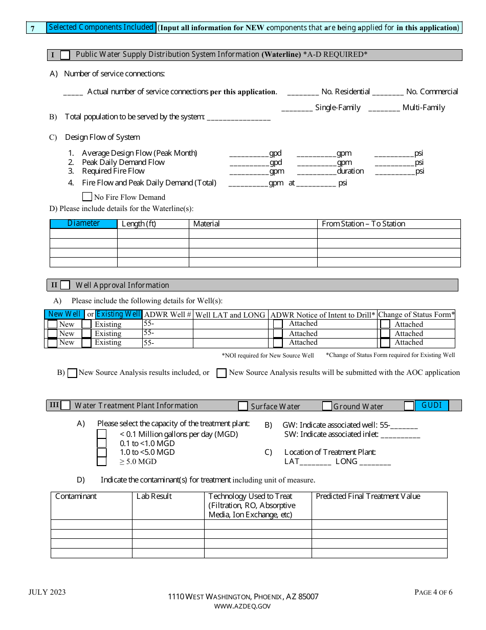
Approval to Construct Drinking Water Facilities Application - Arizona
Fill
PDF
Online
PDF
Word
Army
Business
Legal
Letters
Life
Real Estate
Tax
Wills
Blog
Upload
Home
Legal
United States Legal Forms
Arizona Legal Forms
Arizona Department of Environmental Quality
Approval to Construct Drinking Water Facilities Application - Arizona
Approval to Construct Drinking Water Facilities Application - Arizona
Preview
Fill
PDF
Online
PDF
Word
Fill PDF Online
Fill out online for free
without registration or credit card
ADVERTISEMENT
Download Approval to Construct Drinking Water Facilities Application - Arizona
4.6
of 5
(
19 votes
)
PDF
Word
Fill PDF Online
1
2
3
4
5
6
Prev
1
2
3
4
5
6
Next
ADVERTISEMENT
Linked Topics
Arizona Department of Environmental Quality
Arizona Legal Forms
Legal
United States Legal Forms
Preview
Fill
PDF
Online
PDF
Word
Related Documents
Approval to Construct Drinking Water Facilities Application - Arizona
Approval to Construct Drinking Water Facilities Application Form - Arizona
Drinking Water Source Approval Form - Arizona
Approval of Construction Drinking Water Facilities - Arizona
Drinking Water System Consolidation Program Application - Arizona
Application for Permit to Appropriate Public Water of the State of Arizona or to Construct a Reservoir - Arizona
Application for Permit to Appropriate Public Water of the State of Arizona or to Construct a Reservoir - Arizona
Drinking Water Facility Approval of Construction (Aoc) Application - Arizona
Drinking Water Facility Time Extension Request Form - Arizona
Amendment Application for Permit to Appropriate Public Water of the State of Arizona or to Construct a Reservoir - Arizona
Form DWAR15C Drinking Water Analysis Reporting Form (Dwar) for Water Systems Using Surface Water or Groundwater Under the Influence of Surface Water - Systems Purchasing Finished Surface Water - Arizona
Form DWAR15AB Drinking Water Analysis Reporting Form (Dwar) for Water Systems Using Surface Water or Groundwater Under the Influence of Surface Water - Slow Sand, Diatomaceous Earth, or Cartridge/Bag Filtration - Arizona
Form DWAR15AB Drinking Water Analysis Reporting Form (Dwar) for Water Systems Using Surface Water or Groundwater Under the Influence of Surface Water - Direct, Conventional, and Membrane Filtration - Arizona
Form DWAR15A&B Drinking Water Analysis Reporting Form - Surface Water/Groundwater Under the Influence of Surface Water Treatment - Arizona
Form DWAR15 A & B Drinking Water Analysis Reporting Form - Surface Water/Groundwater Under the Influence of Surface Water Treatment - Arizona
ADEQ Form DWAR15 A & B Drinking Water Analysis Reporting Form - Surface Water/Groundwater Under the Influence of Surface Water Treatment - Arizona
Time Extension Request - Drinking Water Facilities - Arizona
Engineering Review Section Application for Approval to Construct Public or Semi-public Swimming Pool - Arizona
EPA Form 3510-2F (NPDES Form 2F) Application for Permit to Discharge Storm Water Discharges Associated With Industrial Activity
Engineers Certificate of Completion Drinking Water Facilities - Arizona