Form SSA-8000-BK Application for Supplemental Security Income (Ssi)

Form SSA-8000-BK Application for Supplemental Security Income (Ssi)

What Is Form SSA-8000-BK?

Form SSA-8000-BK, Application For Supplemental Security Income (SSI) , is a legal document completed to apply for disability benefits through the SSI program. Fill out this document to provide the Social Security Administration (SSA) with information about your income and assets so that the SSA determines whether you qualify for SSI.

Alternate Names:

  • Supplemental Security Income Application;
  • SSI Application.

This form was released by the SSA. The latest version of the form was issued on May 1, 2021 , with all previous editions obsolete. You can download a fillable SSI Application PDF through the link below.

How to Check Status of SSI Application?

After you applied for SSI benefits, you can create an account on the SSA website to check the SSI Application status. Sign up to your account and see the date the SSA received your application and learn whether a decision has been made.

ADVERTISEMENT

SSI Application Instructions

Indicate the following details in the Supplemental Security Income Application:

  1. Choose the type of claim and provide the basic eligibility information - your name, sex, date of birth, social security number, mailing, and physical addresses, direct deposit payment address, marriage status, and description of your current and former marriages. State whether you are filing for yourself or a child and whether the applicant or this child has parents who are age 62 or older, unable to work, or deceased. Enter your citizenship and immigration status and indicate whether you have any felony warrants for your arrest.
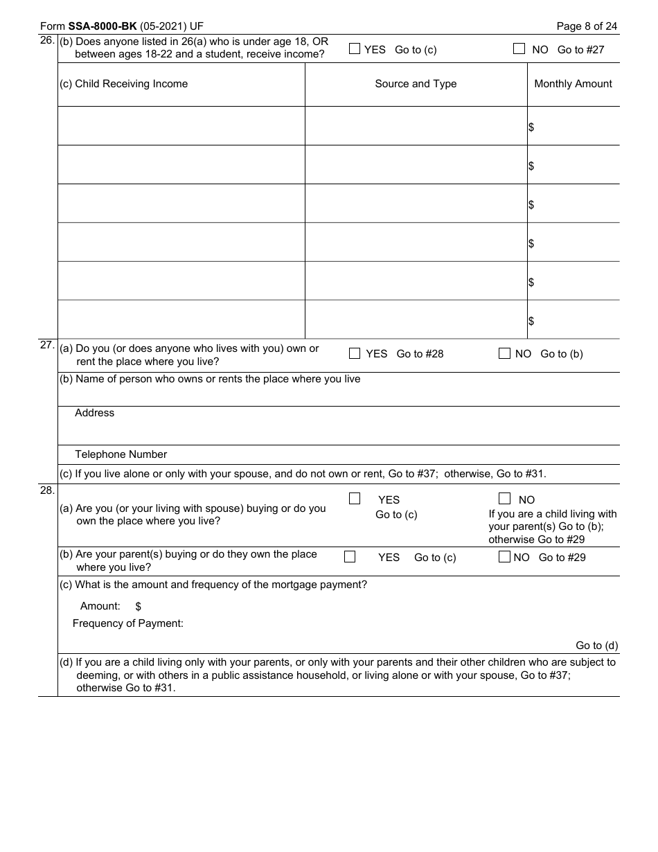
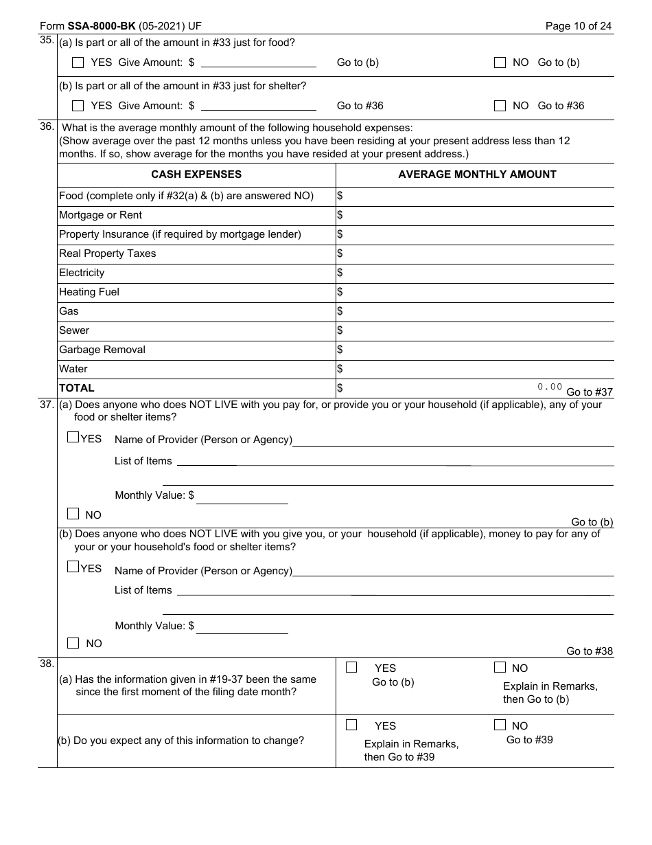
  2. Describe your present living situation - where do you currently reside, who lives with you, and is anyone you list is under 18 or a student who receives income. State who has rental liability for your residence, who contributes to the household expenses, including food and shelter.
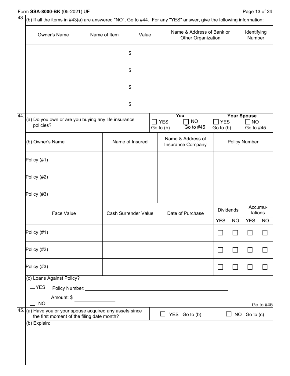
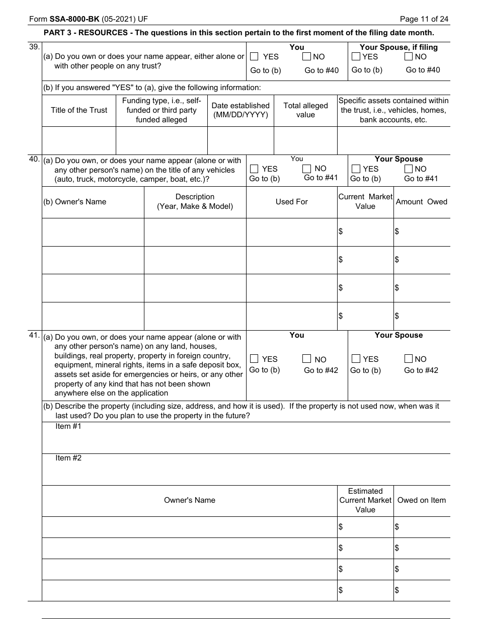
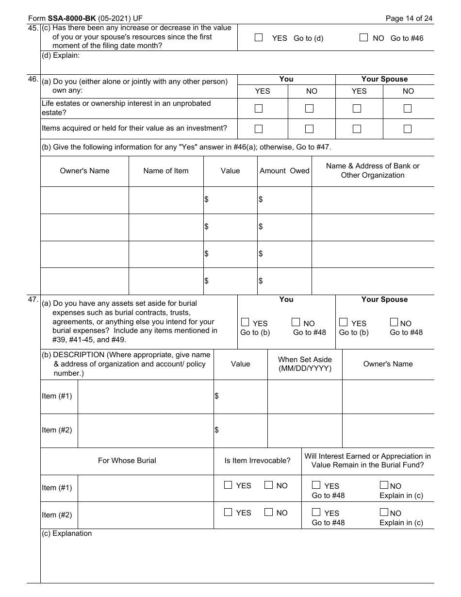
  3. Detail your resources. Provide information on vehicles, life insurance policies, estates, investments, financial institution accounts, real property, and other assets that have your name on them. Certify the SSA to obtain financial information from financial institutions to confirm your statements.
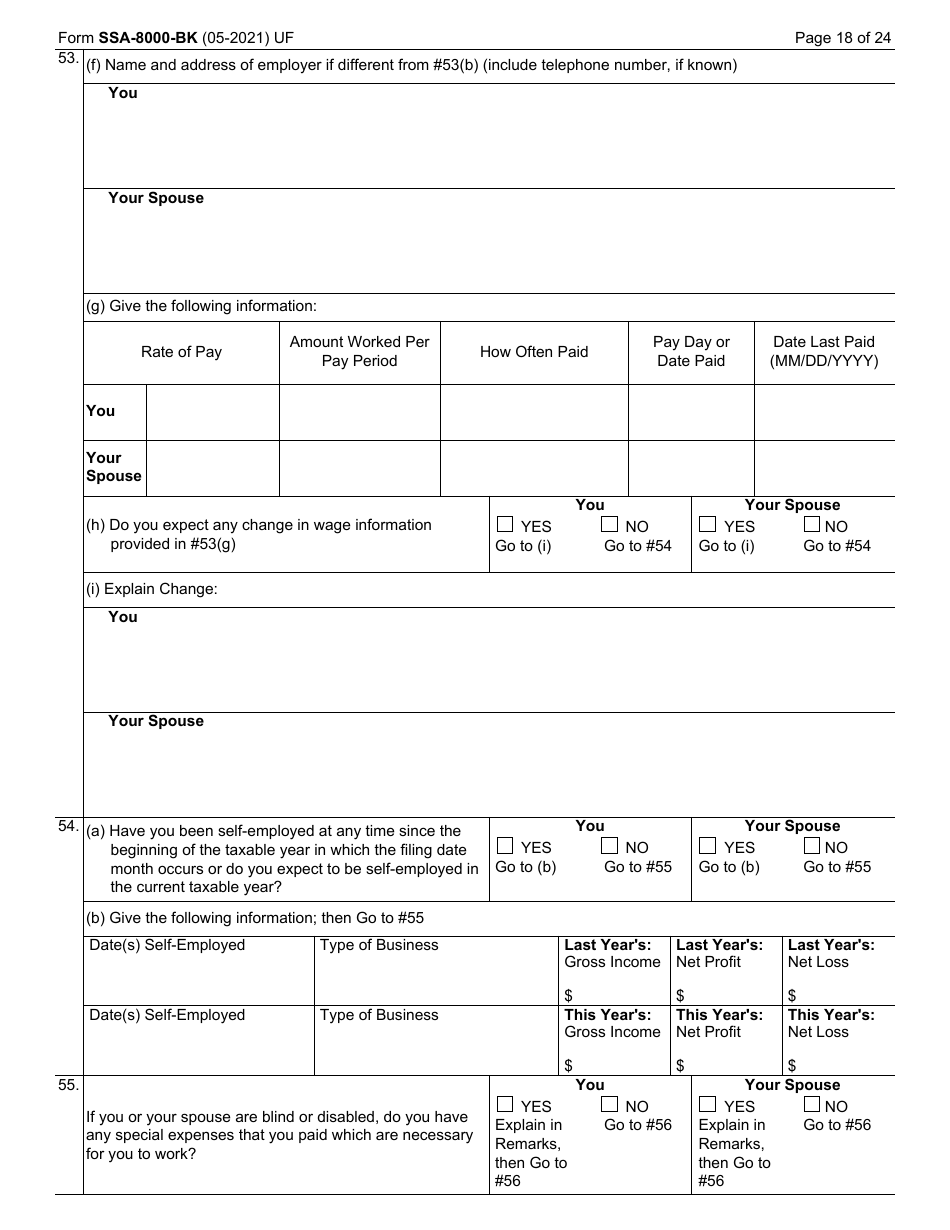
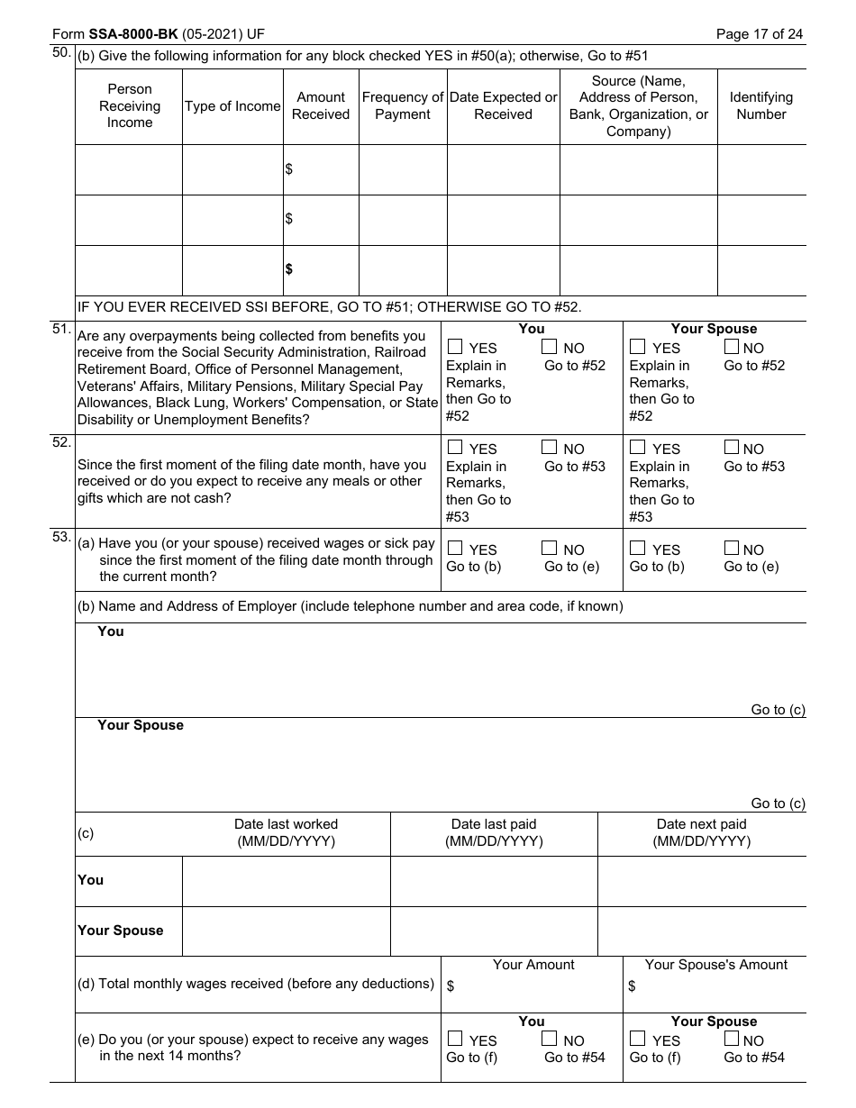
  4. Identify the sources of income for the next 14 months, including state or local assistance, unemployment compensation, and social security. If you work, enter the name and address of your employer and state the total monthly wages you receive. If you attend school, provide your education details.
  5. Confirm your eligibility to receive medical assistance, food stamps, and other benefits by answering the applicable questions.
  6. If you apply on behalf of someone else, write down your name, relationship to the claimant, and social security number or employer identification number.
  7. Provide clarification in the free space provided - do not forget to specify the item number before each explanation.
  8. Confirm the statements in the form are true and correct, sign, and date the form. If your spouse applies for payments along with you, they also must sign the form.
  9. Check the type of mail you want to receive if you have a visual impairment, and obtain signatures of two witnesses.

How Long Is the SSI Application Process?

To start the SSI application process, you need to fill out the SSI application and file it online via the SSA website or at your local SSA office. Submit the application with all supplementary documentation or certified copies of the required documents. It usually takes between 3 to 4 months to finish this stage of the process, and with the right evidence, your claim will be approved during the initial review. If there is a lack of supporting documentation, you will be asked to attend an appointment at the SSA office and answer the questions of the SSA representative.


Didn't find what you were looking for? Check out these related SSA forms:

Other Revision

Download Form SSA-8000-BK Application for Supplemental Security Income (Ssi)

4.5 of 5 (51 votes)
  • Form SSA-8000-BK Application for Supplemental Security Income (Ssi)

    1

  • Form SSA-8000-BK Application for Supplemental Security Income (Ssi), Page 2

    2

  • Form SSA-8000-BK Application for Supplemental Security Income (Ssi), Page 3

    3

  • Form SSA-8000-BK Application for Supplemental Security Income (Ssi), Page 4

    4

  • Form SSA-8000-BK Application for Supplemental Security Income (Ssi), Page 5

    5

  • Form SSA-8000-BK Application for Supplemental Security Income (Ssi), Page 6

    6

  • Form SSA-8000-BK Application for Supplemental Security Income (Ssi), Page 7

    7

  • Form SSA-8000-BK Application for Supplemental Security Income (Ssi), Page 8

    8

  • Form SSA-8000-BK Application for Supplemental Security Income (Ssi), Page 9

    9

  • Form SSA-8000-BK Application for Supplemental Security Income (Ssi), Page 10

    10

  • Form SSA-8000-BK Application for Supplemental Security Income (Ssi), Page 11

    11

  • Form SSA-8000-BK Application for Supplemental Security Income (Ssi), Page 12

    12

  • Form SSA-8000-BK Application for Supplemental Security Income (Ssi), Page 13

    13

  • Form SSA-8000-BK Application for Supplemental Security Income (Ssi), Page 14

    14

  • Form SSA-8000-BK Application for Supplemental Security Income (Ssi), Page 15

    15

  • Form SSA-8000-BK Application for Supplemental Security Income (Ssi), Page 16

    16

  • Form SSA-8000-BK Application for Supplemental Security Income (Ssi), Page 17

    17

  • Form SSA-8000-BK Application for Supplemental Security Income (Ssi), Page 18

    18

  • Form SSA-8000-BK Application for Supplemental Security Income (Ssi), Page 19

    19

  • Form SSA-8000-BK Application for Supplemental Security Income (Ssi), Page 20

    20

  • Form SSA-8000-BK Application for Supplemental Security Income (Ssi), Page 21

    21

  • Form SSA-8000-BK Application for Supplemental Security Income (Ssi), Page 22

    22

  • Form SSA-8000-BK Application for Supplemental Security Income (Ssi), Page 23

    23

  • Form SSA-8000-BK Application for Supplemental Security Income (Ssi), Page 24

    24

  • Form SSA-8000-BK Application for Supplemental Security Income (Ssi), Page 1
  • Form SSA-8000-BK Application for Supplemental Security Income (Ssi), Page 2
  • Form SSA-8000-BK Application for Supplemental Security Income (Ssi), Page 3
  • Form SSA-8000-BK Application for Supplemental Security Income (Ssi), Page 4
  • Form SSA-8000-BK Application for Supplemental Security Income (Ssi), Page 5
  • Form SSA-8000-BK Application for Supplemental Security Income (Ssi), Page 6
  • Form SSA-8000-BK Application for Supplemental Security Income (Ssi), Page 7
  • Form SSA-8000-BK Application for Supplemental Security Income (Ssi), Page 8
  • Form SSA-8000-BK Application for Supplemental Security Income (Ssi), Page 9
  • Form SSA-8000-BK Application for Supplemental Security Income (Ssi), Page 10
  • Form SSA-8000-BK Application for Supplemental Security Income (Ssi), Page 11
  • Form SSA-8000-BK Application for Supplemental Security Income (Ssi), Page 12
  • Form SSA-8000-BK Application for Supplemental Security Income (Ssi), Page 13
  • Form SSA-8000-BK Application for Supplemental Security Income (Ssi), Page 14
  • Form SSA-8000-BK Application for Supplemental Security Income (Ssi), Page 15
  • Form SSA-8000-BK Application for Supplemental Security Income (Ssi), Page 16
  • Form SSA-8000-BK Application for Supplemental Security Income (Ssi), Page 17
  • Form SSA-8000-BK Application for Supplemental Security Income (Ssi), Page 18
  • Form SSA-8000-BK Application for Supplemental Security Income (Ssi), Page 19
  • Form SSA-8000-BK Application for Supplemental Security Income (Ssi), Page 20
  • Form SSA-8000-BK Application for Supplemental Security Income (Ssi), Page 21
  • Form SSA-8000-BK Application for Supplemental Security Income (Ssi), Page 22
  • Form SSA-8000-BK Application for Supplemental Security Income (Ssi), Page 23
  • Form SSA-8000-BK Application for Supplemental Security Income (Ssi), Page 24
Prev 1 2 3 4 5 ... 24 Next
ADVERTISEMENT