Army
Business
Legal
Letters
Life
Real Estate
Tax
Wills
Blog
Upload
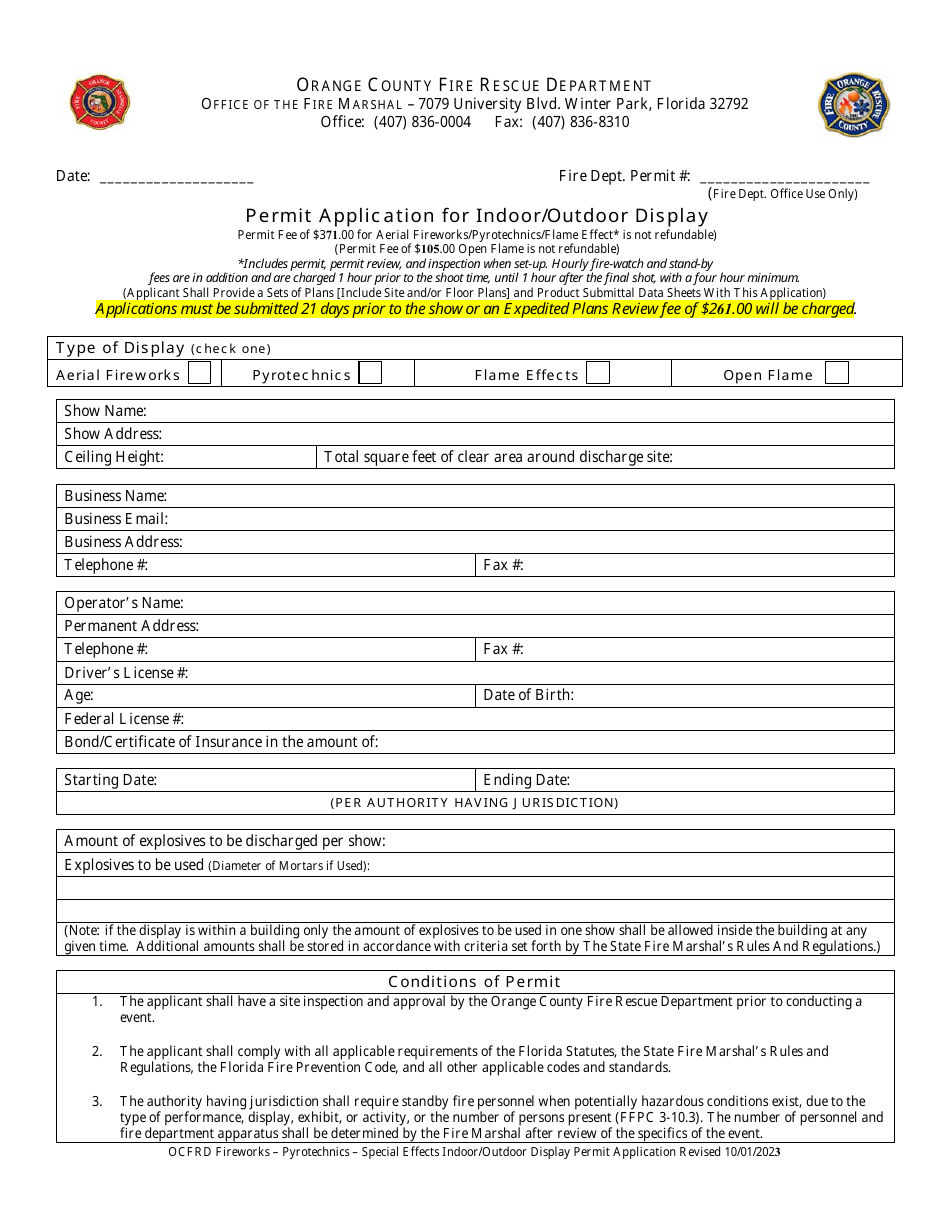
Permit Application for Indoor / Outdoor Display - Orange County, Florida
Fill
PDF
Online
PDF
Word
Army
Business
Legal
Letters
Life
Real Estate
Tax
Wills
Blog
Upload
Home
Legal
United States Legal Forms
Florida Legal Forms
Fire Rescue Department - Orange County, Florida
Permit Application for Indoor/Outdoor Display - Orange County, Florida
Permit Application for Indoor / Outdoor Display - Orange County, Florida
Preview
Fill
PDF
Online
PDF
Word
Fill PDF Online
Fill out online for free
without registration or credit card
ADVERTISEMENT
Other Revision
2021
2023
Download Permit Application for Indoor / Outdoor Display - Orange County, Florida
4.5
of 5
(
56 votes
)
PDF
Word
Fill PDF Online
1
2
3
4
5
6
7
8
Prev
1
2
3
4
5
...
8
Next
ADVERTISEMENT
Linked Topics
Fire Rescue Department - Orange County, Florida
Florida Legal Forms
Legal
United States Legal Forms
Preview
Fill
PDF
Online
PDF
Word
Related Documents
Application for Use Permit - Orange County, Florida
Application for Use Permit - Orange County, Florida
Outdoor Public Assembly Permit Application - Orange County, Florida
Permit Application for Laser Display/Exhibit - Orange County, Florida
Permit Application for Special Outdoor Event - Orange County, Florida
Display of Fireworks, Pyrotechnics, and/or Flame Effects Permit Application - Miami-Dade County, Florida
Building Permit Application - Martin County, Florida
Form 23-46 Application for Gas Permit - Orange County, Florida
Form 23-14 Application for Plumbing Permit - Orange County, Florida
Form 23-30 Application for Electrical Permit - Orange County, Florida
Form 23-39 Application for Mechanical Permit - Orange County, Florida
Form 43-15 Application for Building/Land Use Permit - Orange County, Florida
Form 23-113 Application for Roof Permit - Orange County, Florida
Form 23-111 Application for Meter Reset Permit - Orange County, Florida
Form 23-112 Application for Residential Replacement Overhead Garage Door Permit - Orange County, Florida
FWS Form 3-200-43 Federal Fish and Wildlife Permit Application Form - Take/Import/Export of Marine Mammals for Public Display, Scientific Research, Enhancement, or Rescue/Rehabilitation/Release Activities or Renewal/Amendment of Existing Permit (Mmpa and/or Esa)
Page 2 Building Permit Application - Orange County, Florida
FWS Form 3-200-47 Import of Birds for Scientific Research or Zoological Breeding and Display (Wbca)