Form DBPR AR-ID3 Reinstatement of Null and Void License or Registration - Florida

Form DBPR AR-ID3 Reinstatement of Null and Void License or Registration - Florida

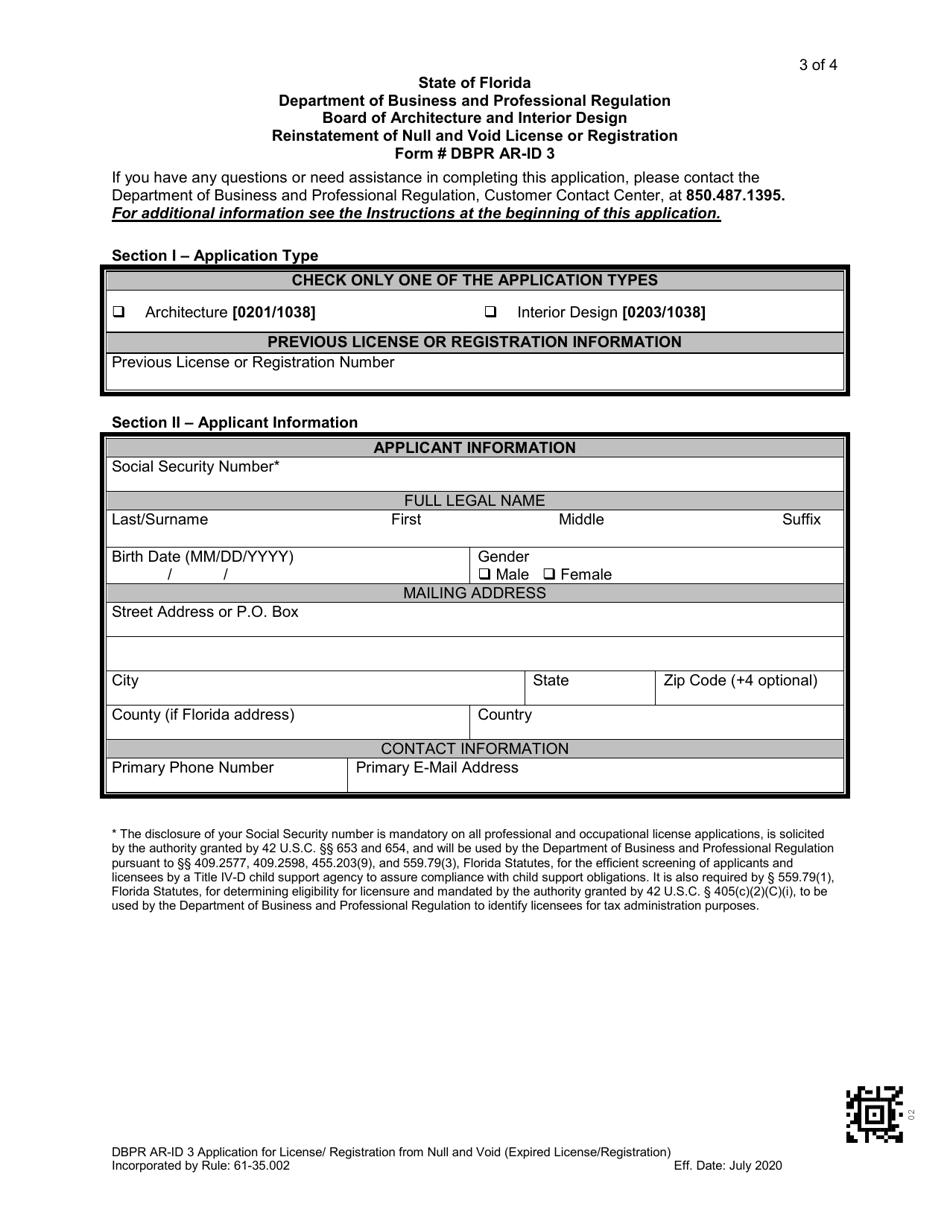
What Is Form DBPR AR-ID3?

This is a legal form that was released by the Florida Department of Business & Professional Regulation - a government authority operating within Florida. As of today, no separate filing guidelines for the form are provided by the issuing department.

Form Details:

  • Released on July 1, 2020;
  • The latest edition provided by the Florida Department of Business & Professional Regulation;
  • Easy to use and ready to print;
  • Quick to customize;
  • Compatible with most PDF-viewing applications;
  • Fill out the form in our online filing application.

Download a printable version of Form DBPR AR-ID3 by clicking the link below or browse more documents and templates provided by the Florida Department of Business & Professional Regulation.

ADVERTISEMENT

Other Revision

Download Form DBPR AR-ID3 Reinstatement of Null and Void License or Registration - Florida

4.6 of 5 (55 votes)
  • Form DBPR AR-ID3 Reinstatement of Null and Void License or Registration - Florida

    1

  • Form DBPR AR-ID3 Reinstatement of Null and Void License or Registration - Florida, Page 2

    2

  • Form DBPR AR-ID3 Reinstatement of Null and Void License or Registration - Florida, Page 3

    3

  • Form DBPR AR-ID3 Reinstatement of Null and Void License or Registration - Florida, Page 4

    4

  • Form DBPR AR-ID3 Reinstatement of Null and Void License or Registration - Florida, Page 1
  • Form DBPR AR-ID3 Reinstatement of Null and Void License or Registration - Florida, Page 2
  • Form DBPR AR-ID3 Reinstatement of Null and Void License or Registration - Florida, Page 3
  • Form DBPR AR-ID3 Reinstatement of Null and Void License or Registration - Florida, Page 4
Prev 1 2 3 4 Next
ADVERTISEMENT

Related Documents