Form DBPR BCAIB5 Application for Education Course Approval / Renewal and Provider - Florida

Notification Icon This version of the form is not currently in use and is provided for reference only. Download this version of Form DBPR BCAIB5 for the current year.

Form DBPR BCAIB5 Application for Education Course Approval / Renewal and Provider - Florida

What Is Form DBPR BCAIB5?

This is a legal form that was released by the Florida Department of Business & Professional Regulation - a government authority operating within Florida. As of today, no separate filing guidelines for the form are provided by the issuing department.

FAQ

Q: What is the DBPR BCAIB5 form?
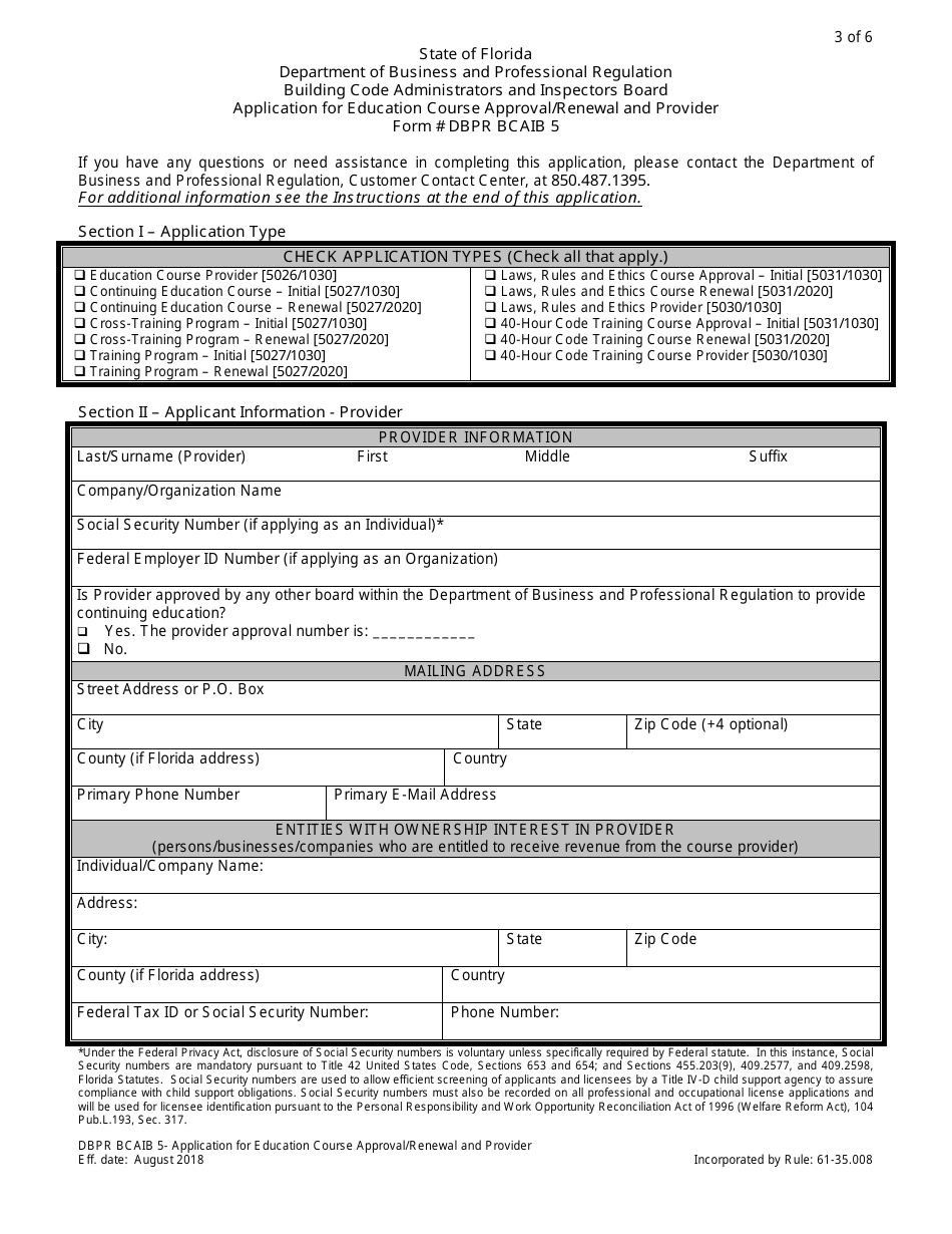
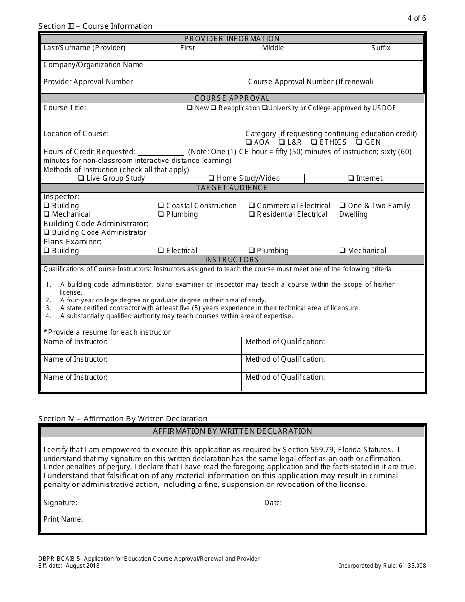
A: The DBPR BCAIB5 form is the Application for Education Course Approval/Renewal and Provider in Florida.

Q: What is the purpose of the DBPR BCAIB5 form?
A: The purpose of the DBPR BCAIB5 form is to apply for or renew approval as an education course provider in Florida.

Q: Who needs to fill out the DBPR BCAIB5 form?
A: Education course providers in Florida need to fill out the DBPR BCAIB5 form.

Q: What information is required on the DBPR BCAIB5 form?
A: The DBPR BCAIB5 form requires information about the education course and provider, including course details, instructor information, and provider qualifications.

Q: Is there a fee for submitting the DBPR BCAIB5 form?
A: Yes, there is a fee for submitting the DBPR BCAIB5 form. The fee amount is specified on the form.

Q: What should I do if I have questions about the DBPR BCAIB5 form?
A: If you have questions about the DBPR BCAIB5 form, you can contact the DBPR for assistance.

ADVERTISEMENT

Form Details:

  • Released on August 1, 2018;
  • The latest edition provided by the Florida Department of Business & Professional Regulation;
  • Easy to use and ready to print;
  • Quick to customize;
  • Compatible with most PDF-viewing applications;
  • Fill out the form in our online filing application.

Download a printable version of Form DBPR BCAIB5 by clicking the link below or browse more documents and templates provided by the Florida Department of Business & Professional Regulation.

Download Form DBPR BCAIB5 Application for Education Course Approval / Renewal and Provider - Florida

4.5 of 5 (68 votes)
  • Form DBPR BCAIB5 Application for Education Course Approval/Renewal and Provider - Florida

    1

  • Form DBPR BCAIB5 Application for Education Course Approval/Renewal and Provider - Florida, Page 2

    2

  • Form DBPR BCAIB5 Application for Education Course Approval/Renewal and Provider - Florida, Page 3

    3

  • Form DBPR BCAIB5 Application for Education Course Approval/Renewal and Provider - Florida, Page 4

    4

  • Form DBPR BCAIB5 Application for Education Course Approval/Renewal and Provider - Florida, Page 5

    5

  • Form DBPR BCAIB5 Application for Education Course Approval/Renewal and Provider - Florida, Page 6

    6

  • Form DBPR BCAIB5 Application for Education Course Approval / Renewal and Provider - Florida, Page 1
  • Form DBPR BCAIB5 Application for Education Course Approval / Renewal and Provider - Florida, Page 2
  • Form DBPR BCAIB5 Application for Education Course Approval / Renewal and Provider - Florida, Page 3
  • Form DBPR BCAIB5 Application for Education Course Approval / Renewal and Provider - Florida, Page 4
  • Form DBPR BCAIB5 Application for Education Course Approval / Renewal and Provider - Florida, Page 5
  • Form DBPR BCAIB5 Application for Education Course Approval / Renewal and Provider - Florida, Page 6
Prev 1 2 3 4 5 6 Next
ADVERTISEMENT

Related Documents