Form DBPR AR1 Application for Licensure by Examination - Architect - Florida

Notification Icon This version of the form is not currently in use and is provided for reference only. Download this version of Form DBPR AR1 for the current year.

Form DBPR AR1 Application for Licensure by Examination - Architect - Florida

What Is Form DBPR AR1?

This is a legal form that was released by the Florida Department of Business & Professional Regulation - a government authority operating within Florida. As of today, no separate filing guidelines for the form are provided by the issuing department.

FAQ

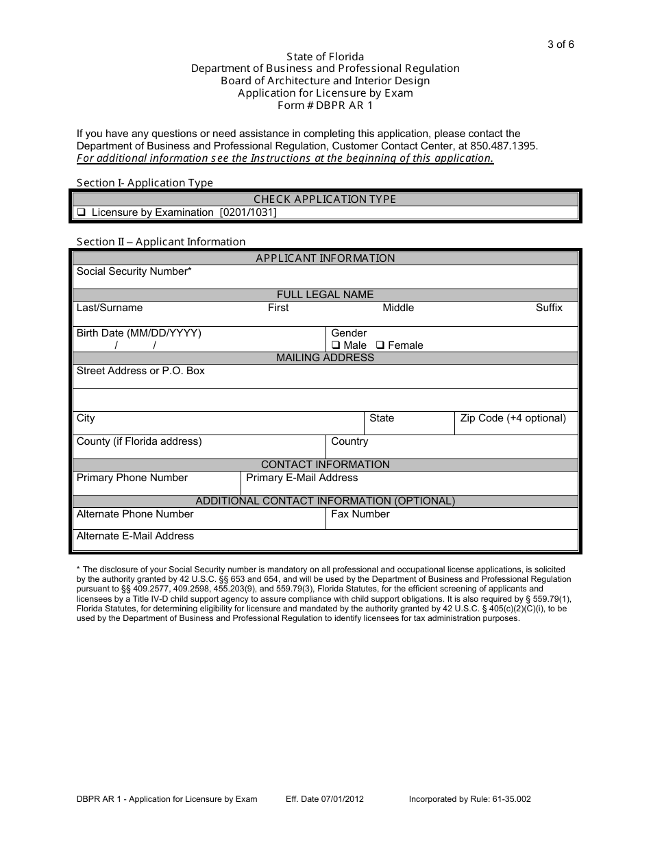
Q: What is the DBPR AR1 Application for Licensure by Examination?
A: The DBPR AR1 Application for Licensure by Examination is the application form used to apply for architectural licensure in Florida.

Q: Who can use the DBPR AR1 Application for Licensure by Examination?
A: Individuals who want to become licensed architects in Florida through examination can use the DBPR AR1 application.

Q: What are the requirements for using the DBPR AR1 Application for Licensure by Examination?
A: The requirements for using the DBPR AR1 Application for Licensure by Examination include having a degree in architecture from an accredited school, completing the Architectural Experience Program (AXP), and passing the Architect Registration Examination (ARE).

Q: What documents are required to be submitted with the DBPR AR1 Application for Licensure by Examination?
A: The required documents to be submitted with the DBPR AR1 Application for Licensure by Examination may include official transcripts, AXP record, ARE score reports, and other supporting documentation as requested.

Q: How much does it cost to submit the DBPR AR1 Application for Licensure by Examination?
A: The cost to submit the DBPR AR1 Application for Licensure by Examination is $300.

Q: How long does it take to process the DBPR AR1 Application for Licensure by Examination?
A: The processing time for the DBPR AR1 Application for Licensure by Examination may vary, but it typically takes several weeks.

Q: What happens after my DBPR AR1 Application for Licensure by Examination is approved?
A: After your DBPR AR1 Application for Licensure by Examination is approved, you will be eligible to schedule and take the Architect Registration Examination (ARE).

ADVERTISEMENT

Form Details:

  • Released on July 1, 2012;
  • The latest edition provided by the Florida Department of Business & Professional Regulation;
  • Easy to use and ready to print;
  • Quick to customize;
  • Compatible with most PDF-viewing applications;
  • Fill out the form in our online filing application.

Download a fillable version of Form DBPR AR1 by clicking the link below or browse more documents and templates provided by the Florida Department of Business & Professional Regulation.

Download Form DBPR AR1 Application for Licensure by Examination - Architect - Florida

4.6 of 5 (70 votes)
  • Form DBPR AR1 Application for Licensure by Examination - Architect - Florida

    1

  • Form DBPR AR1 Application for Licensure by Examination - Architect - Florida, Page 2

    2

  • Form DBPR AR1 Application for Licensure by Examination - Architect - Florida, Page 3

    3

  • Form DBPR AR1 Application for Licensure by Examination - Architect - Florida, Page 4

    4

  • Form DBPR AR1 Application for Licensure by Examination - Architect - Florida, Page 5

    5

  • Form DBPR AR1 Application for Licensure by Examination - Architect - Florida, Page 6

    6

  • Form DBPR AR1 Application for Licensure by Examination - Architect - Florida, Page 1
  • Form DBPR AR1 Application for Licensure by Examination - Architect - Florida, Page 2
  • Form DBPR AR1 Application for Licensure by Examination - Architect - Florida, Page 3
  • Form DBPR AR1 Application for Licensure by Examination - Architect - Florida, Page 4
  • Form DBPR AR1 Application for Licensure by Examination - Architect - Florida, Page 5
  • Form DBPR AR1 Application for Licensure by Examination - Architect - Florida, Page 6
Prev 1 2 3 4 5 6 Next
ADVERTISEMENT

Related Documents