Form CP-23 Wetland Restoration Design Worksheet - Michigan

Form CP-23 Wetland Restoration Design Worksheet - Michigan

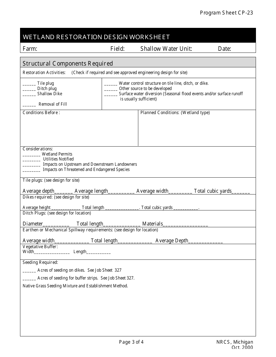
What Is Form CP-23?

This is a legal form that was released by the Michigan Department of Agriculture and Rural Development - a government authority operating within Michigan. As of today, no separate filing guidelines for the form are provided by the issuing department.

FAQ

Q: What is Form CP-23?
A: Form CP-23 is the Wetland Restoration Design Worksheet used in Michigan.

Q: What is the purpose of Form CP-23?
A: The purpose of Form CP-23 is to assist in planning and designing wetland restoration projects in Michigan.

Q: Who uses Form CP-23?
A: Form CP-23 is used by individuals or organizations involved in wetland restoration projects in Michigan.

Q: What information is included in Form CP-23?
A: Form CP-23 includes information related to wetland characteristics, project goals, design considerations, and monitoring plans.

Q: Is Form CP-23 mandatory for wetland restoration projects in Michigan?
A: Yes, Form CP-23 is a mandatory form that needs to be completed for wetland restoration projects in Michigan.

Q: Are there any fees associated with submitting Form CP-23?
A: There are no fees associated with submitting Form CP-23 for wetland restoration projects in Michigan.

Q: Can I submit Form CP-23 electronically?
A: Yes, you can submit Form CP-23 electronically by following the instructions provided on the form.

Q: Who should I contact if I have questions about Form CP-23?
A: If you have questions about Form CP-23, you can contact the Michigan Department of Natural Resources for assistance.

Q: Are there any deadlines for submitting Form CP-23?
A: Specific deadlines for submitting Form CP-23 may vary depending on the project, so it is recommended to check with the Michigan Department of Natural Resources or consult the instructions on the form.

ADVERTISEMENT

Form Details:

  • Released on October 1, 2000;
  • The latest edition provided by the Michigan Department of Agriculture and Rural Development;
  • Easy to use and ready to print;
  • Quick to customize;
  • Compatible with most PDF-viewing applications;
  • Fill out the form in our online filing application.

Download a printable version of Form CP-23 by clicking the link below or browse more documents and templates provided by the Michigan Department of Agriculture and Rural Development.

Download Form CP-23 Wetland Restoration Design Worksheet - Michigan

4.8 of 5 (57 votes)
  • Form CP-23 Wetland Restoration Design Worksheet - Michigan

    1

  • Form CP-23 Wetland Restoration Design Worksheet - Michigan, Page 2

    2

  • Form CP-23 Wetland Restoration Design Worksheet - Michigan, Page 3

    3

  • Form CP-23 Wetland Restoration Design Worksheet - Michigan, Page 4

    4

  • Form CP-23 Wetland Restoration Design Worksheet - Michigan, Page 1
  • Form CP-23 Wetland Restoration Design Worksheet - Michigan, Page 2
  • Form CP-23 Wetland Restoration Design Worksheet - Michigan, Page 3
  • Form CP-23 Wetland Restoration Design Worksheet - Michigan, Page 4
Prev 1 2 3 4 Next
ADVERTISEMENT