FCC Form 854 Application for Antenna Structure Registration

FCC Form 854 Application for Antenna Structure Registration

What Is FCC Form 854?

This is a legal form that was released by the Federal Communications Commission on February 1, 2019 and used country-wide. As of today, no separate filing guidelines for the form are provided by the issuing department.

FAQ

Q: What is FCC Form 854?
A: FCC Form 854 is an application for Antenna Structure Registration.

Q: Who needs to fill out FCC Form 854?
A: Anyone who owns or operates an antenna structure that meets the registration criteria needs to fill out FCC Form 854.

Q: What is the purpose of FCC Form 854?
A: The purpose of FCC Form 854 is to register antenna structures with the Federal Communications Commission (FCC) in order to ensure safety and compliance with regulations.

Q: What information is required on FCC Form 854?
A: FCC Form 854 requires information such as the structure's height, location, owner/operator details, and lighting specifications.

ADVERTISEMENT

Form Details:

  • Released on February 1, 2019;
  • The latest available edition released by the Federal Communications Commission;
  • Easy to use and ready to print;
  • Yours to fill out and keep for your records;
  • Compatible with most PDF-viewing applications;
  • Fill out the form in our online filing application.

Download a printable version of FCC Form 854 by clicking the link below or browse more documents and templates provided by the Federal Communications Commission.

Download FCC Form 854 Application for Antenna Structure Registration

4.8 of 5 (55 votes)
  • FCC Form 854 Application for Antenna Structure Registration

    1

  • FCC Form 854 Application for Antenna Structure Registration, Page 2

    2

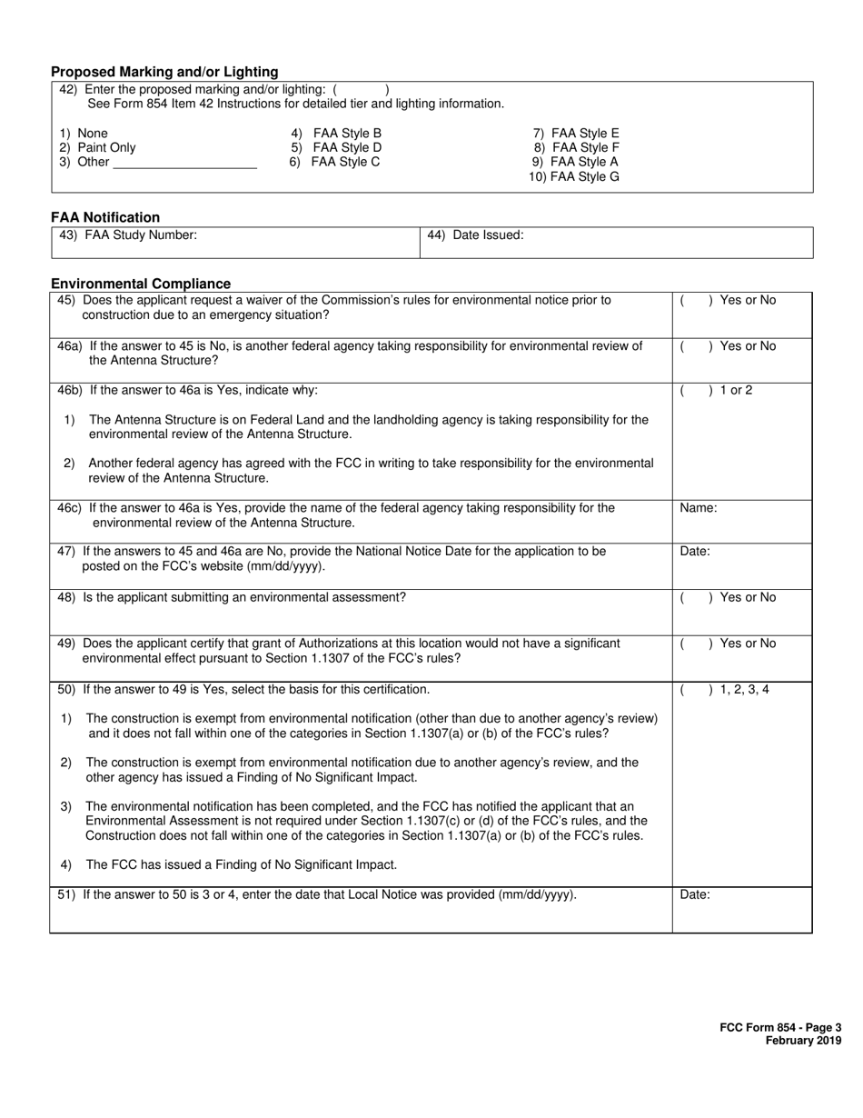
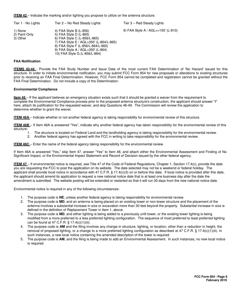
  • FCC Form 854 Application for Antenna Structure Registration, Page 3

    3

  • FCC Form 854 Application for Antenna Structure Registration, Page 4

    4

  • FCC Form 854 Application for Antenna Structure Registration, Page 5

    5

  • FCC Form 854 Application for Antenna Structure Registration, Page 6

    6

  • FCC Form 854 Application for Antenna Structure Registration, Page 7

    7

  • FCC Form 854 Application for Antenna Structure Registration, Page 8

    8

  • FCC Form 854 Application for Antenna Structure Registration, Page 9

    9

  • FCC Form 854 Application for Antenna Structure Registration, Page 10

    10

  • FCC Form 854 Application for Antenna Structure Registration, Page 11

    11

  • FCC Form 854 Application for Antenna Structure Registration, Page 12

    12

  • FCC Form 854 Application for Antenna Structure Registration, Page 13

    13

  • FCC Form 854 Application for Antenna Structure Registration, Page 14

    14

  • FCC Form 854 Application for Antenna Structure Registration, Page 15

    15

  • FCC Form 854 Application for Antenna Structure Registration, Page 16

    16

  • FCC Form 854 Application for Antenna Structure Registration, Page 1
  • FCC Form 854 Application for Antenna Structure Registration, Page 2
  • FCC Form 854 Application for Antenna Structure Registration, Page 3
  • FCC Form 854 Application for Antenna Structure Registration, Page 4
  • FCC Form 854 Application for Antenna Structure Registration, Page 5
  • FCC Form 854 Application for Antenna Structure Registration, Page 6
  • FCC Form 854 Application for Antenna Structure Registration, Page 7
  • FCC Form 854 Application for Antenna Structure Registration, Page 8
  • FCC Form 854 Application for Antenna Structure Registration, Page 9
  • FCC Form 854 Application for Antenna Structure Registration, Page 10
  • FCC Form 854 Application for Antenna Structure Registration, Page 11
  • FCC Form 854 Application for Antenna Structure Registration, Page 12
  • FCC Form 854 Application for Antenna Structure Registration, Page 13
  • FCC Form 854 Application for Antenna Structure Registration, Page 14
  • FCC Form 854 Application for Antenna Structure Registration, Page 15
  • FCC Form 854 Application for Antenna Structure Registration, Page 16
Prev 1 2 3 4 5 ... 16 Next
ADVERTISEMENT

Related Documents