Form LIBI-26 Application for Construction and Alteration Permit - Pennsylvania

Notification Icon This version of the form is not currently in use and is provided for reference only. Download this version of Form LIBI-26 for the current year.

Form LIBI-26 Application for Construction and Alteration Permit - Pennsylvania

What Is Form LIBI-26?

This is a legal form that was released by the Pennsylvania Department of Labor & Industry - a government authority operating within Pennsylvania. As of today, no separate filing guidelines for the form are provided by the issuing department.

FAQ

Q: What is form LIBI-26?
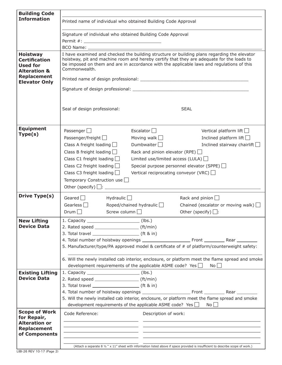
A: Form LIBI-26 is the Application for Construction and Alteration Permit in Pennsylvania.

Q: Who needs to file form LIBI-26?
A: Anyone who is planning to undertake a construction or alteration project in Pennsylvania needs to file form LIBI-26.

Q: What information is required on form LIBI-26?
A: Form LIBI-26 requires information about the applicant, the location of the project, the scope of work, and the estimated cost of the project.

Q: What is the purpose of form LIBI-26?
A: The purpose of form LIBI-26 is to obtain a construction or alteration permit from the Pennsylvania Department of Labor and Industry.

Q: Are there any fees associated with filing form LIBI-26?
A: Yes, there are fees associated with filing form LIBI-26. The amount of the fees depends on the scope and cost of the project.

Q: Is form LIBI-26 only applicable for construction projects?
A: No, form LIBI-26 is applicable for both construction and alteration projects in Pennsylvania.

Q: What is the processing time for form LIBI-26?
A: The processing time for form LIBI-26 varies depending on the complexity of the project, but it typically takes several weeks.

Q: What should I do if my form LIBI-26 is rejected?
A: If your form LIBI-26 is rejected, you will receive a notice with the reason for rejection. You can then make the necessary corrections and resubmit the application.

ADVERTISEMENT

Form Details:

  • Released on October 1, 2017;
  • The latest edition provided by the Pennsylvania Department of Labor & Industry;
  • Easy to use and ready to print;
  • Quick to customize;
  • Compatible with most PDF-viewing applications;
  • Fill out the form in our online filing application.

Download a fillable version of Form LIBI-26 by clicking the link below or browse more documents and templates provided by the Pennsylvania Department of Labor & Industry.

Download Form LIBI-26 Application for Construction and Alteration Permit - Pennsylvania

4.6 of 5 (43 votes)
  • Form LIBI-26 Application for Construction and Alteration Permit - Pennsylvania

    1

  • Form LIBI-26 Application for Construction and Alteration Permit - Pennsylvania, Page 2

    2

  • Form LIBI-26 Application for Construction and Alteration Permit - Pennsylvania, Page 3

    3

  • Form LIBI-26 Application for Construction and Alteration Permit - Pennsylvania, Page 1
  • Form LIBI-26 Application for Construction and Alteration Permit - Pennsylvania, Page 2
  • Form LIBI-26 Application for Construction and Alteration Permit - Pennsylvania, Page 3
Prev 1 2 3 Next
ADVERTISEMENT

Related Documents