Form TCEQ-10137 Surface Coating Facility Air Permits by Rule 106.433 Checklist - Texas

Form TCEQ-10137 Surface Coating Facility Air Permits by Rule 106.433 Checklist - Texas

What Is Form TCEQ-10137?

This is a legal form that was released by the Texas Commission on Environmental Quality - a government authority operating within Texas. As of today, no separate filing guidelines for the form are provided by the issuing department.

FAQ

Q: What is Form TCEQ-10137?
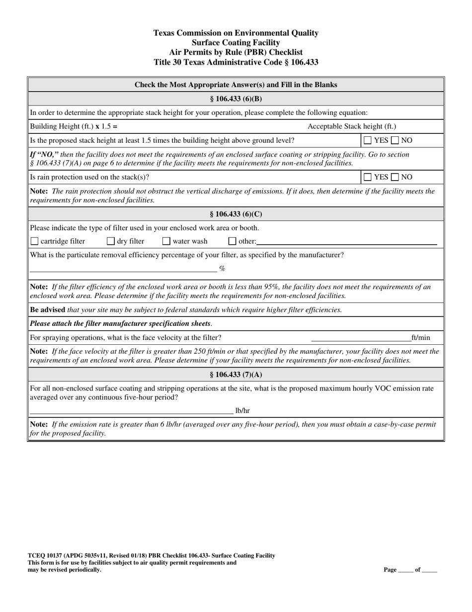
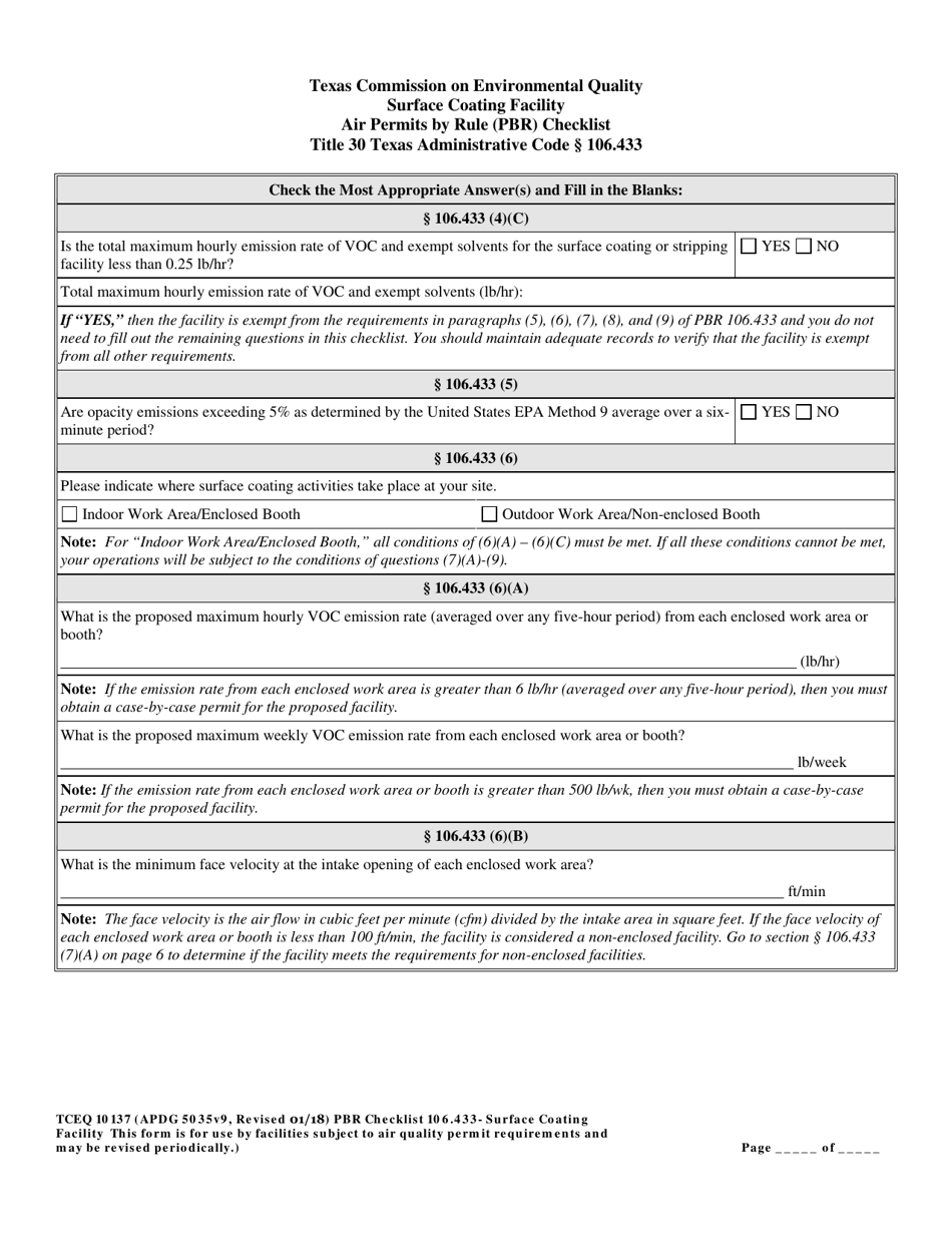
A: Form TCEQ-10137 is a checklist for Surface Coating Facility Air Permits by Rule 106.433 in Texas.

Q: What does this form pertain to?
A: This form pertains to air permits for surface coating facilities in Texas that fall under Rule 106.433.

Q: What is Rule 106.433?
A: Rule 106.433 is a specific regulation in Texas that applies to surface coating facilities and dictates the requirements for air permits.

Q: Who needs to fill out this form?
A: Surface coating facilities in Texas that fall under Rule 106.433 need to fill out this form when applying for air permits.

Q: What is the purpose of this checklist?
A: The purpose of this checklist is to ensure that surface coating facilities meet all the necessary requirements for obtaining air permits under Rule 106.433.

ADVERTISEMENT

Form Details:

  • Released on January 1, 2018;
  • The latest edition provided by the Texas Commission on Environmental Quality;
  • Easy to use and ready to print;
  • Quick to customize;
  • Compatible with most PDF-viewing applications;
  • Fill out the form in our online filing application.

Download a fillable version of Form TCEQ-10137 by clicking the link below or browse more documents and templates provided by the Texas Commission on Environmental Quality.

Download Form TCEQ-10137 Surface Coating Facility Air Permits by Rule 106.433 Checklist - Texas

4.5 of 5 (10 votes)
  • Form TCEQ-10137 Surface Coating Facility Air Permits by Rule 106.433 Checklist - Texas

    1

  • Form TCEQ-10137 Surface Coating Facility Air Permits by Rule 106.433 Checklist - Texas, Page 2

    2

  • Form TCEQ-10137 Surface Coating Facility Air Permits by Rule 106.433 Checklist - Texas, Page 3

    3

  • Form TCEQ-10137 Surface Coating Facility Air Permits by Rule 106.433 Checklist - Texas, Page 4

    4

  • Form TCEQ-10137 Surface Coating Facility Air Permits by Rule 106.433 Checklist - Texas, Page 5

    5

  • Form TCEQ-10137 Surface Coating Facility Air Permits by Rule 106.433 Checklist - Texas, Page 6

    6

  • Form TCEQ-10137 Surface Coating Facility Air Permits by Rule 106.433 Checklist - Texas, Page 7

    7

  • Form TCEQ-10137 Surface Coating Facility Air Permits by Rule 106.433 Checklist - Texas, Page 8

    8

  • Form TCEQ-10137 Surface Coating Facility Air Permits by Rule 106.433 Checklist - Texas, Page 9

    9

  • Form TCEQ-10137 Surface Coating Facility Air Permits by Rule 106.433 Checklist - Texas, Page 10

    10

  • Form TCEQ-10137 Surface Coating Facility Air Permits by Rule 106.433 Checklist - Texas, Page 11

    11

  • Form TCEQ-10137 Surface Coating Facility Air Permits by Rule 106.433 Checklist - Texas, Page 1
  • Form TCEQ-10137 Surface Coating Facility Air Permits by Rule 106.433 Checklist - Texas, Page 2
  • Form TCEQ-10137 Surface Coating Facility Air Permits by Rule 106.433 Checklist - Texas, Page 3
  • Form TCEQ-10137 Surface Coating Facility Air Permits by Rule 106.433 Checklist - Texas, Page 4
  • Form TCEQ-10137 Surface Coating Facility Air Permits by Rule 106.433 Checklist - Texas, Page 5
  • Form TCEQ-10137 Surface Coating Facility Air Permits by Rule 106.433 Checklist - Texas, Page 6
  • Form TCEQ-10137 Surface Coating Facility Air Permits by Rule 106.433 Checklist - Texas, Page 7
  • Form TCEQ-10137 Surface Coating Facility Air Permits by Rule 106.433 Checklist - Texas, Page 8
  • Form TCEQ-10137 Surface Coating Facility Air Permits by Rule 106.433 Checklist - Texas, Page 9
  • Form TCEQ-10137 Surface Coating Facility Air Permits by Rule 106.433 Checklist - Texas, Page 10
  • Form TCEQ-10137 Surface Coating Facility Air Permits by Rule 106.433 Checklist - Texas, Page 11
Prev 1 2 3 4 5 ... 11 Next
ADVERTISEMENT

Related Documents