Form TCEQ-10138 Auto Body Refinishing Facility Air Permits by Rule 106.436 Checklist - Texas

Form TCEQ-10138 Auto Body Refinishing Facility Air Permits by Rule 106.436 Checklist - Texas

What Is Form TCEQ-10138?

This is a legal form that was released by the Texas Commission on Environmental Quality - a government authority operating within Texas. As of today, no separate filing guidelines for the form are provided by the issuing department.

FAQ

Q: What is Form TCEQ-10138?
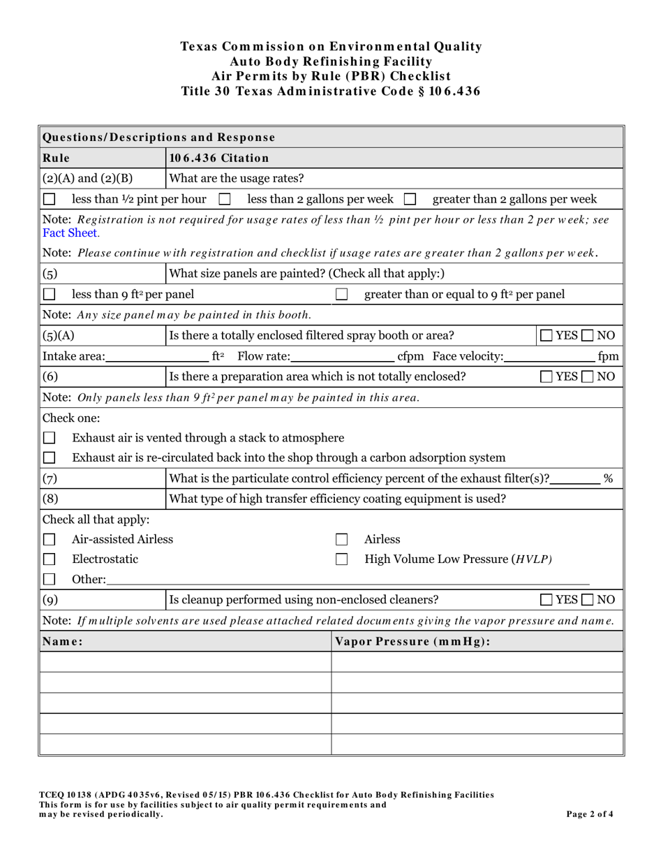
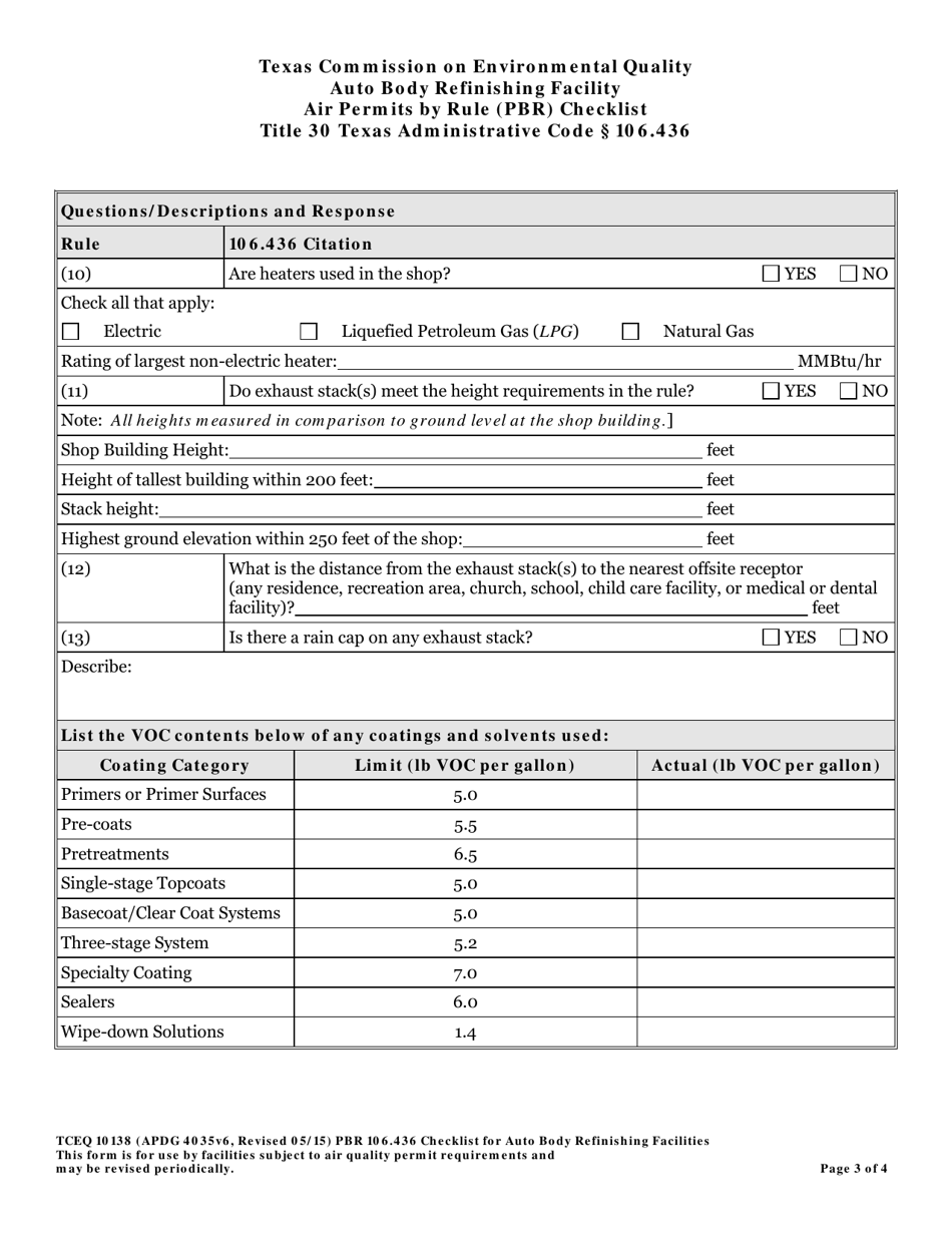
A: Form TCEQ-10138 is a checklist for Auto Body Refinishing Facility Air Permits by Rule 106.436 in Texas.

Q: What does the checklist include?
A: The checklist includes requirements and documentation needed for obtaining an air permit for auto body refinishing facilities.

Q: What is an Auto Body Refinishing Facility?
A: An Auto Body Refinishing Facility is a place where vehicles are repaired, painted, or refinished after collision or damage.

Q: What is Rule 106.436?
A: Rule 106.436 is a specific regulation related to air permitting for auto body refinishing facilities in Texas.

Q: Why is an air permit required for auto body refinishing facilities?
A: An air permit is required to ensure that the emissions from these facilities meet environmental regulations and do not harm air quality.

Q: Who needs to complete Form TCEQ-10138?
A: Auto body refinishing facilities in Texas that are subject to Rule 106.436 need to complete this form.

Q: What happens after completing Form TCEQ-10138?
A: After completing the form, it should be submitted to the TCEQ along with any required documentation and fees.

Q: How long does it take to obtain an air permit?
A: The time it takes to obtain an air permit can vary, but it typically takes several weeks to months to complete the review process.

Q: Are there any exemptions to the air permit requirements?
A: There may be exemptions available for certain types of auto body refinishing facilities. It is best to consult with the TCEQ for specific details.

ADVERTISEMENT

Form Details:

  • Released on May 1, 2015;
  • The latest edition provided by the Texas Commission on Environmental Quality;
  • Easy to use and ready to print;
  • Quick to customize;
  • Compatible with most PDF-viewing applications;
  • Fill out the form in our online filing application.

Download a fillable version of Form TCEQ-10138 by clicking the link below or browse more documents and templates provided by the Texas Commission on Environmental Quality.

Download Form TCEQ-10138 Auto Body Refinishing Facility Air Permits by Rule 106.436 Checklist - Texas

4.8 of 5 (16 votes)
  • Form TCEQ-10138 Auto Body Refinishing Facility Air Permits by Rule 106.436 Checklist - Texas

    1

  • Form TCEQ-10138 Auto Body Refinishing Facility Air Permits by Rule 106.436 Checklist - Texas, Page 2

    2

  • Form TCEQ-10138 Auto Body Refinishing Facility Air Permits by Rule 106.436 Checklist - Texas, Page 3

    3

  • Form TCEQ-10138 Auto Body Refinishing Facility Air Permits by Rule 106.436 Checklist - Texas, Page 4

    4

  • Form TCEQ-10138 Auto Body Refinishing Facility Air Permits by Rule 106.436 Checklist - Texas, Page 1
  • Form TCEQ-10138 Auto Body Refinishing Facility Air Permits by Rule 106.436 Checklist - Texas, Page 2
  • Form TCEQ-10138 Auto Body Refinishing Facility Air Permits by Rule 106.436 Checklist - Texas, Page 3
  • Form TCEQ-10138 Auto Body Refinishing Facility Air Permits by Rule 106.436 Checklist - Texas, Page 4
Prev 1 2 3 4 Next
ADVERTISEMENT

Related Documents