Form TCEQ-20272 Dual Chamber Incinerators Air Permits by Rule 106.491 Checklist - Texas

Form TCEQ-20272 Dual Chamber Incinerators Air Permits by Rule 106.491 Checklist - Texas

What Is Form TCEQ-20272?

This is a legal form that was released by the Texas Commission on Environmental Quality - a government authority operating within Texas. As of today, no separate filing guidelines for the form are provided by the issuing department.

FAQ

Q: What is Form TCEQ-20272?
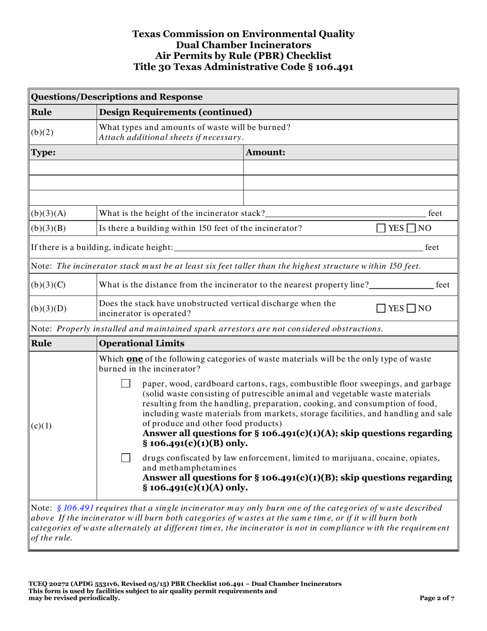
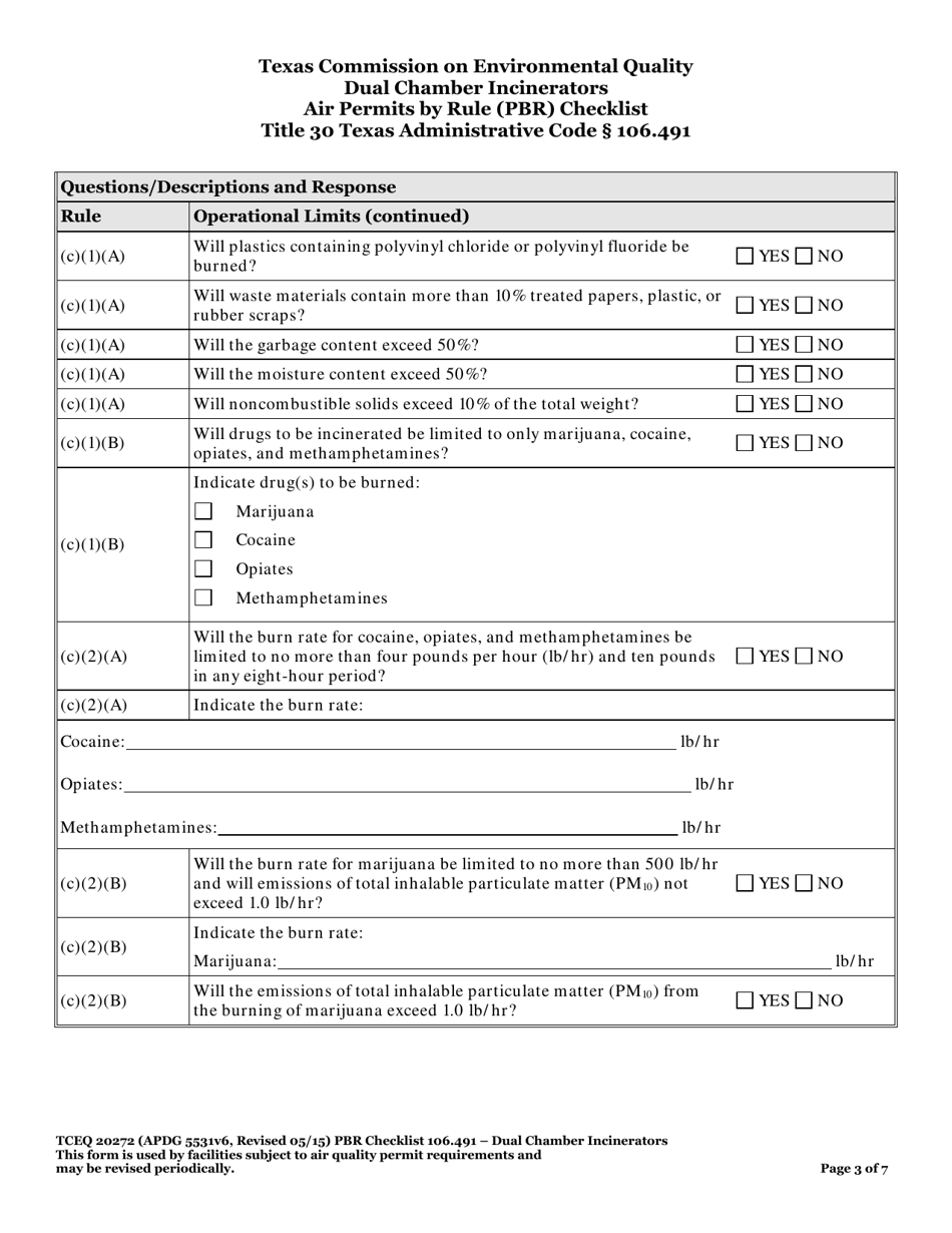
A: Form TCEQ-20272 is a checklist for Dual Chamber Incinerators Air Permits by Rule 106.491 in Texas.

Q: What does the checklist include?
A: The checklist includes specific requirements and criteria for obtaining an air permit for dual chamber incinerators.

Q: What is an air permit?
A: An air permit is a legal document that allows a facility to emit pollutants into the air, subject to certain conditions and limits.

Q: What is a dual chamber incinerator?
A: A dual chamber incinerator is a type of incinerator system that has two separate chambers for the combustion of waste.

Q: What is Air Permits by Rule 106.491?
A: Air Permits by Rule 106.491 is a specific regulation in Texas that outlines the requirements for incinerators to meet in order to qualify for an air permit.

Q: Who needs to use this checklist?
A: Any facility in Texas seeking an air permit for a dual chamber incinerator under Air Permits by Rule 106.491 should use this checklist.

Q: What happens if a facility does not comply with the checklist requirements?
A: Non-compliance with the checklist requirements may result in the denial or revocation of an air permit, or other enforcement actions by the TCEQ.

ADVERTISEMENT

Form Details:

  • Released on May 1, 2015;
  • The latest edition provided by the Texas Commission on Environmental Quality;
  • Easy to use and ready to print;
  • Quick to customize;
  • Compatible with most PDF-viewing applications;
  • Fill out the form in our online filing application.

Download a fillable version of Form TCEQ-20272 by clicking the link below or browse more documents and templates provided by the Texas Commission on Environmental Quality.

Download Form TCEQ-20272 Dual Chamber Incinerators Air Permits by Rule 106.491 Checklist - Texas

4.8 of 5 (23 votes)
  • Form TCEQ-20272 Dual Chamber Incinerators Air Permits by Rule 106.491 Checklist - Texas

    1

  • Form TCEQ-20272 Dual Chamber Incinerators Air Permits by Rule 106.491 Checklist - Texas, Page 2

    2

  • Form TCEQ-20272 Dual Chamber Incinerators Air Permits by Rule 106.491 Checklist - Texas, Page 3

    3

  • Form TCEQ-20272 Dual Chamber Incinerators Air Permits by Rule 106.491 Checklist - Texas, Page 4

    4

  • Form TCEQ-20272 Dual Chamber Incinerators Air Permits by Rule 106.491 Checklist - Texas, Page 5

    5

  • Form TCEQ-20272 Dual Chamber Incinerators Air Permits by Rule 106.491 Checklist - Texas, Page 6

    6

  • Form TCEQ-20272 Dual Chamber Incinerators Air Permits by Rule 106.491 Checklist - Texas, Page 7

    7

  • Form TCEQ-20272 Dual Chamber Incinerators Air Permits by Rule 106.491 Checklist - Texas, Page 1
  • Form TCEQ-20272 Dual Chamber Incinerators Air Permits by Rule 106.491 Checklist - Texas, Page 2
  • Form TCEQ-20272 Dual Chamber Incinerators Air Permits by Rule 106.491 Checklist - Texas, Page 3
  • Form TCEQ-20272 Dual Chamber Incinerators Air Permits by Rule 106.491 Checklist - Texas, Page 4
  • Form TCEQ-20272 Dual Chamber Incinerators Air Permits by Rule 106.491 Checklist - Texas, Page 5
  • Form TCEQ-20272 Dual Chamber Incinerators Air Permits by Rule 106.491 Checklist - Texas, Page 6
  • Form TCEQ-20272 Dual Chamber Incinerators Air Permits by Rule 106.491 Checklist - Texas, Page 7
Prev 1 2 3 4 5 ... 7 Next
ADVERTISEMENT

Related Documents