Form F625-001-303 Application for Construction Contractor Registration - Washington (Somali)

Form F625-001-303 Application for Construction Contractor Registration - Washington (Somali)

This is a legal form that was released by the Washington State Department of Labor and Industries - a government authority operating within Washington.

The document is provided in Somali. As of today, no separate filing guidelines for the form are provided by the issuing department.

Form Details:

  • Released on December 1, 2018;
  • The latest edition provided by the Washington State Department of Labor and Industries;
  • Easy to use and ready to print;
  • Quick to customize;
  • Compatible with most PDF-viewing applications;

Download a printable version of Form F625-001-303 by clicking the link below or browse more documents and templates provided by the Washington State Department of Labor and Industries.

ADVERTISEMENT

Download Form F625-001-303 Application for Construction Contractor Registration - Washington (Somali)

4.6 of 5 (7 votes)
  • Form F625-001-303 Application for Construction Contractor Registration - Washington (Somali)

    1

  • Form F625-001-303 Application for Construction Contractor Registration - Washington (Somali), Page 2

    2

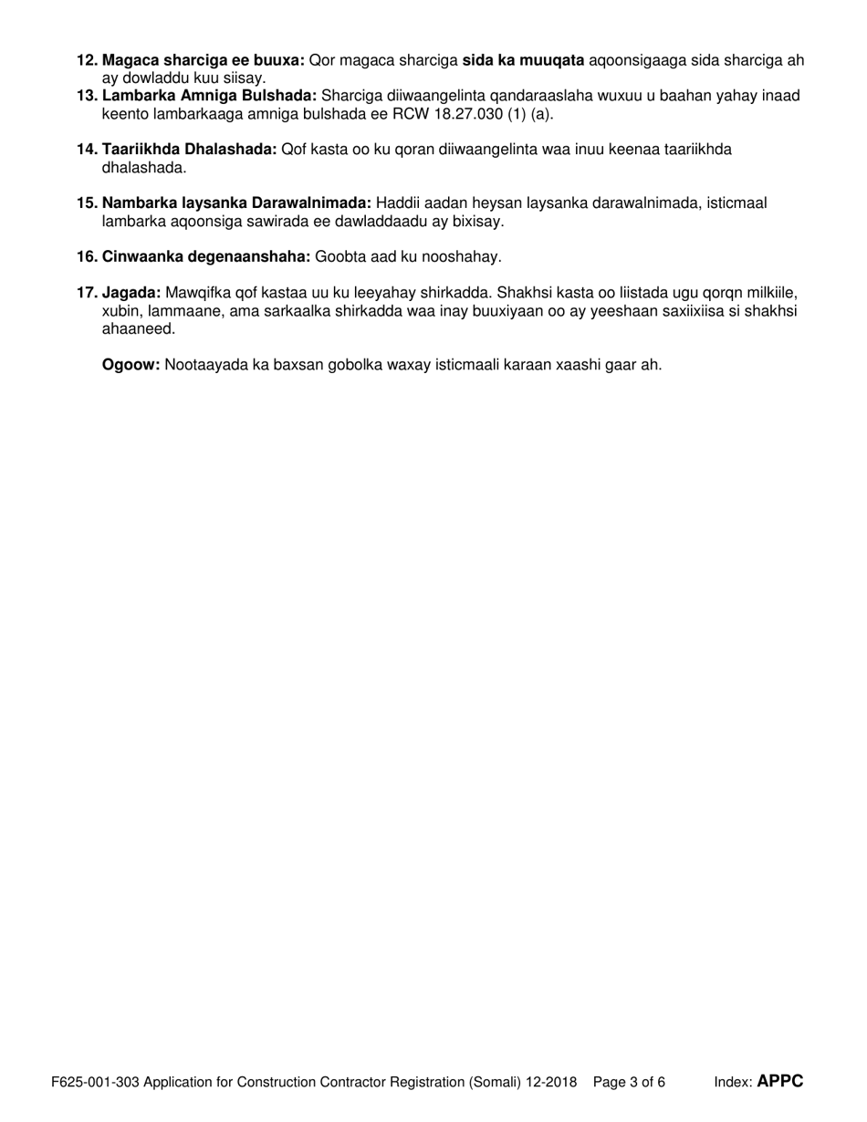
  • Form F625-001-303 Application for Construction Contractor Registration - Washington (Somali), Page 3

    3

  • Form F625-001-303 Application for Construction Contractor Registration - Washington (Somali), Page 4

    4

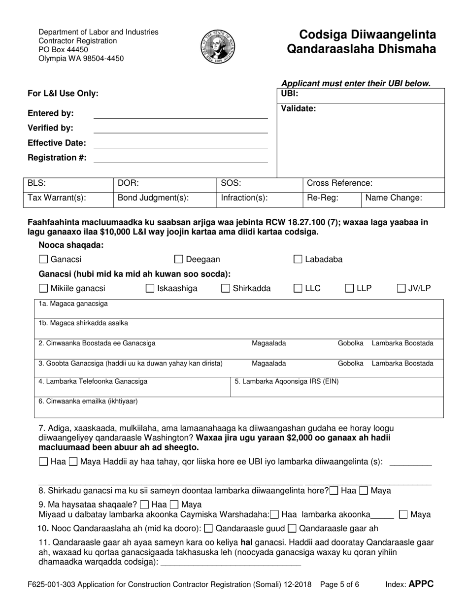
  • Form F625-001-303 Application for Construction Contractor Registration - Washington (Somali), Page 5

    5

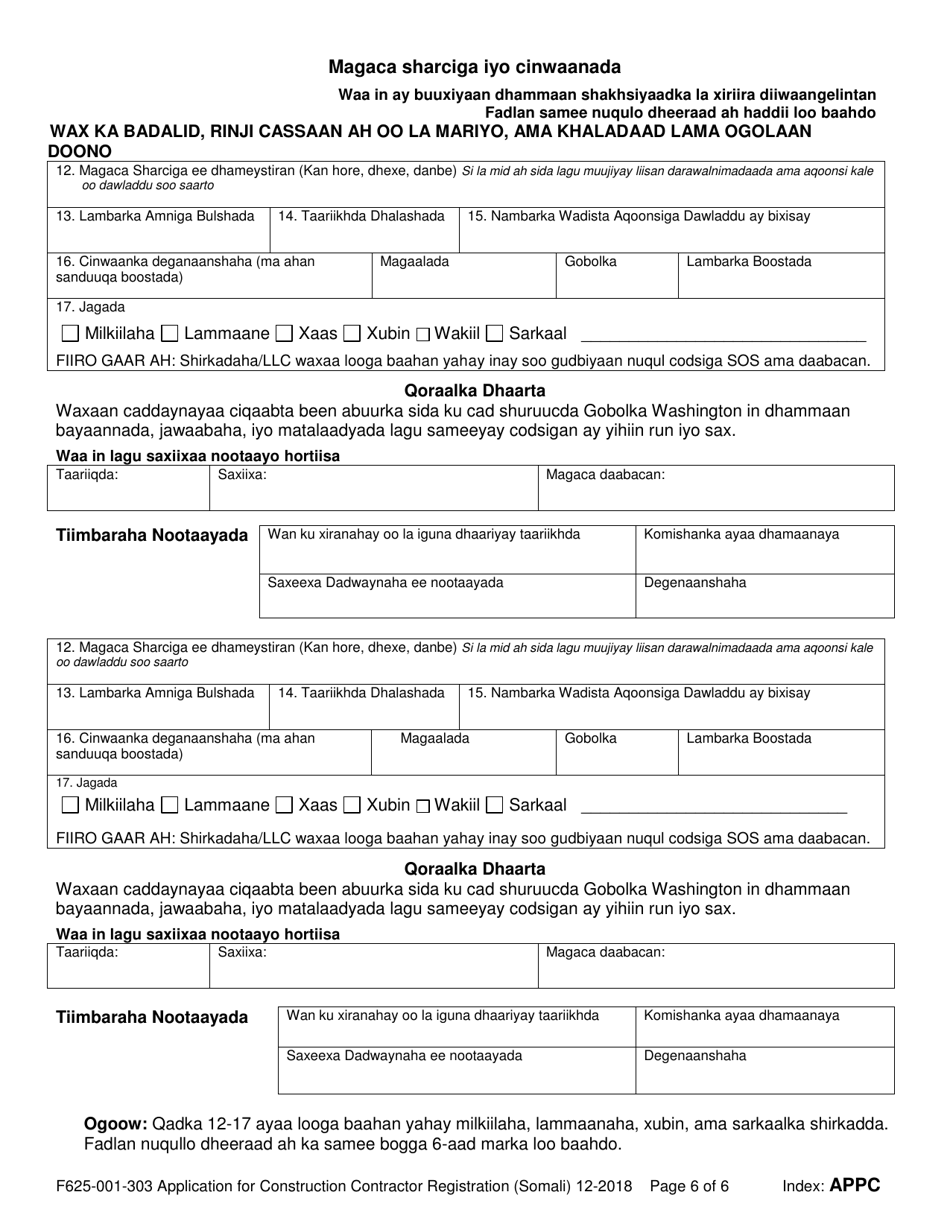
  • Form F625-001-303 Application for Construction Contractor Registration - Washington (Somali), Page 6

    6

  • Form F625-001-303 Application for Construction Contractor Registration - Washington (Somali), Page 1
  • Form F625-001-303 Application for Construction Contractor Registration - Washington (Somali), Page 2
  • Form F625-001-303 Application for Construction Contractor Registration - Washington (Somali), Page 3
  • Form F625-001-303 Application for Construction Contractor Registration - Washington (Somali), Page 4
  • Form F625-001-303 Application for Construction Contractor Registration - Washington (Somali), Page 5
  • Form F625-001-303 Application for Construction Contractor Registration - Washington (Somali), Page 6
Prev 1 2 3 4 5 6 Next
ADVERTISEMENT

Related Documents