Form LW203B Onsite Liquid Waste Photo Inspection Form - New Mexico

Notification Icon This version of the form is not currently in use and is provided for reference only. Download this version of Form LW203B for the current year.

Form LW203B Onsite Liquid Waste Photo Inspection Form - New Mexico

What Is Form LW203B?

This is a legal form that was released by the New Mexico Environment Department - a government authority operating within New Mexico. As of today, no separate filing guidelines for the form are provided by the issuing department.

FAQ

Q: What is Form LW203B?
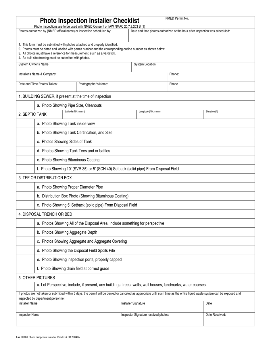
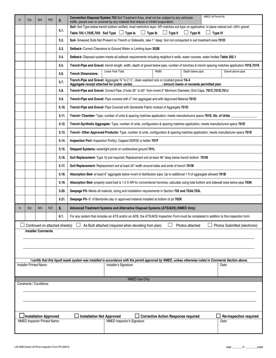
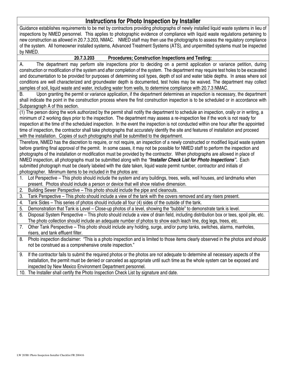
A: Form LW203B is the Onsite Liquid Waste Photo Inspection Form used in New Mexico.

Q: What is the purpose of Form LW203B?
A: The purpose of Form LW203B is to document the onsite liquid waste photo inspection in New Mexico.

Q: What does Form LW203B capture?
A: Form LW203B captures the photo documentation of onsite liquid waste inspections.

Q: Who uses Form LW203B?
A: Form LW203B is used by professionals involved in onsite liquid waste inspections in New Mexico.

Q: Is Form LW203B specific to New Mexico?
A: Yes, Form LW203B is specific to New Mexico.

Q: Can Form LW203B be used in other states?
A: No, Form LW203B is specific to New Mexico and may not be used in other states.

Q: What should I do with Form LW203B after completing it?
A: After completing Form LW203B, you should submit it to the relevant regulatory agency in New Mexico.

Q: Are there any fees associated with Form LW203B?
A: There may be fees associated with the submission of Form LW203B in New Mexico. Please consult the regulatory agency for more information.

ADVERTISEMENT

Form Details:

  • Released on April 20, 2016;
  • The latest edition provided by the New Mexico Environment Department;
  • Easy to use and ready to print;
  • Quick to customize;
  • Compatible with most PDF-viewing applications;
  • Fill out the form in our online filing application.

Download a fillable version of Form LW203B by clicking the link below or browse more documents and templates provided by the New Mexico Environment Department.

Download Form LW203B Onsite Liquid Waste Photo Inspection Form - New Mexico

4.3 of 5 (8 votes)
  • Form LW203B Onsite Liquid Waste Photo Inspection Form - New Mexico

    1

  • Form LW203B Onsite Liquid Waste Photo Inspection Form - New Mexico, Page 2

    2

  • Form LW203B Onsite Liquid Waste Photo Inspection Form - New Mexico, Page 3

    3

  • Form LW203B Onsite Liquid Waste Photo Inspection Form - New Mexico, Page 4

    4

  • Form LW203B Onsite Liquid Waste Photo Inspection Form - New Mexico, Page 1
  • Form LW203B Onsite Liquid Waste Photo Inspection Form - New Mexico, Page 2
  • Form LW203B Onsite Liquid Waste Photo Inspection Form - New Mexico, Page 3
  • Form LW203B Onsite Liquid Waste Photo Inspection Form - New Mexico, Page 4
Prev 1 2 3 4 Next
ADVERTISEMENT

Related Documents