Form DBPR AR7 Business License Maintenance Form - Florida

Notification Icon This version of the form is not currently in use and is provided for reference only. Download this version of Form DBPR AR7 for the current year.

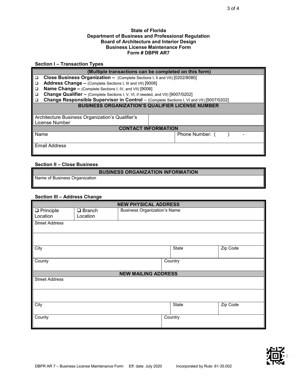
Form DBPR AR7 Business License Maintenance Form - Florida

What Is Form DBPR AR7?

This is a legal form that was released by the Florida Department of Business & Professional Regulation - a government authority operating within Florida. As of today, no separate filing guidelines for the form are provided by the issuing department.

FAQ

Q: What is DBPR AR7?
A: DBPR AR7 is a Business License Maintenance Form for Florida.

Q: What is the purpose of DBPR AR7?
A: The purpose of DBPR AR7 is to maintain business licenses in Florida.

Q: Who needs to fill out DBPR AR7?
A: Businesses operating in Florida are required to fill out DBPR AR7.

Q: What information is required in DBPR AR7?
A: DBPR AR7 requires information such as business name, address, and license number.

Q: Is there a fee for submitting DBPR AR7?
A: Yes, there may be a fee associated with submitting DBPR AR7. The fee amount depends on the type of business license.

Q: Is DBPR AR7 required annually?
A: Yes, DBPR AR7 is generally required to be filed annually to maintain a business license in Florida.

Q: What happens if I don't submit DBPR AR7?
A: Failure to submit DBPR AR7 can result in penalties or the suspension of your business license in Florida.

Q: Can DBPR AR7 be amended?
A: Yes, if there are any changes to the information provided in DBPR AR7, an amendment can be filed.

Q: How long does it take to process DBPR AR7?
A: Processing time for DBPR AR7 may vary, but it typically takes a few weeks for the application to be reviewed and approved.

Q: Can DBPR AR7 be used for all types of businesses?
A: DBPR AR7 is primarily used for businesses regulated by the Florida Department of Business and Professional Regulation. Other types of businesses may have different license maintenance requirements.

ADVERTISEMENT

Form Details:

  • Released on July 1, 2020;
  • The latest edition provided by the Florida Department of Business & Professional Regulation;
  • Easy to use and ready to print;
  • Quick to customize;
  • Compatible with most PDF-viewing applications;
  • Fill out the form in our online filing application.

Download a printable version of Form DBPR AR7 by clicking the link below or browse more documents and templates provided by the Florida Department of Business & Professional Regulation.

Download Form DBPR AR7 Business License Maintenance Form - Florida

4.3 of 5 (22 votes)
  • Form DBPR AR7 Business License Maintenance Form - Florida

    1

  • Form DBPR AR7 Business License Maintenance Form - Florida, Page 2

    2

  • Form DBPR AR7 Business License Maintenance Form - Florida, Page 3

    3

  • Form DBPR AR7 Business License Maintenance Form - Florida, Page 4

    4

  • Form DBPR AR7 Business License Maintenance Form - Florida, Page 1
  • Form DBPR AR7 Business License Maintenance Form - Florida, Page 2
  • Form DBPR AR7 Business License Maintenance Form - Florida, Page 3
  • Form DBPR AR7 Business License Maintenance Form - Florida, Page 4
Prev 1 2 3 4 Next
ADVERTISEMENT