Form DBPR LA4 Application for Licensure: Certificate of Temporary Registration - Florida

Notification Icon This version of the form is not currently in use and is provided for reference only. Download this version of Form DBPR LA4 for the current year.

Form DBPR LA4 Application for Licensure: Certificate of Temporary Registration - Florida

What Is Form DBPR LA4?

This is a legal form that was released by the Florida Department of Business & Professional Regulation - a government authority operating within Florida. As of today, no separate filing guidelines for the form are provided by the issuing department.

FAQ

Q: What is the purpose of the DBPR LA4 Application for Licensure?
A: The purpose of the DBPR LA4 Application for Licensure is to obtain a Certificate of Temporary Registration in Florida.

Q: Who needs to fill out the DBPR LA4 Application for Licensure?
A: Anyone who wants to obtain a Certificate of Temporary Registration in Florida needs to fill out the DBPR LA4 Application for Licensure.

Q: What is a Certificate of Temporary Registration?
A: A Certificate of Temporary Registration is a temporary license that allows an individual to practice a specific profession in Florida for a limited time period.

Q: What information is required on the DBPR LA4 Application for Licensure?
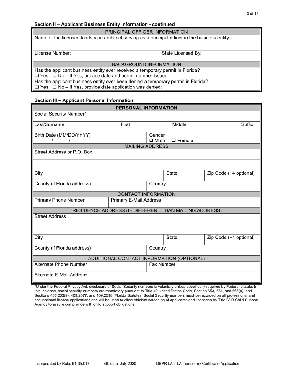
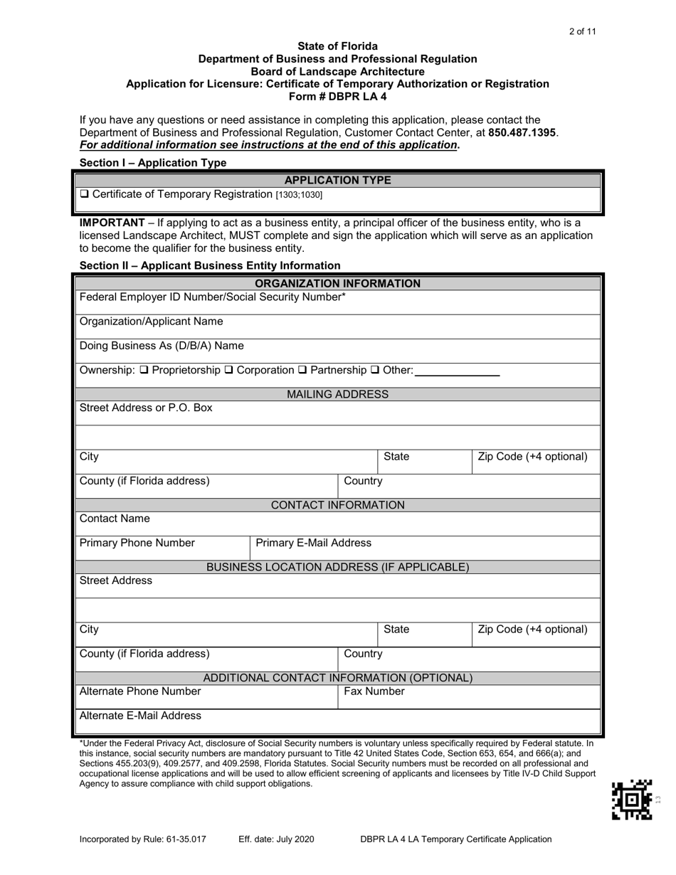
A: The DBPR LA4 Application for Licensure requires personal information, education and employment history, and documentation of qualifications, among other information.

Q: Are there any fees associated with the DBPR LA4 Application for Licensure?
A: Yes, there are fees associated with the DBPR LA4 Application for Licensure. The exact fees vary depending on the profession and circumstances.

Q: How long does it take to process the DBPR LA4 Application for Licensure?
A: The processing time for the DBPR LA4 Application for Licensure can vary. It is recommended to submit the application well in advance of the desired start date.

Q: What happens after my DBPR LA4 Application for Licensure is approved?
A: After your DBPR LA4 Application for Licensure is approved, you will receive a Certificate of Temporary Registration, which allows you to practice your profession in Florida for the specified time period.

Q: How long is a Certificate of Temporary Registration valid for?
A: The validity period of a Certificate of Temporary Registration varies depending on the profession and circumstances. It is typically valid for a limited time period.

ADVERTISEMENT

Form Details:

  • Released on July 1, 2020;
  • The latest edition provided by the Florida Department of Business & Professional Regulation;
  • Easy to use and ready to print;
  • Quick to customize;
  • Compatible with most PDF-viewing applications;
  • Fill out the form in our online filing application.

Download a printable version of Form DBPR LA4 by clicking the link below or browse more documents and templates provided by the Florida Department of Business & Professional Regulation.

Download Form DBPR LA4 Application for Licensure: Certificate of Temporary Registration - Florida

4.7 of 5 (23 votes)
  • Form DBPR LA4 Application for Licensure: Certificate of Temporary Registration - Florida

    1

  • Form DBPR LA4 Application for Licensure: Certificate of Temporary Registration - Florida, Page 2

    2

  • Form DBPR LA4 Application for Licensure: Certificate of Temporary Registration - Florida, Page 3

    3

  • Form DBPR LA4 Application for Licensure: Certificate of Temporary Registration - Florida, Page 4

    4

  • Form DBPR LA4 Application for Licensure: Certificate of Temporary Registration - Florida, Page 5

    5

  • Form DBPR LA4 Application for Licensure: Certificate of Temporary Registration - Florida, Page 6

    6

  • Form DBPR LA4 Application for Licensure: Certificate of Temporary Registration - Florida, Page 7

    7

  • Form DBPR LA4 Application for Licensure: Certificate of Temporary Registration - Florida, Page 8

    8

  • Form DBPR LA4 Application for Licensure: Certificate of Temporary Registration - Florida, Page 9

    9

  • Form DBPR LA4 Application for Licensure: Certificate of Temporary Registration - Florida, Page 10

    10

  • Form DBPR LA4 Application for Licensure: Certificate of Temporary Registration - Florida, Page 11

    11

  • Form DBPR LA4 Application for Licensure: Certificate of Temporary Registration - Florida, Page 1
  • Form DBPR LA4 Application for Licensure: Certificate of Temporary Registration - Florida, Page 2
  • Form DBPR LA4 Application for Licensure: Certificate of Temporary Registration - Florida, Page 3
  • Form DBPR LA4 Application for Licensure: Certificate of Temporary Registration - Florida, Page 4
  • Form DBPR LA4 Application for Licensure: Certificate of Temporary Registration - Florida, Page 5
  • Form DBPR LA4 Application for Licensure: Certificate of Temporary Registration - Florida, Page 6
  • Form DBPR LA4 Application for Licensure: Certificate of Temporary Registration - Florida, Page 7
  • Form DBPR LA4 Application for Licensure: Certificate of Temporary Registration - Florida, Page 8
  • Form DBPR LA4 Application for Licensure: Certificate of Temporary Registration - Florida, Page 9
  • Form DBPR LA4 Application for Licensure: Certificate of Temporary Registration - Florida, Page 10
  • Form DBPR LA4 Application for Licensure: Certificate of Temporary Registration - Florida, Page 11
Prev 1 2 3 4 5 ... 11 Next
ADVERTISEMENT