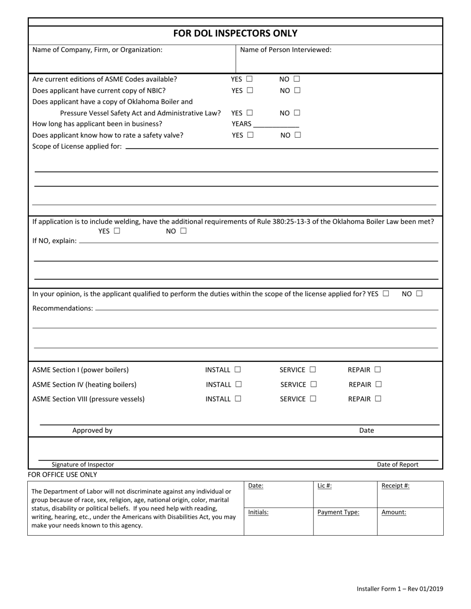
Installer Form 1 Repair, Service, Install License Application - Oklahoma

Installer Form 1 Repair, Service, Install License Application - Oklahoma

What Is Installer Form 1?

This is a legal form that was released by the Oklahoma Department of Labor - a government authority operating within Oklahoma. As of today, no separate filing guidelines for the form are provided by the issuing department.

FAQ

Q: What is Form 1?
A: Form 1 is an application for a repair, service, and installation license in Oklahoma.

Q: What can I use Form 1 for?
A: You can use Form 1 to apply for a license to repair, service, or install various items in Oklahoma.

Q: What items can I repair, service, or install with this license?
A: You can repair, service, or install heating, air conditioning, refrigeration, or plumbing systems with this license.

Q: Do I need a license to repair, service, or install these items in Oklahoma?
A: Yes, you need a license to legally perform repair, service, or installation work on heating, air conditioning, refrigeration, or plumbing systems in Oklahoma.

Q: How do I apply for Form 1?
A: To apply for Form 1, you need to complete the application form and submit it along with the required documents and fees to the Oklahoma Construction Industries Board.

Q: What documents do I need to submit with Form 1?
A: You may need to submit proof of experience, education, insurance, and a surety bond with Form 1. Refer to the instructions on the form for the complete list of required documents.

Q: How much is the fee for Form 1?
A: The fee for Form 1 is $250.

Q: How long does it take to process Form 1?
A: The processing time for Form 1 can vary, but it generally takes around 4-6 weeks.

Q: How long is the Form 1 license valid for?
A: The Form 1 license is valid for one year, and it needs to be renewed annually.

Q: Can I perform repair, service, or installation work without a license?
A: No, it is illegal to perform repair, service, or installation work on heating, air conditioning, refrigeration, or plumbing systems in Oklahoma without a license.

ADVERTISEMENT

Form Details:

  • Released on January 1, 2019;
  • The latest edition provided by the Oklahoma Department of Labor;
  • Easy to use and ready to print;
  • Quick to customize;
  • Compatible with most PDF-viewing applications;
  • Fill out the form in our online filing application.

Download a fillable version of Installer Form 1 by clicking the link below or browse more documents and templates provided by the Oklahoma Department of Labor.

Download Installer Form 1 Repair, Service, Install License Application - Oklahoma

4.8 of 5 (12 votes)
  • Installer Form 1 Repair, Service, Install License Application - Oklahoma

    1

  • Installer Form 1 Repair, Service, Install License Application - Oklahoma, Page 2

    2

  • Installer Form 1 Repair, Service, Install License Application - Oklahoma, Page 3

    3

  • Installer Form 1 Repair, Service, Install License Application - Oklahoma, Page 4

    4

  • Installer Form 1 Repair, Service, Install License Application - Oklahoma, Page 5

    5

  • Installer Form 1 Repair, Service, Install License Application - Oklahoma, Page 6

    6

  • Installer Form 1 Repair, Service, Install License Application - Oklahoma, Page 7

    7

  • Installer Form 1 Repair, Service, Install License Application - Oklahoma, Page 8

    8

  • Installer Form 1 Repair, Service, Install License Application - Oklahoma, Page 9

    9

  • Installer Form 1 Repair, Service, Install License Application - Oklahoma, Page 10

    10

  • Installer Form 1 Repair, Service, Install License Application - Oklahoma, Page 11

    11

  • Installer Form 1 Repair, Service, Install License Application - Oklahoma, Page 12

    12

  • Installer Form 1 Repair, Service, Install License Application - Oklahoma, Page 13

    13

  • Installer Form 1 Repair, Service, Install License Application - Oklahoma, Page 1
  • Installer Form 1 Repair, Service, Install License Application - Oklahoma, Page 2
  • Installer Form 1 Repair, Service, Install License Application - Oklahoma, Page 3
  • Installer Form 1 Repair, Service, Install License Application - Oklahoma, Page 4
  • Installer Form 1 Repair, Service, Install License Application - Oklahoma, Page 5
  • Installer Form 1 Repair, Service, Install License Application - Oklahoma, Page 6
  • Installer Form 1 Repair, Service, Install License Application - Oklahoma, Page 7
  • Installer Form 1 Repair, Service, Install License Application - Oklahoma, Page 8
  • Installer Form 1 Repair, Service, Install License Application - Oklahoma, Page 9
  • Installer Form 1 Repair, Service, Install License Application - Oklahoma, Page 10
  • Installer Form 1 Repair, Service, Install License Application - Oklahoma, Page 11
  • Installer Form 1 Repair, Service, Install License Application - Oklahoma, Page 12
  • Installer Form 1 Repair, Service, Install License Application - Oklahoma, Page 13
Prev 1 2 3 4 5 ... 13 Next
ADVERTISEMENT