Form ARB-M4 Municipal Act Complaint - Vacant Unit Rebate - Ontario, Canada

Notification Icon This version of the form is not currently in use and is provided for reference only. Download this version of Form ARB-M4 for the current year.

Form ARB-M4 Municipal Act Complaint - Vacant Unit Rebate - Ontario, Canada

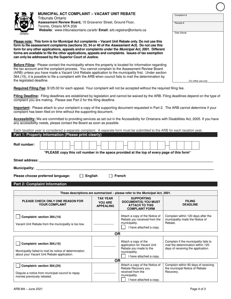
Form ARB-M4 is a complaint form used in Ontario, Canada, specifically for claiming a vacant unit rebate under the Municipal Act. This rebate is applicable for property owners who have vacant commercial or industrial units and meet specific eligibility criteria outlined by the municipality. The form is used to initiate the complaint process and seek a financial rebate for the vacant unit.

The property owner or their authorized representative files the Form ARB-M4 Municipal Act Complaint - Vacant Unit Rebate in Ontario, Canada.

FAQ

Q: What is ARB-M4 Municipal Act Complaint?
A: ARB-M4 is a form used to file a complaint regarding municipal property tax assessments in Ontario, Canada.

Q: What is the Municipal Act?
A: The Municipal Act is a legislation that governs municipal governments in Ontario, Canada.

Q: What is a Vacant Unit Rebate?
A: Vacant Unit Rebate is a tax rebate provided to property owners in Ontario, Canada, for eligible vacant commercial or industrial units.

Q: Who is eligible for the Vacant Unit Rebate?
A: Property owners in Ontario, Canada, who have vacant commercial or industrial units that meet certain eligibility criteria may be eligible for the rebate.

Q: How can I file a complaint using the ARB-M4 form?
A: To file a complaint using the ARB-M4 form, you need to complete the form with the relevant information and submit it to the Assessment Review Board (ARB) in Ontario, Canada.

ADVERTISEMENT

Download Form ARB-M4 Municipal Act Complaint - Vacant Unit Rebate - Ontario, Canada

4.6 of 5 (7 votes)
  • Form ARB-M4 Municipal Act Complaint - Vacant Unit Rebate - Ontario, Canada

    1

  • Form ARB-M4 Municipal Act Complaint - Vacant Unit Rebate - Ontario, Canada, Page 2

    2

  • Form ARB-M4 Municipal Act Complaint - Vacant Unit Rebate - Ontario, Canada, Page 3

    3

  • Form ARB-M4 Municipal Act Complaint - Vacant Unit Rebate - Ontario, Canada, Page 4

    4

  • Form ARB-M4 Municipal Act Complaint - Vacant Unit Rebate - Ontario, Canada, Page 5

    5

  • Form ARB-M4 Municipal Act Complaint - Vacant Unit Rebate - Ontario, Canada, Page 6

    6

  • Form ARB-M4 Municipal Act Complaint - Vacant Unit Rebate - Ontario, Canada, Page 7

    7

  • Form ARB-M4 Municipal Act Complaint - Vacant Unit Rebate - Ontario, Canada, Page 1
  • Form ARB-M4 Municipal Act Complaint - Vacant Unit Rebate - Ontario, Canada, Page 2
  • Form ARB-M4 Municipal Act Complaint - Vacant Unit Rebate - Ontario, Canada, Page 3
  • Form ARB-M4 Municipal Act Complaint - Vacant Unit Rebate - Ontario, Canada, Page 4
  • Form ARB-M4 Municipal Act Complaint - Vacant Unit Rebate - Ontario, Canada, Page 5
  • Form ARB-M4 Municipal Act Complaint - Vacant Unit Rebate - Ontario, Canada, Page 6
  • Form ARB-M4 Municipal Act Complaint - Vacant Unit Rebate - Ontario, Canada, Page 7
Prev 1 2 3 4 5 ... 7 Next
ADVERTISEMENT