Form EQP5731 General Air Permit to Install Application - Anhydrous Ammonia Storage and Handling - Michigan

Form EQP5731 General Air Permit to Install Application - Anhydrous Ammonia Storage and Handling - Michigan

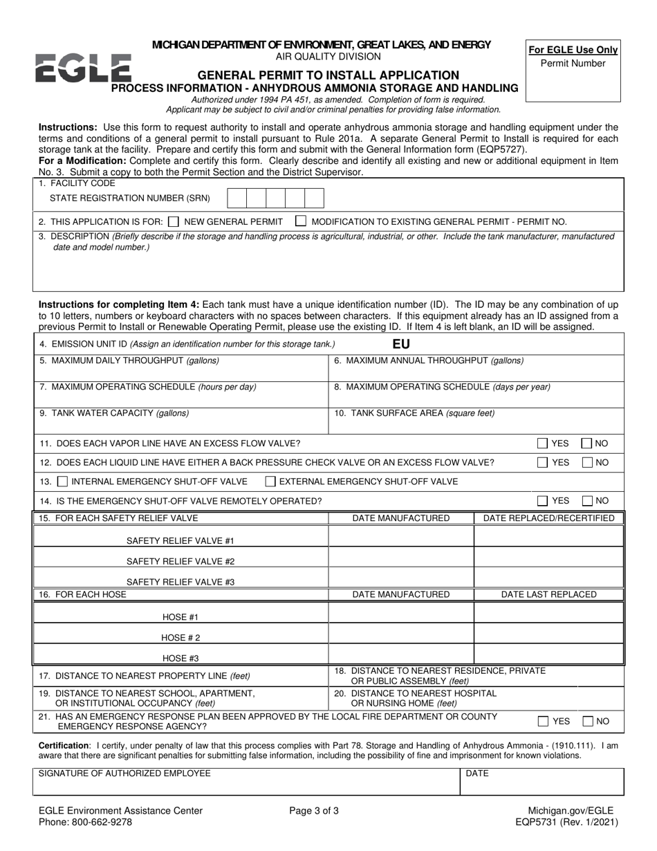
What Is Form EQP5731?

This is a legal form that was released by the Michigan Department of Environment, Great Lakes, and Energy - a government authority operating within Michigan. As of today, no separate filing guidelines for the form are provided by the issuing department.

FAQ

Q: What is EQP5731 General Air Permit to Install Application?
A: EQP5731 is a permit application for Anhydrous Ammonia Storage and Handling in Michigan.

Q: What is Anhydrous Ammonia?
A: Anhydrous Ammonia is a chemical compound often used as a fertilizer.

Q: What does the EQP5731 permit cover?
A: The EQP5731 permit covers the installation and operation of facilities that store and handle Anhydrous Ammonia in Michigan.

Q: What is the purpose of the permit?
A: The purpose of the permit is to regulate and ensure the safe storage and handling of Anhydrous Ammonia to protect public health and the environment.

Q: Who needs to apply for the EQP5731 permit?
A: Any facility in Michigan that intends to store and handle Anhydrous Ammonia needs to apply for the EQP5731 permit.

Q: What are the requirements for the permit application?
A: The permit application requires detailed information about the facility, including its location, equipment, storage capacity, and safety measures.

Q: Are there any fees associated with the permit application?
A: Yes, there are fees associated with the EQP5731 permit application. The fees depend on the storage capacity of the facility.

Q: How long does it take to obtain the permit?
A: The processing time for the permit application varies. It may take a few weeks to a few months to obtain the EQP5731 permit.

Q: Is the permit renewable?
A: Yes, the EQP5731 permit is renewable. Facilities need to apply for renewal before the expiration of their current permit.

Q: What happens if a facility operates without the EQP5731 permit?
A: Operating without the EQP5731 permit is a violation of Michigan environmental regulations and may result in penalties and enforcement actions by regulatory authorities.

ADVERTISEMENT

Form Details:

  • Released on January 1, 2021;
  • The latest edition provided by the Michigan Department of Environment, Great Lakes, and Energy;
  • Easy to use and ready to print;
  • Quick to customize;
  • Compatible with most PDF-viewing applications;
  • Fill out the form in our online filing application.

Download a fillable version of Form EQP5731 by clicking the link below or browse more documents and templates provided by the Michigan Department of Environment, Great Lakes, and Energy.

Download Form EQP5731 General Air Permit to Install Application - Anhydrous Ammonia Storage and Handling - Michigan

4.8 of 5 (11 votes)
  • Form EQP5731 General Air Permit to Install Application - Anhydrous Ammonia Storage and Handling - Michigan

    1

  • Form EQP5731 General Air Permit to Install Application - Anhydrous Ammonia Storage and Handling - Michigan, Page 2

    2

  • Form EQP5731 General Air Permit to Install Application - Anhydrous Ammonia Storage and Handling - Michigan, Page 3

    3

  • Form EQP5731 General Air Permit to Install Application - Anhydrous Ammonia Storage and Handling - Michigan, Page 1
  • Form EQP5731 General Air Permit to Install Application - Anhydrous Ammonia Storage and Handling - Michigan, Page 2
  • Form EQP5731 General Air Permit to Install Application - Anhydrous Ammonia Storage and Handling - Michigan, Page 3
Prev 1 2 3 Next
ADVERTISEMENT

Related Documents