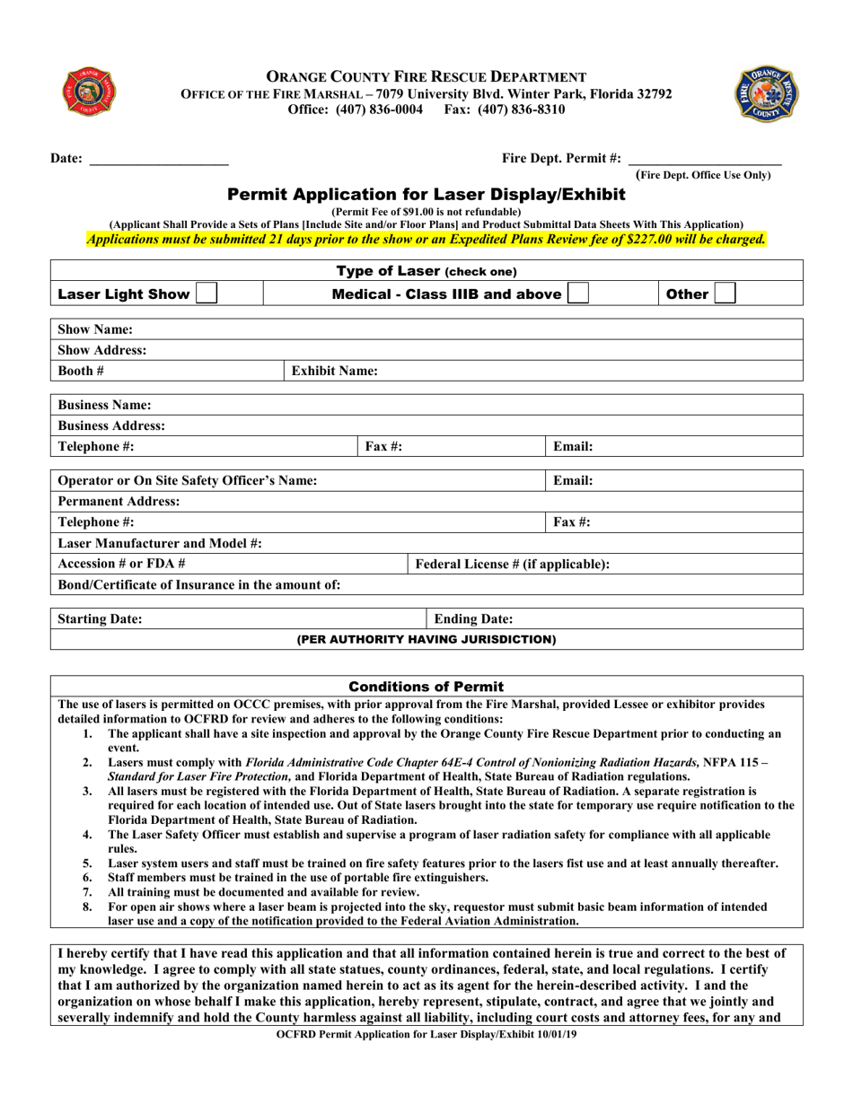
Permit Application for Laser Display / Exhibit - Orange County, Florida

Notification Icon This version of the form is not currently in use and is provided for reference only. Download this version of the document for the current year.

Permit Application for Laser Display / Exhibit - Orange County, Florida

Permit Application for Laser Display/Exhibit is a legal document that was released by the Fire Rescue Department - Orange County, Florida - a government authority operating within Florida. The form may be used strictly within Orange County.

FAQ

Q: What is the purpose of a permit application for a laser display/exhibit in Orange County, Florida?
A: The permit application is required for the safe operation of a laser display/exhibit in Orange County, Florida.

Q: Who needs to submit a permit application for a laser display/exhibit in Orange County, Florida?
A: Any individual or organization planning to operate a laser display/exhibit in Orange County, Florida needs to submit a permit application.

Q: How can I obtain a permit application for a laser display/exhibit in Orange County, Florida?
A: You can obtain a permit application for a laser display/exhibit in Orange County, Florida by contacting the appropriate office or department responsible for permits.

Q: What information is needed in a permit application for a laser display/exhibit in Orange County, Florida?
A: A permit application for a laser display/exhibit in Orange County, Florida typically requires information such as the event details, laser equipment specifications, safety measures, and proof of insurance.

Q: Are there any fees associated with the permit application for a laser display/exhibit in Orange County, Florida?
A: Yes, there are fees associated with the permit application for a laser display/exhibit in Orange County, Florida. The specific fees can be obtained from the office or department responsible for permits.

Q: Is there a deadline for submitting a permit application for a laser display/exhibit in Orange County, Florida?
A: Yes, there is typically a deadline for submitting a permit application for a laser display/exhibit in Orange County, Florida. It is recommended to submit the application well in advance of the event date.

ADVERTISEMENT

Form Details:

  • Released on October 1, 2020;
  • The latest edition currently provided by the Fire Rescue Department - Orange County, Florida;
  • Ready to use and print;
  • Easy to customize;
  • Compatible with most PDF-viewing applications;
  • Fill out the form in our online filing application.

Download a fillable version of the form by clicking the link below or browse more documents and templates provided by the Fire Rescue Department - Orange County, Florida.

Download Permit Application for Laser Display / Exhibit - Orange County, Florida

4.5 of 5 (26 votes)
  • Permit Application for Laser Display/Exhibit - Orange County, Florida

    1

  • Permit Application for Laser Display/Exhibit - Orange County, Florida, Page 2

    2

  • Permit Application for Laser Display/Exhibit - Orange County, Florida, Page 3

    3

  • Permit Application for Laser Display/Exhibit - Orange County, Florida, Page 4

    4

  • Permit Application for Laser Display/Exhibit - Orange County, Florida, Page 5

    5

  • Permit Application for Laser Display/Exhibit - Orange County, Florida, Page 6

    6

  • Permit Application for Laser Display/Exhibit - Orange County, Florida, Page 7

    7

  • Permit Application for Laser Display / Exhibit - Orange County, Florida, Page 1
  • Permit Application for Laser Display / Exhibit - Orange County, Florida, Page 2
  • Permit Application for Laser Display / Exhibit - Orange County, Florida, Page 3
  • Permit Application for Laser Display / Exhibit - Orange County, Florida, Page 4
  • Permit Application for Laser Display / Exhibit - Orange County, Florida, Page 5
  • Permit Application for Laser Display / Exhibit - Orange County, Florida, Page 6
  • Permit Application for Laser Display / Exhibit - Orange County, Florida, Page 7
Prev 1 2 3 4 5 ... 7 Next
ADVERTISEMENT

Related Documents