DOT Form ODA0002 Outdoor Advertising (Oda) Display Permit Application - California

DOT Form ODA0002 Outdoor Advertising (Oda) Display Permit Application - California

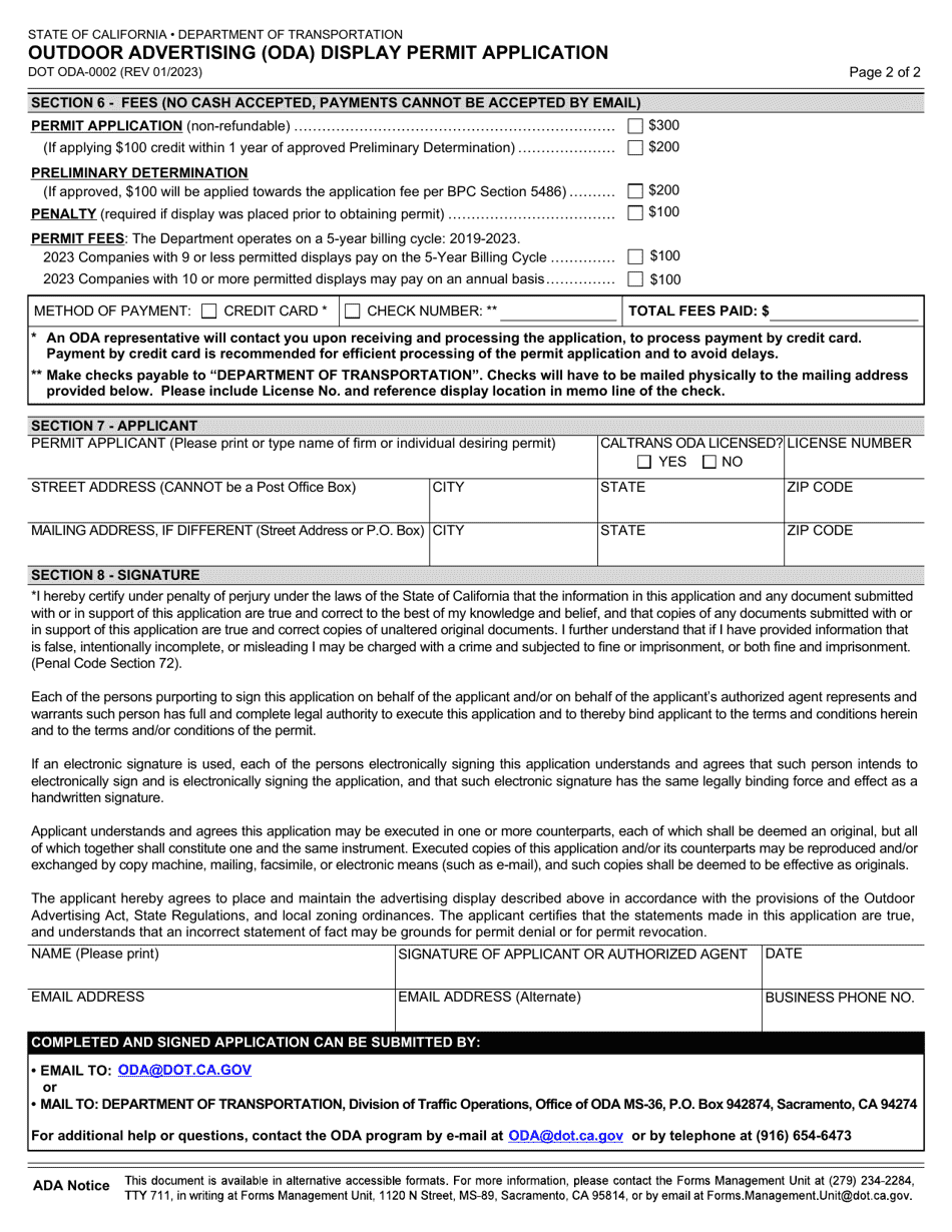
What Is DOT Form ODA0002?

This is a legal form that was released by the California Department of Transportation - a government authority operating within California. As of today, no separate filing guidelines for the form are provided by the issuing department.

FAQ

Q: What is DOT Form ODA0002?
A: DOT Form ODA0002 is the Outdoor Advertising (Oda) Display Permit Application.

Q: What is the purpose of DOT Form ODA0002?
A: The purpose of DOT Form ODA0002 is to apply for a permit for outdoor advertising display in California.

Q: Who needs to fill out DOT Form ODA0002?
A: Any individual or entity planning to install or modify an outdoor advertising display in California needs to fill out DOT Form ODA0002.

Q: What information is required in DOT Form ODA0002?
A: DOT Form ODA0002 requires information such as the applicant's contact details, advertising display location, and specifications of the display.

Q: Is there a fee for submitting DOT Form ODA0002?
A: Yes, there is a fee associated with submitting DOT Form ODA0002. The fee amount can vary depending on the nature of the advertising display.

Q: How long does it take to process DOT Form ODA0002?
A: Processing times for DOT Form ODA0002 can vary, but it typically takes several weeks to receive a permit decision.

Q: Are there any restrictions on outdoor advertising displays in California?
A: Yes, there are restrictions on the size, height, and placement of outdoor advertising displays in California. Specific regulations can be found in the California Outdoor Advertising Act.

Q: What happens if I install or modify an outdoor advertising display without a permit?
A: Installing or modifying an outdoor advertising display without a permit is a violation of California law and can result in penalties and fines.

Q: Can I appeal a denial of my Oda Display Permit Application?
A: Yes, if your Oda Display Permit Application is denied, you have the right to appeal the decision within a specified timeframe.

ADVERTISEMENT

Form Details:

  • Released on January 1, 2023;
  • The latest edition provided by the California Department of Transportation;
  • Easy to use and ready to print;
  • Quick to customize;
  • Compatible with most PDF-viewing applications;
  • Fill out the form in our online filing application.

Download a fillable version of DOT Form ODA0002 by clicking the link below or browse more documents and templates provided by the California Department of Transportation.

Download DOT Form ODA0002 Outdoor Advertising (Oda) Display Permit Application - California

4.7 of 5 (26 votes)
  • DOT Form ODA0002 Outdoor Advertising (Oda) Display Permit Application - California

    1

  • DOT Form ODA0002 Outdoor Advertising (Oda) Display Permit Application - California, Page 2

    2

  • DOT Form ODA0002 Outdoor Advertising (Oda) Display Permit Application - California, Page 1
  • DOT Form ODA0002 Outdoor Advertising (Oda) Display Permit Application - California, Page 2
Prev 1 2 Next
ADVERTISEMENT

Related Documents