ADEM Form 107 Permit Application for Stationary Internal Combustion Engines - Alabama

Notification Icon This version of the form is not currently in use and is provided for reference only. Download this version of ADEM Form 107 for the current year.

ADEM Form 107 Permit Application for Stationary Internal Combustion Engines - Alabama

What Is ADEM Form 107?

This is a legal form that was released by the Alabama Department of Environmental Management - a government authority operating within Alabama. As of today, no separate filing guidelines for the form are provided by the issuing department.

FAQ

Q: What is ADEM Form 107?
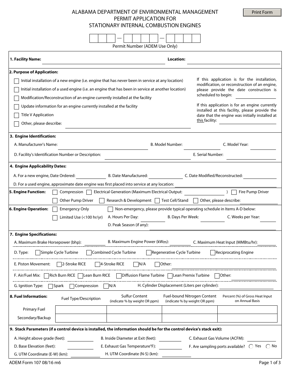
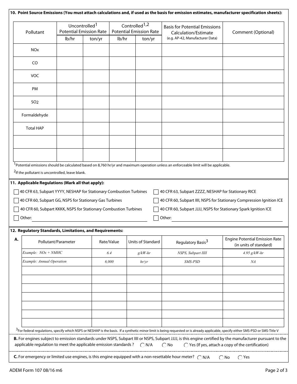
A: ADEM Form 107 is a permit application for stationary internal combustion engines in Alabama.

Q: What is the purpose of ADEM Form 107?
A: The purpose of ADEM Form 107 is to obtain a permit for operating stationary internal combustion engines in Alabama.

Q: Who needs to submit ADEM Form 107?
A: Anyone operating a stationary internal combustion engine in Alabama needs to submit ADEM Form 107.

Q: Is there a fee for submitting ADEM Form 107?
A: Yes, there is a fee associated with submitting ADEM Form 107. The fee amount depends on the size and type of engine.

Q: What are the consequences of not submitting ADEM Form 107?
A: Failing to submit ADEM Form 107 can result in penalties and fines from the Alabama Department of Environmental Management (ADEM).

Q: What information is required on ADEM Form 107?
A: ADEM Form 107 requires information such as the engine model, horsepower, fuel type, operating hours, and emission control devices.

Q: How long does it take to process ADEM Form 107?
A: The processing time for ADEM Form 107 varies, but it typically takes several weeks to receive the permit.

Q: How long is the ADEM Form 107 permit valid?
A: The ADEM Form 107 permit is typically valid for one year.

Q: Can the ADEM Form 107 permit be renewed?
A: Yes, the ADEM Form 107 permit can be renewed by submitting a new application before the current permit expiration date.

ADVERTISEMENT

Form Details:

  • Released on August 1, 2016;
  • The latest edition provided by the Alabama Department of Environmental Management;
  • Easy to use and ready to print;
  • Quick to customize;
  • Compatible with most PDF-viewing applications;
  • Fill out the form in our online filing application.

Download a fillable version of ADEM Form 107 by clicking the link below or browse more documents and templates provided by the Alabama Department of Environmental Management.

Download ADEM Form 107 Permit Application for Stationary Internal Combustion Engines - Alabama

4.7 of 5 (77 votes)
  • ADEM Form 107 Permit Application for Stationary Internal Combustion Engines - Alabama

    1

  • ADEM Form 107 Permit Application for Stationary Internal Combustion Engines - Alabama, Page 2

    2

  • ADEM Form 107 Permit Application for Stationary Internal Combustion Engines - Alabama, Page 3

    3

  • ADEM Form 107 Permit Application for Stationary Internal Combustion Engines - Alabama, Page 4

    4

  • ADEM Form 107 Permit Application for Stationary Internal Combustion Engines - Alabama, Page 1
  • ADEM Form 107 Permit Application for Stationary Internal Combustion Engines - Alabama, Page 2
  • ADEM Form 107 Permit Application for Stationary Internal Combustion Engines - Alabama, Page 3
  • ADEM Form 107 Permit Application for Stationary Internal Combustion Engines - Alabama, Page 4
Prev 1 2 3 4 Next
ADVERTISEMENT

Related Documents