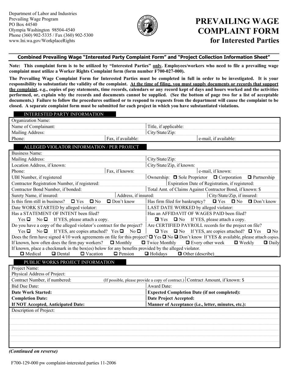
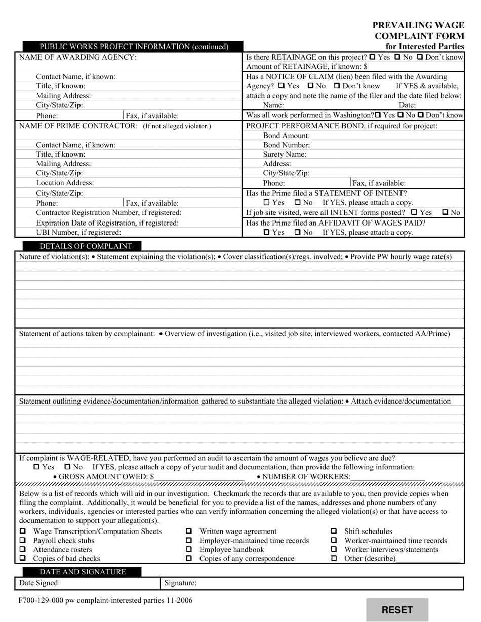
Form F700-129-000 Prevailing Wage Complaint Form for Interested Parties - Washington

Notification Icon This version of the form is not currently in use and is provided for reference only. Download this version of Form F700-129-000 for the current year.

Form F700-129-000 Prevailing Wage Complaint Form for Interested Parties - Washington

What Is Form F700-129-000?

This is a legal form that was released by the Washington State Department of Labor and Industries - a government authority operating within Washington. As of today, no separate filing guidelines for the form are provided by the issuing department.

FAQ

Q: What is Form F700-129-000?
A: Form F700-129-000 is the Prevailing Wage Complaint Form for Interested Parties in Washington.

Q: Who can use Form F700-129-000?
A: Interested parties who want to file a prevailing wage complaint in Washington can use Form F700-129-000.

Q: What is a prevailing wage complaint?
A: A prevailing wage complaint is a formal complaint filed by interested parties alleging violations of prevailing wage laws in the state of Washington.

Q: What information is required on Form F700-129-000?
A: Form F700-129-000 requires information such as the name of the complainant, contact information, details of the complaint, and supporting documentation.

Q: What happens after I submit Form F700-129-000?
A: After you submit Form F700-129-000, the Washington State Department of Labor & Industries will review your complaint and initiate an investigation if necessary.

Q: Is there a deadline for filing Form F700-129-000?
A: Yes, there is a deadline for filing Form F700-129-000. It is important to file the complaint within the specified time frame to ensure timely action.

Q: Can I file a prevailing wage complaint anonymously?
A: No, prevailing wage complaints cannot be filed anonymously. The complainant's information is required for the investigation process.

Q: What are the possible outcomes of a prevailing wage complaint?
A: The possible outcomes of a prevailing wage complaint include resolution through mediation, formal hearing, or legal action.

ADVERTISEMENT

Form Details:

  • Released on November 1, 2006;
  • The latest edition provided by the Washington State Department of Labor and Industries;
  • Easy to use and ready to print;
  • Quick to customize;
  • Compatible with most PDF-viewing applications;
  • Fill out the form in our online filing application.

Download a fillable version of Form F700-129-000 by clicking the link below or browse more documents and templates provided by the Washington State Department of Labor and Industries.

Download Form F700-129-000 Prevailing Wage Complaint Form for Interested Parties - Washington

4.3 of 5 (77 votes)
  • Form F700-129-000 Prevailing Wage Complaint Form for Interested Parties - Washington

    1

  • Form F700-129-000 Prevailing Wage Complaint Form for Interested Parties - Washington, Page 2

    2

  • Form F700-129-000 Prevailing Wage Complaint Form for Interested Parties - Washington, Page 3

    3

  • Form F700-129-000 Prevailing Wage Complaint Form for Interested Parties - Washington, Page 4

    4

  • Form F700-129-000 Prevailing Wage Complaint Form for Interested Parties - Washington, Page 1
  • Form F700-129-000 Prevailing Wage Complaint Form for Interested Parties - Washington, Page 2
  • Form F700-129-000 Prevailing Wage Complaint Form for Interested Parties - Washington, Page 3
  • Form F700-129-000 Prevailing Wage Complaint Form for Interested Parties - Washington, Page 4
Prev 1 2 3 4 Next
ADVERTISEMENT