Form 5600-PM-BMP0385 Renewal Application Coal Mining Activity Permit - Pennsylvania

Notification Icon This version of the form is not currently in use and is provided for reference only. Download this version of Form 5600-PM-BMP0385 for the current year.

Form 5600-PM-BMP0385 Renewal Application Coal Mining Activity Permit - Pennsylvania

What Is Form 5600-PM-BMP0385?

This is a legal form that was released by the Pennsylvania Department of Environmental Protection - a government authority operating within Pennsylvania. As of today, no separate filing guidelines for the form are provided by the issuing department.

FAQ

Q: What is Form 5600-PM-BMP0385?
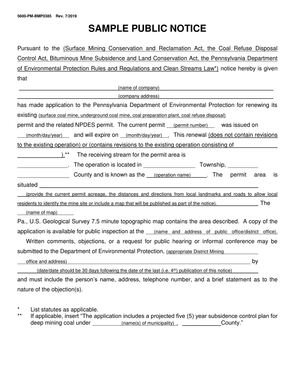
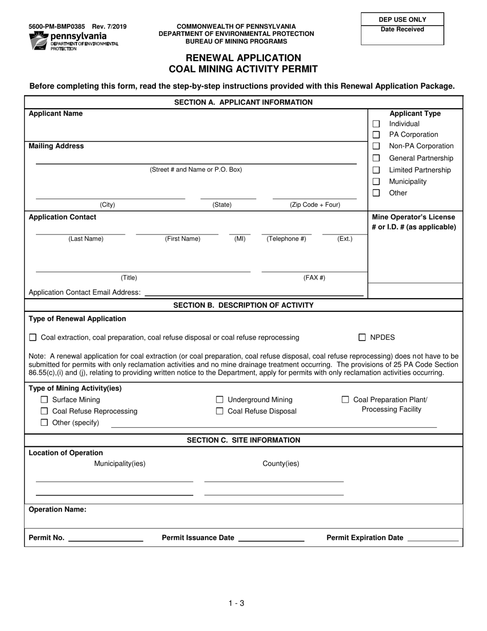
A: Form 5600-PM-BMP0385 is a Renewal Application for a Coal Mining Activity Permit in Pennsylvania.

Q: What is a Coal Mining Activity Permit?
A: A Coal Mining Activity Permit is a permit required for any individual or company engaging in coal mining activities in Pennsylvania.

Q: Who needs to fill out Form 5600-PM-BMP0385?
A: Anyone who holds a current Coal Mining Activity Permit in Pennsylvania and wishes to renew it needs to fill out Form 5600-PM-BMP0385.

Q: What information is required in the renewal application?
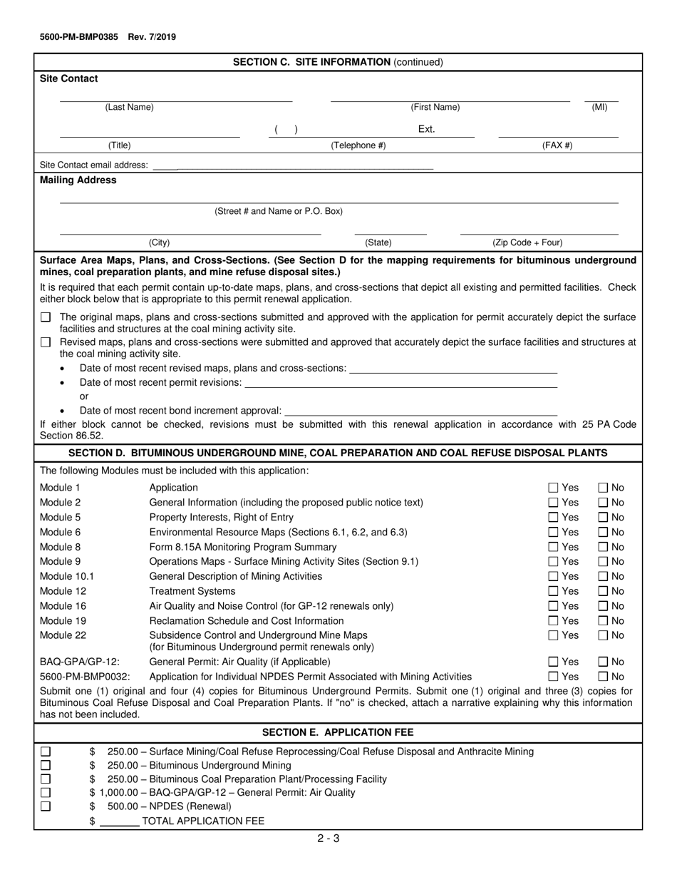
A: The renewal application requires information such as the current permit number, contact information, and details about the mining activities.

Q: What is the purpose of renewing a Coal Mining Activity Permit?
A: Renewing a Coal Mining Activity Permit ensures that the permit holder continues to comply with all applicable regulations and can legally continue their mining operations.

Q: Are there any fees associated with the renewal application?
A: Yes, there are fees associated with the renewal application. The specific fees depend on the size and scope of the mining operation.

Q: When should I submit Form 5600-PM-BMP0385 for renewal?
A: Form 5600-PM-BMP0385 should be submitted for renewal at least 90 days before the expiration date of the current permit.

Q: What happens if I fail to renew my Coal Mining Activity Permit?
A: If a Coal Mining Activity Permit is not renewed, the permit holder may be subject to penalties and may be required to cease mining operations.

Q: Can I make changes to my mining activities during the renewal process?
A: Yes, changes to mining activities can be requested during the renewal process, but they will need to be reviewed and approved by the DEP.

ADVERTISEMENT

Form Details:

  • Released on July 1, 2019;
  • The latest edition provided by the Pennsylvania Department of Environmental Protection;
  • Easy to use and ready to print;
  • Quick to customize;
  • Compatible with most PDF-viewing applications;
  • Fill out the form in our online filing application.

Download a printable version of Form 5600-PM-BMP0385 by clicking the link below or browse more documents and templates provided by the Pennsylvania Department of Environmental Protection.

Download Form 5600-PM-BMP0385 Renewal Application Coal Mining Activity Permit - Pennsylvania

4.4 of 5 (78 votes)
  • Form 5600-PM-BMP0385 Renewal Application Coal Mining Activity Permit - Pennsylvania

    1

  • Form 5600-PM-BMP0385 Renewal Application Coal Mining Activity Permit - Pennsylvania, Page 2

    2

  • Form 5600-PM-BMP0385 Renewal Application Coal Mining Activity Permit - Pennsylvania, Page 3

    3

  • Form 5600-PM-BMP0385 Renewal Application Coal Mining Activity Permit - Pennsylvania, Page 4

    4

  • Form 5600-PM-BMP0385 Renewal Application Coal Mining Activity Permit - Pennsylvania, Page 5

    5

  • Form 5600-PM-BMP0385 Renewal Application Coal Mining Activity Permit - Pennsylvania, Page 6

    6

  • Form 5600-PM-BMP0385 Renewal Application Coal Mining Activity Permit - Pennsylvania, Page 7

    7

  • Form 5600-PM-BMP0385 Renewal Application Coal Mining Activity Permit - Pennsylvania, Page 8

    8

  • Form 5600-PM-BMP0385 Renewal Application Coal Mining Activity Permit - Pennsylvania, Page 1
  • Form 5600-PM-BMP0385 Renewal Application Coal Mining Activity Permit - Pennsylvania, Page 2
  • Form 5600-PM-BMP0385 Renewal Application Coal Mining Activity Permit - Pennsylvania, Page 3
  • Form 5600-PM-BMP0385 Renewal Application Coal Mining Activity Permit - Pennsylvania, Page 4
  • Form 5600-PM-BMP0385 Renewal Application Coal Mining Activity Permit - Pennsylvania, Page 5
  • Form 5600-PM-BMP0385 Renewal Application Coal Mining Activity Permit - Pennsylvania, Page 6
  • Form 5600-PM-BMP0385 Renewal Application Coal Mining Activity Permit - Pennsylvania, Page 7
  • Form 5600-PM-BMP0385 Renewal Application Coal Mining Activity Permit - Pennsylvania, Page 8
Prev 1 2 3 4 5 ... 8 Next
ADVERTISEMENT

Related Documents