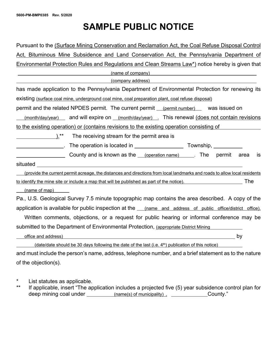
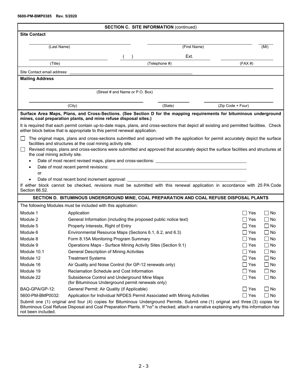
Form 5600-PM-BMP0385 Coal Mining Activity Permit Renewal Application - Pennsylvania

Form 5600-PM-BMP0385 Coal Mining Activity Permit Renewal Application - Pennsylvania

What Is Form 5600-PM-BMP0385?

This is a legal form that was released by the Pennsylvania Department of Environmental Protection - a government authority operating within Pennsylvania. As of today, no separate filing guidelines for the form are provided by the issuing department.

Form Details:

  • Released on May 1, 2020;
  • The latest edition provided by the Pennsylvania Department of Environmental Protection;
  • Easy to use and ready to print;
  • Quick to customize;
  • Compatible with most PDF-viewing applications;
  • Fill out the form in our online filing application.

Download a printable version of Form 5600-PM-BMP0385 by clicking the link below or browse more documents and templates provided by the Pennsylvania Department of Environmental Protection.

ADVERTISEMENT

Other Revision

Download Form 5600-PM-BMP0385 Coal Mining Activity Permit Renewal Application - Pennsylvania

4.4 of 5 (94 votes)
  • Form 5600-PM-BMP0385 Coal Mining Activity Permit Renewal Application - Pennsylvania

    1

  • Form 5600-PM-BMP0385 Coal Mining Activity Permit Renewal Application - Pennsylvania, Page 2

    2

  • Form 5600-PM-BMP0385 Coal Mining Activity Permit Renewal Application - Pennsylvania, Page 3

    3

  • Form 5600-PM-BMP0385 Coal Mining Activity Permit Renewal Application - Pennsylvania, Page 4

    4

  • Form 5600-PM-BMP0385 Coal Mining Activity Permit Renewal Application - Pennsylvania, Page 5

    5

  • Form 5600-PM-BMP0385 Coal Mining Activity Permit Renewal Application - Pennsylvania, Page 6

    6

  • Form 5600-PM-BMP0385 Coal Mining Activity Permit Renewal Application - Pennsylvania, Page 7

    7

  • Form 5600-PM-BMP0385 Coal Mining Activity Permit Renewal Application - Pennsylvania, Page 8

    8

  • Form 5600-PM-BMP0385 Coal Mining Activity Permit Renewal Application - Pennsylvania, Page 9

    9

  • Form 5600-PM-BMP0385 Coal Mining Activity Permit Renewal Application - Pennsylvania, Page 1
  • Form 5600-PM-BMP0385 Coal Mining Activity Permit Renewal Application - Pennsylvania, Page 2
  • Form 5600-PM-BMP0385 Coal Mining Activity Permit Renewal Application - Pennsylvania, Page 3
  • Form 5600-PM-BMP0385 Coal Mining Activity Permit Renewal Application - Pennsylvania, Page 4
  • Form 5600-PM-BMP0385 Coal Mining Activity Permit Renewal Application - Pennsylvania, Page 5
  • Form 5600-PM-BMP0385 Coal Mining Activity Permit Renewal Application - Pennsylvania, Page 6
  • Form 5600-PM-BMP0385 Coal Mining Activity Permit Renewal Application - Pennsylvania, Page 7
  • Form 5600-PM-BMP0385 Coal Mining Activity Permit Renewal Application - Pennsylvania, Page 8
  • Form 5600-PM-BMP0385 Coal Mining Activity Permit Renewal Application - Pennsylvania, Page 9
Prev 1 2 3 4 5 ... 9 Next
ADVERTISEMENT

Related Documents