Form MO780-1007 Permit Application and Renewal for Industrial Mineral Mines - Missouri

Notification Icon This version of the form is not currently in use and is provided for reference only. Download this version of Form MO780-1007 for the current year.

Form MO780-1007 Permit Application and Renewal for Industrial Mineral Mines - Missouri

What Is Form MO780-1007?

This is a legal form that was released by the Missouri Department of Natural Resources - a government authority operating within Missouri. As of today, no separate filing guidelines for the form are provided by the issuing department.

FAQ

Q: What is the MO780-1007 Permit Application?
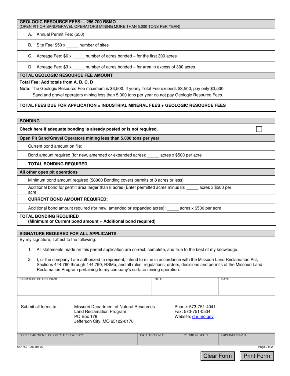
A: The MO780-1007 Permit Application is a form used for applying or renewing a permit for industrial mineral mines in Missouri.

Q: Who needs to fill out the MO780-1007 Permit Application?
A: Anyone who is operating or planning to operate an industrial mineral mine in Missouri needs to fill out the MO780-1007 Permit Application.

Q: What is an industrial mineral mine?
A: An industrial mineral mine is a facility that extracts minerals such as limestone, sand, gravel, clay, or crushed stone for use in various industries.

Q: How often do I need to renew my permit for an industrial mineral mine in Missouri?
A: Permits for industrial mineral mines in Missouri need to be renewed every five years.

Q: Are there any fees associated with the MO780-1007 Permit Application and renewal?
A: Yes, there are fees associated with the MO780-1007 Permit Application and renewal. The exact fees depend on various factors such as the size and type of the mining operation.

Q: What documents do I need to submit along with the MO780-1007 Permit Application?
A: Along with the MO780-1007 Permit Application, you may need to submit documents such as a mining plan, reclamation plan, financial assurance, and environmental impact assessment, depending on the requirements of the Missouri Department of Natural Resources.

Q: Who should I contact for more information about the MO780-1007 Permit Application and renewal process?
A: For more information about the MO780-1007 Permit Application and renewal process, you should contact the Missouri Department of Natural Resources or the local office of the Land Reclamation Program.

ADVERTISEMENT

Form Details:

  • Released on April 1, 2020;
  • The latest edition provided by the Missouri Department of Natural Resources;
  • Easy to use and ready to print;
  • Quick to customize;
  • Compatible with most PDF-viewing applications;
  • Fill out the form in our online filing application.

Download a fillable version of Form MO780-1007 by clicking the link below or browse more documents and templates provided by the Missouri Department of Natural Resources.

Download Form MO780-1007 Permit Application and Renewal for Industrial Mineral Mines - Missouri

4.7 of 5 (19 votes)
  • Form MO780-1007 Permit Application and Renewal for Industrial Mineral Mines - Missouri

    1

  • Form MO780-1007 Permit Application and Renewal for Industrial Mineral Mines - Missouri, Page 2

    2

  • Form MO780-1007 Permit Application and Renewal for Industrial Mineral Mines - Missouri, Page 1
  • Form MO780-1007 Permit Application and Renewal for Industrial Mineral Mines - Missouri, Page 2
Prev 1 2 Next
ADVERTISEMENT

Related Documents