Form 3885A Worker's Exposure Incident Reporting Form for Construction (Ceir) - Ontario, Canada

Form 3885A Worker's Exposure Incident Reporting Form for Construction (Ceir) - Ontario, Canada

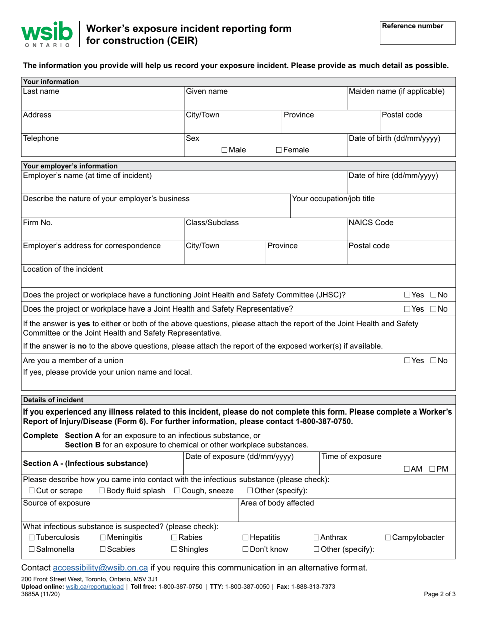
Form 3885A Worker's Exposure Incident Reporting Form for Construction (CEIR) in Ontario, Canada is used to report any incidents where a worker has been exposed to a hazardous substance or condition on a construction site. It is a way to document and track workplace incidents to ensure worker safety and compliance with occupational health and safety regulations.

The form 3885A Worker's Exposure Incident Reporting Form for Construction (CEIR) in Ontario, Canada is usually filled out by the worker who has experienced an exposure incident on a construction site.

FAQ

Q: What is Form 3885A?
A: Form 3885A is the Worker's Exposure Incident Reporting Form for Construction (CEIR) in Ontario, Canada.

Q: Who is required to fill out Form 3885A?
A: Workers who have experienced an exposure incident on a construction site in Ontario are required to fill out Form 3885A.

Q: What is an exposure incident?
A: An exposure incident refers to any situation where a worker has come into contact with a hazardous substance or been exposed to a hazardous condition.

Q: Do workers need to report all exposure incidents?
A: Yes, workers are required to report all exposure incidents, regardless of severity.

Q: What should be included in the Form 3885A?
A: The form should include details about the worker, the incident, the hazardous substance or condition, and any actions taken or required.

Q: Is there a deadline for submitting Form 3885A?
A: Yes, the form should be submitted as soon as possible, ideally within 48 hours of the exposure incident.

ADVERTISEMENT

Download Form 3885A Worker's Exposure Incident Reporting Form for Construction (Ceir) - Ontario, Canada

4.7 of 5 (20 votes)
  • Form 3885A Worker's Exposure Incident Reporting Form for Construction (Ceir) - Ontario, Canada

    1

  • Form 3885A Worker's Exposure Incident Reporting Form for Construction (Ceir) - Ontario, Canada, Page 2

    2

  • Form 3885A Worker's Exposure Incident Reporting Form for Construction (Ceir) - Ontario, Canada, Page 3

    3

  • Form 3885A Workers Exposure Incident Reporting Form for Construction (Ceir) - Ontario, Canada, Page 1
  • Form 3885A Workers Exposure Incident Reporting Form for Construction (Ceir) - Ontario, Canada, Page 2
  • Form 3885A Workers Exposure Incident Reporting Form for Construction (Ceir) - Ontario, Canada, Page 3
Prev 1 2 3 Next
ADVERTISEMENT

Related Documents