Form 3886A Employer's Exposure Incident Reporting Form for Construction (Ceir) - Ontario, Canada

Form 3886A Employer's Exposure Incident Reporting Form for Construction (Ceir) - Ontario, Canada

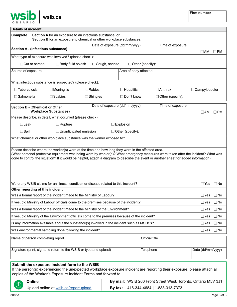
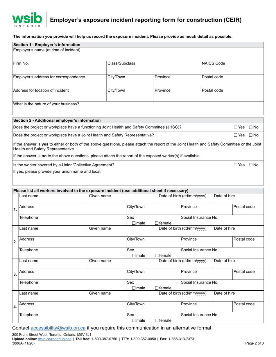
Form 3886A, Employer's Exposure Incident Reporting Form (CEIR) in Ontario, Canada, is used to report exposure incidents in the construction industry. It helps employers document and track incidents involving hazardous substances or agents that can cause harm to workers.

The Form 3886A Employer's Exposure Incident Reporting Form for Construction (CEIR) in Ontario, Canada is filed by the employer.

FAQ

Q: What is Form 3886A?
A: Form 3886A is the Employer's Exposure Incident Reporting Form for Construction (CEIR) in Ontario, Canada.

Q: Who is required to fill out Form 3886A?
A: Employers in the construction industry in Ontario, Canada are required to fill out Form 3886A in the event of an exposure incident.

Q: What is an exposure incident?
A: An exposure incident refers to any incident where a worker is exposed to a hazardous substance or an agent that exceeds the threshold limit in Ontario's Occupational Health and Safety Act.

Q: What information is required on Form 3886A?
A: Form 3886A requires information about the employer, the worker(s) involved, details of the exposure incident, and possible causes or corrective actions.

ADVERTISEMENT

Download Form 3886A Employer's Exposure Incident Reporting Form for Construction (Ceir) - Ontario, Canada

4.7 of 5 (16 votes)
  • Form 3886A Employer's Exposure Incident Reporting Form for Construction (Ceir) - Ontario, Canada

    1

  • Form 3886A Employer's Exposure Incident Reporting Form for Construction (Ceir) - Ontario, Canada, Page 2

    2

  • Form 3886A Employer's Exposure Incident Reporting Form for Construction (Ceir) - Ontario, Canada, Page 3

    3

  • Form 3886A Employers Exposure Incident Reporting Form for Construction (Ceir) - Ontario, Canada, Page 1
  • Form 3886A Employers Exposure Incident Reporting Form for Construction (Ceir) - Ontario, Canada, Page 2
  • Form 3886A Employers Exposure Incident Reporting Form for Construction (Ceir) - Ontario, Canada, Page 3
Prev 1 2 3 Next
ADVERTISEMENT

Related Documents