Form F625-001-000 Application for Construction Contractor Registration - Washington

Notification Icon This version of the form is not currently in use and is provided for reference only. Download this version of Form F625-001-000 for the current year.

Form F625-001-000 Application for Construction Contractor Registration - Washington

What Is Form F625-001-000?

This is a legal form that was released by the Washington State Department of Labor and Industries - a government authority operating within Washington. As of today, no separate filing guidelines for the form are provided by the issuing department.

FAQ

Q: What is Form F625-001-000?
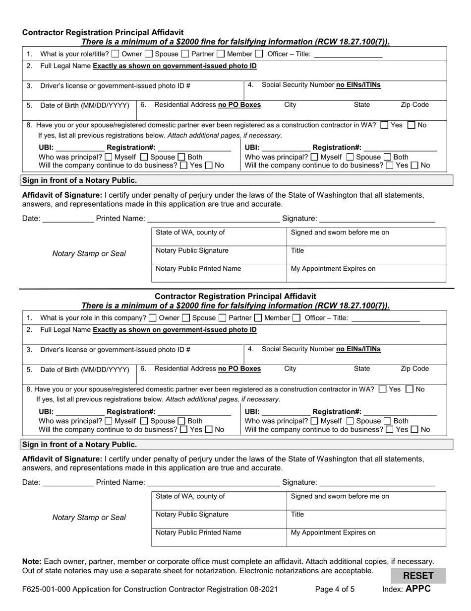
A: Form F625-001-000 is the application for construction contractor registration in Washington.

Q: Who needs to file Form F625-001-000?
A: Construction contractors in Washington need to file this form to register.

Q: How do I fill out Form F625-001-000?
A: The form requires information about your business, such as contact details, license type, bonding, and insurance.

Q: Are there any fees for filing Form F625-001-000?
A: Yes, there is a registration fee that needs to be paid along with the submission of the form.

Q: What happens after I submit Form F625-001-000?
A: Once the form is submitted and the registration fee is paid, your application will be processed and you will receive a registration certificate if approved.

Q: How long does it take to process Form F625-001-000?
A: The processing time for the form may vary, but it typically takes a few weeks for the application to be processed.

Q: Can I renew my registration using Form F625-001-000?
A: No, this form is only for initial registration. To renew your construction contractor registration, you will need to use a different form.

ADVERTISEMENT

Form Details:

  • Released on August 1, 2021;
  • The latest edition provided by the Washington State Department of Labor and Industries;
  • Easy to use and ready to print;
  • Quick to customize;
  • Compatible with most PDF-viewing applications;
  • Fill out the form in our online filing application.

Download a fillable version of Form F625-001-000 by clicking the link below or browse more documents and templates provided by the Washington State Department of Labor and Industries.

Download Form F625-001-000 Application for Construction Contractor Registration - Washington

4.5 of 5 (17 votes)
  • Form F625-001-000 Application for Construction Contractor Registration - Washington

    1

  • Form F625-001-000 Application for Construction Contractor Registration - Washington, Page 2

    2

  • Form F625-001-000 Application for Construction Contractor Registration - Washington, Page 3

    3

  • Form F625-001-000 Application for Construction Contractor Registration - Washington, Page 4

    4

  • Form F625-001-000 Application for Construction Contractor Registration - Washington, Page 5

    5

  • Form F625-001-000 Application for Construction Contractor Registration - Washington, Page 1
  • Form F625-001-000 Application for Construction Contractor Registration - Washington, Page 2
  • Form F625-001-000 Application for Construction Contractor Registration - Washington, Page 3
  • Form F625-001-000 Application for Construction Contractor Registration - Washington, Page 4
  • Form F625-001-000 Application for Construction Contractor Registration - Washington, Page 5
Prev 1 2 3 4 5 Next
ADVERTISEMENT

Related Documents