Forme E618 Espace Clos - Liste De Verification De Securite Et Permis D'entree - Canada (French)

Forme E618 Espace Clos - Liste De Verification De Securite Et Permis D'entree - Canada (French)

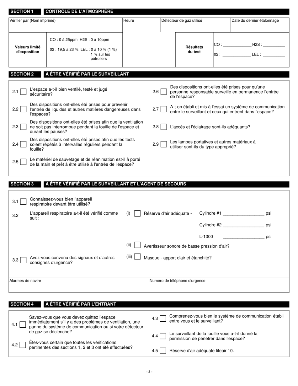
Forme E618 Espace Clos - Liste De Verification De Securite Et Permis D'entree is a safety checklist and entry permit form used in Canada. It is used to ensure safety measures are followed and permits individuals to enter confined spaces after completing the necessary checks.

The Form E618 Espace Clos - Liste De Verification De Securite Et Permis D'entree in Canada is typically filed by the employer or the person responsible for the safety and security of the confined space.

FAQ

Q: Qu'est-ce que le formulaire E618 Espace Clos - Liste de vérification de sécurité et permis d'entrée au Canada?
A: Le formulaire E618 Espace Clos est un document utilisé au Canada pour évaluer la sécurité d'un espace clos et délivrer un permis d'entrée.

Q: Quel est le but du formulaire E618 Espace Clos - Liste de vérification de sécurité et permis d'entrée au Canada?
A: Le formulaire E618 vise à garantir la sécurité des travailleurs et des personnes travaillant dans un espace clos au Canada.

Q: Quels sont les types d'espaces clos concernés par le formulaire E618 Espace Clos - Liste de vérification de sécurité et permis d'entrée au Canada?
A: Le formulaire E618 s'applique aux espaces clos tels que les réservoirs, les puits, les tunnels, les silos, les conduites, etc.

Q: Qui doit remplir le formulaire E618 Espace Clos - Liste de vérification de sécurité et permis d'entrée au Canada?
A: Le formulaire E618 doit être rempli par l'employeur ou le responsable du lieu de travail où l'espace clos est situé.

Q: Quelles informations sont requises dans le formulaire E618 Espace Clos - Liste de vérification de sécurité et permis d'entrée au Canada?
A: Le formulaire E618 demande des informations sur l'emplacement de l'espace clos, les risques potentiels, les mesures de sécurité prises, et les personnes autorisées à y entrer.

Q: Combien de temps est valide le permis d'entrée délivré par le formulaire E618 Espace Clos - Liste de vérification de sécurité et permis d'entrée au Canada?
A: Le permis d'entrée est valide pour une période déterminée, habituellement jusqu'à la fin des travaux ou une période spécifique définie par l'employeur.

Q: Pourquoi est-il important de remplir correctement le formulaire E618 Espace Clos - Liste de vérification de sécurité et permis d'entrée au Canada?
A: Remplir correctement le formulaire E618 assure la sécurité des travailleurs et aide à prévenir les accidents graves ou les situations dangereuses dans les espaces clos.

Q: Où peut-on obtenir le formulaire E618 Espace Clos - Liste de vérification de sécurité et permis d'entrée au Canada?
A: Le formulaire E618 peut être obtenu auprès de l'organisme de réglementation en matière de sécurité au travail de votre province ou territoire.

ADVERTISEMENT

Download Forme E618 Espace Clos - Liste De Verification De Securite Et Permis D'entree - Canada (French)

4.3 of 5 (8 votes)
  • Forme E618 Espace Clos - Liste De Verification De Securite Et Permis D'entree - Canada (French)

    1

  • Forme E618 Espace Clos - Liste De Verification De Securite Et Permis D'entree - Canada (French), Page 2

    2

  • Forme E618 Espace Clos - Liste De Verification De Securite Et Permis D'entree - Canada (French), Page 3

    3

  • Forme E618 Espace Clos - Liste De Verification De Securite Et Permis D'entree - Canada (French), Page 4

    4

  • Forme E618 Espace Clos - Liste De Verification De Securite Et Permis Dentree - Canada (French), Page 1
  • Forme E618 Espace Clos - Liste De Verification De Securite Et Permis Dentree - Canada (French), Page 2
  • Forme E618 Espace Clos - Liste De Verification De Securite Et Permis Dentree - Canada (French), Page 3
  • Forme E618 Espace Clos - Liste De Verification De Securite Et Permis Dentree - Canada (French), Page 4
Prev 1 2 3 4 Next
ADVERTISEMENT

Related Documents