Form DOT ODA-0002 Outdoor Advertising (Oda) Display Permit Application - California

Notification Icon This version of the form is not currently in use and is provided for reference only. Download this version of Form DOT ODA-0002 for the current year.

Form DOT ODA-0002 Outdoor Advertising (Oda) Display Permit Application - California

What Is Form DOT ODA-0002?

This is a legal form that was released by the California Department of Transportation - a government authority operating within California. As of today, no separate filing guidelines for the form are provided by the issuing department.

FAQ

Q: What is Form DOT ODA-0002?
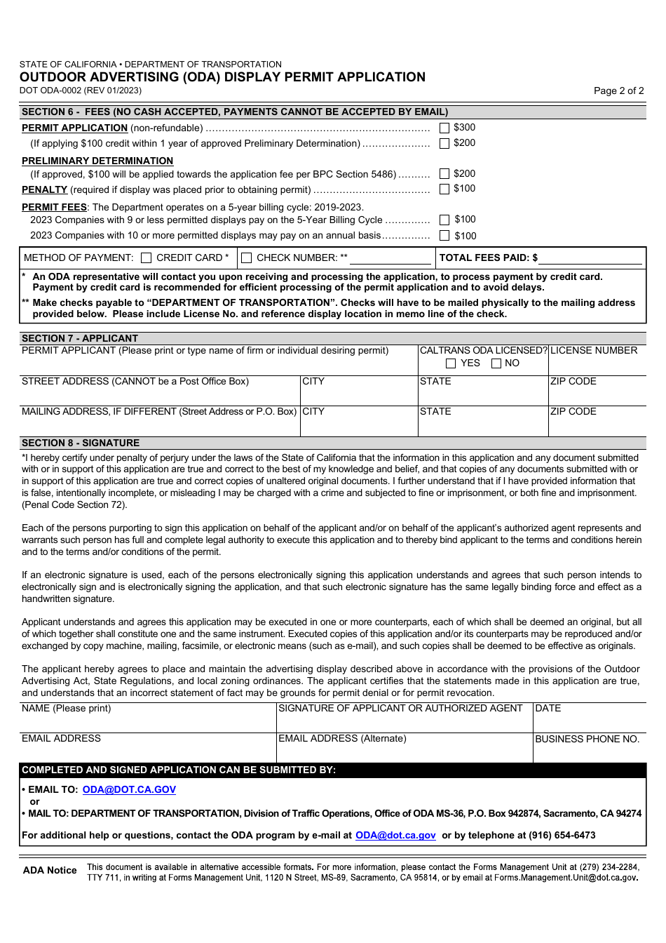
A: Form DOT ODA-0002 is an Outdoor Advertising (Oda) Display Permit Application.

Q: What is the purpose of Form DOT ODA-0002?
A: The purpose of Form DOT ODA-0002 is to apply for a permit for outdoor advertising display in California.

Q: What is an Outdoor Advertising (Oda) Display Permit?
A: An Outdoor Advertising (Oda) Display Permit is a permit that allows the installation of outdoor advertising displays in California.

Q: Why is a permit required for outdoor advertising displays?
A: A permit is required for outdoor advertising displays to regulate the placement and size of these displays to ensure safety and compliance with local laws and regulations.

Q: What information is required on Form DOT ODA-0002?
A: Form DOT ODA-0002 requires information such as the applicant's contact details, property owner information, display information, and a site plan.

Q: How much does it cost to apply for an Outdoor Advertising (Oda) Display Permit?
A: The cost of applying for an Outdoor Advertising (Oda) Display Permit varies and is determined by the California Department of Transportation.

Q: How long does it take to process the application for an Outdoor Advertising (Oda) Display Permit?
A: The processing time for an Outdoor Advertising (Oda) Display Permit application varies and depends on the workload of the California Department of Transportation.

Q: Can I appeal if my application for an Outdoor Advertising (Oda) Display Permit is denied?
A: Yes, you can appeal the denial of your application for an Outdoor Advertising (Oda) Display Permit by following the appropriate appeal process outlined by the California Department of Transportation.

ADVERTISEMENT

Form Details:

  • Released on January 1, 2023;
  • The latest edition provided by the California Department of Transportation;
  • Easy to use and ready to print;
  • Quick to customize;
  • Compatible with most PDF-viewing applications;
  • Fill out the form in our online filing application.

Download a fillable version of Form DOT ODA-0002 by clicking the link below or browse more documents and templates provided by the California Department of Transportation.

Download Form DOT ODA-0002 Outdoor Advertising (Oda) Display Permit Application - California

4.4 of 5 (46 votes)
  • Form DOT ODA-0002 Outdoor Advertising (Oda) Display Permit Application - California

    1

  • Form DOT ODA-0002 Outdoor Advertising (Oda) Display Permit Application - California, Page 2

    2

  • Form DOT ODA-0002 Outdoor Advertising (Oda) Display Permit Application - California, Page 1
  • Form DOT ODA-0002 Outdoor Advertising (Oda) Display Permit Application - California, Page 2
Prev 1 2 Next
ADVERTISEMENT

Related Documents