DD Form 2993 Environmental Baseline Survey (Ebs) Checklist

Notification Icon This version of the form is not currently in use and is provided for reference only. Download this version of DD Form 2993 for the current year.

DD Form 2993 Environmental Baseline Survey (Ebs) Checklist

What Is DD Form 2993?

This is a form that was released by the U.S. Department of Defense (DoD) on August 1, 2015. The form, often mistakenly referred to as the DA Form 2993 , is a military form used by and within the U.S. Army. As of today, no separate instructions for the form are provided by the DoD.

FAQ

Q: What is DD Form 2993?
A: DD Form 2993 is the Environmental Baseline Survey (EBS) Checklist.

Q: What is an Environmental Baseline Survey?
A: An Environmental Baseline Survey is an assessment that determines the environmental conditions of a site before activities or construction occur.

Q: Why is an Environmental Baseline Survey important?
A: An Environmental Baseline Survey is important to identify and document the existing environmental conditions of a site, which helps in managing environmental impacts.

Q: What information does DD Form 2993 collect?
A: DD Form 2993 collects information about the physical and biological characteristics, as well as the past and present activities of the site.

Q: Who needs to complete DD Form 2993?
A: DD Form 2993 needs to be completed by individuals or organizations conducting activities that may have environmental impacts.

ADVERTISEMENT

Form Details:

  • A 20-page document available for download in PDF;
  • The latest version available from the Executive Services Directorate;
  • Editable, printable, and free to use;
  • Fill out the form in our online filing application.

Download an up-to-date fillable DD Form 2993 down below in PDF format or browse hundreds of other DoD Forms compiled in our online library.

Download DD Form 2993 Environmental Baseline Survey (Ebs) Checklist

4.5 of 5 (124 votes)
  • DD Form 2993 Environmental Baseline Survey (Ebs) Checklist

    1

  • DD Form 2993 Environmental Baseline Survey (Ebs) Checklist, Page 2

    2

  • DD Form 2993 Environmental Baseline Survey (Ebs) Checklist, Page 3

    3

  • DD Form 2993 Environmental Baseline Survey (Ebs) Checklist, Page 4

    4

  • DD Form 2993 Environmental Baseline Survey (Ebs) Checklist, Page 5

    5

  • DD Form 2993 Environmental Baseline Survey (Ebs) Checklist, Page 6

    6

  • DD Form 2993 Environmental Baseline Survey (Ebs) Checklist, Page 7

    7

  • DD Form 2993 Environmental Baseline Survey (Ebs) Checklist, Page 8

    8

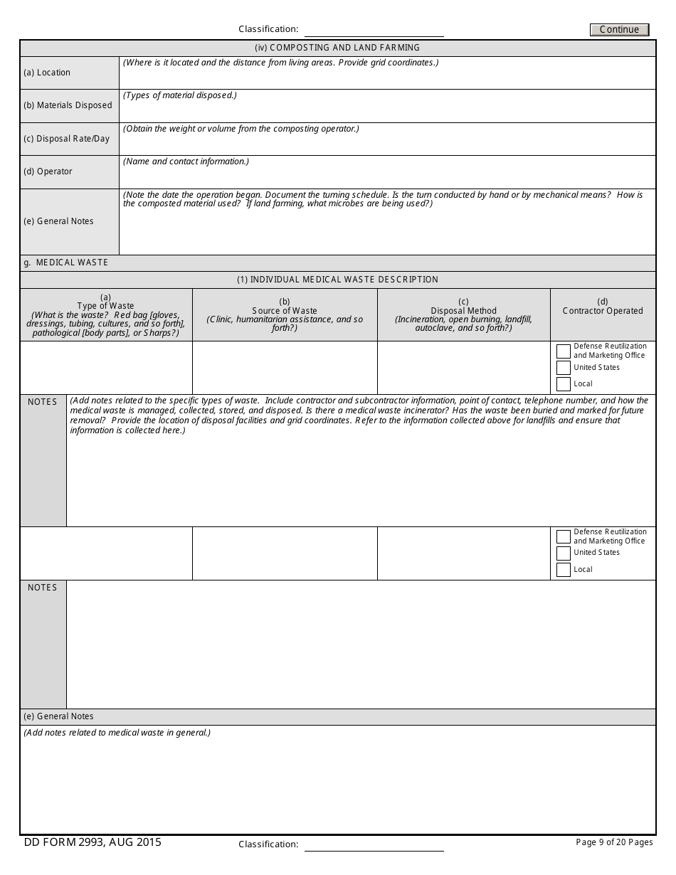
  • DD Form 2993 Environmental Baseline Survey (Ebs) Checklist, Page 9

    9

  • DD Form 2993 Environmental Baseline Survey (Ebs) Checklist, Page 10

    10

  • DD Form 2993 Environmental Baseline Survey (Ebs) Checklist, Page 11

    11

  • DD Form 2993 Environmental Baseline Survey (Ebs) Checklist, Page 12

    12

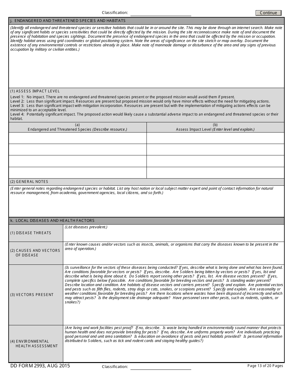
  • DD Form 2993 Environmental Baseline Survey (Ebs) Checklist, Page 13

    13

  • DD Form 2993 Environmental Baseline Survey (Ebs) Checklist, Page 14

    14

  • DD Form 2993 Environmental Baseline Survey (Ebs) Checklist, Page 15

    15

  • DD Form 2993 Environmental Baseline Survey (Ebs) Checklist, Page 16

    16

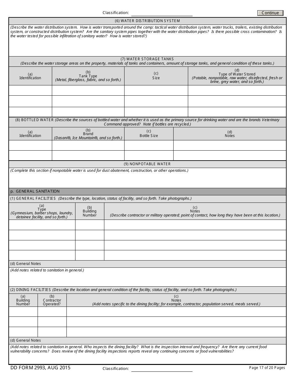
  • DD Form 2993 Environmental Baseline Survey (Ebs) Checklist, Page 17

    17

  • DD Form 2993 Environmental Baseline Survey (Ebs) Checklist, Page 18

    18

  • DD Form 2993 Environmental Baseline Survey (Ebs) Checklist, Page 19

    19

  • DD Form 2993 Environmental Baseline Survey (Ebs) Checklist, Page 20

    20

  • DD Form 2993 Environmental Baseline Survey (Ebs) Checklist, Page 1
  • DD Form 2993 Environmental Baseline Survey (Ebs) Checklist, Page 2
  • DD Form 2993 Environmental Baseline Survey (Ebs) Checklist, Page 3
  • DD Form 2993 Environmental Baseline Survey (Ebs) Checklist, Page 4
  • DD Form 2993 Environmental Baseline Survey (Ebs) Checklist, Page 5
  • DD Form 2993 Environmental Baseline Survey (Ebs) Checklist, Page 6
  • DD Form 2993 Environmental Baseline Survey (Ebs) Checklist, Page 7
  • DD Form 2993 Environmental Baseline Survey (Ebs) Checklist, Page 8
  • DD Form 2993 Environmental Baseline Survey (Ebs) Checklist, Page 9
  • DD Form 2993 Environmental Baseline Survey (Ebs) Checklist, Page 10
  • DD Form 2993 Environmental Baseline Survey (Ebs) Checklist, Page 11
  • DD Form 2993 Environmental Baseline Survey (Ebs) Checklist, Page 12
  • DD Form 2993 Environmental Baseline Survey (Ebs) Checklist, Page 13
  • DD Form 2993 Environmental Baseline Survey (Ebs) Checklist, Page 14
  • DD Form 2993 Environmental Baseline Survey (Ebs) Checklist, Page 15
  • DD Form 2993 Environmental Baseline Survey (Ebs) Checklist, Page 16
  • DD Form 2993 Environmental Baseline Survey (Ebs) Checklist, Page 17
  • DD Form 2993 Environmental Baseline Survey (Ebs) Checklist, Page 18
  • DD Form 2993 Environmental Baseline Survey (Ebs) Checklist, Page 19
  • DD Form 2993 Environmental Baseline Survey (Ebs) Checklist, Page 20
Prev 1 2 3 4 5 ... 20 Next
ADVERTISEMENT