Form 10121 Permits by Rule (Pbr) Checklist for Facilities (Emission Limitations) - Texas

Form 10121 Permits by Rule (Pbr) Checklist for Facilities (Emission Limitations) - Texas

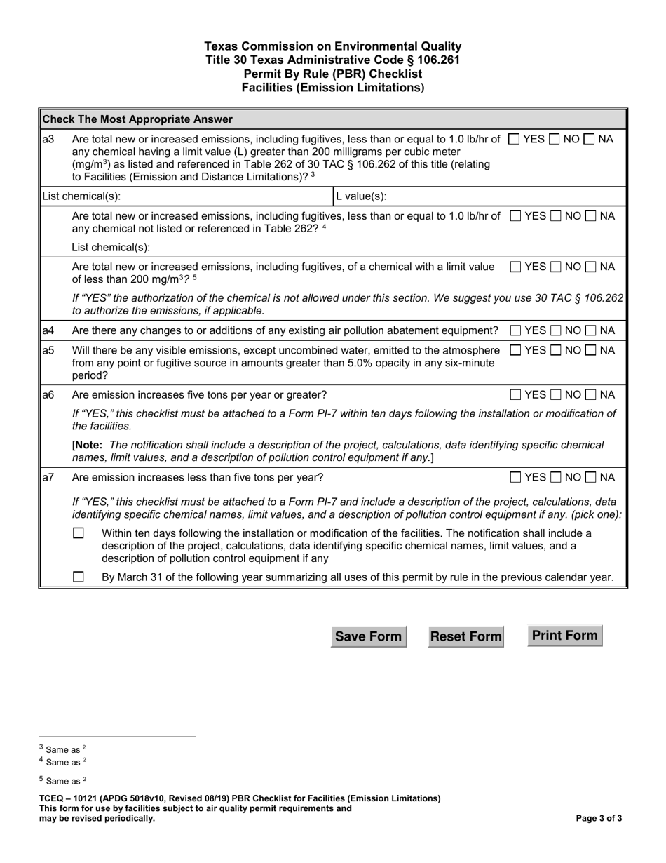
What Is Form 10121?

This is a legal form that was released by the Texas Commission on Environmental Quality - a government authority operating within Texas. As of today, no separate filing guidelines for the form are provided by the issuing department.

FAQ

Q: What is Form 10121?
A: Form 10121 is a checklist for facilities in Texas to determine if they meet the requirements for Permits by Rule (PBR) regarding emission limitations.

Q: What is Permits by Rule (PBR)?
A: Permits by Rule (PBR) is a streamlined permitting process in Texas that allows certain facilities to operate without obtaining a traditional air quality permit, as long as they meet specific criteria.

Q: What is the purpose of Form 10121?
A: The purpose of Form 10121 is to help facilities in Texas assess whether they qualify for Permits by Rule (PBR) by determining if they meet the emission limitations.

Q: What does the checklist in Form 10121 include?
A: The checklist in Form 10121 includes various questions and criteria related to emission limitations, such as the type of equipment being used and the specific emissions produced.

Q: Who is required to use Form 10121?
A: Facilities in Texas that are seeking to qualify for Permits by Rule (PBR) and meet specific criteria must use Form 10121 to assess their compliance with emission limitations.

Q: What happens after completing Form 10121?
A: After completing Form 10121, the facility can determine if it meets the emission limitations for Permits by Rule (PBR) and proceed with the streamlined permitting process if eligible.

Q: What are the benefits of Permits by Rule (PBR)?
A: Permits by Rule (PBR) provide a simplified permitting process for eligible facilities in Texas, reducing administrative burdens and allowing for quicker approval of operation.

Q: Can facilities with Permits by Rule (PBR) still be inspected?
A: Yes, facilities with Permits by Rule (PBR) are still subject to inspections and must comply with all applicable regulations and requirements.

Q: What should facilities do if they do not meet the emission limitations?
A: If a facility does not meet the emission limitations for Permits by Rule (PBR), they may need to pursue a traditional air quality permit or explore other compliance options with the Texas Commission on Environmental Quality (TCEQ).

ADVERTISEMENT

Form Details:

  • Released on August 1, 2019;
  • The latest edition provided by the Texas Commission on Environmental Quality;
  • Easy to use and ready to print;
  • Quick to customize;
  • Compatible with most PDF-viewing applications;
  • Fill out the form in our online filing application.

Download a fillable version of Form 10121 by clicking the link below or browse more documents and templates provided by the Texas Commission on Environmental Quality.

Download Form 10121 Permits by Rule (Pbr) Checklist for Facilities (Emission Limitations) - Texas

4.6 of 5 (9 votes)
  • Form 10121 Permits by Rule (Pbr) Checklist for Facilities (Emission Limitations) - Texas

    1

  • Form 10121 Permits by Rule (Pbr) Checklist for Facilities (Emission Limitations) - Texas, Page 2

    2

  • Form 10121 Permits by Rule (Pbr) Checklist for Facilities (Emission Limitations) - Texas, Page 3

    3

  • Form 10121 Permits by Rule (Pbr) Checklist for Facilities (Emission Limitations) - Texas, Page 1
  • Form 10121 Permits by Rule (Pbr) Checklist for Facilities (Emission Limitations) - Texas, Page 2
  • Form 10121 Permits by Rule (Pbr) Checklist for Facilities (Emission Limitations) - Texas, Page 3
Prev 1 2 3 Next
ADVERTISEMENT

Related Documents