Net-Metering Application Form - Vermont

Net-Metering Application Form - Vermont

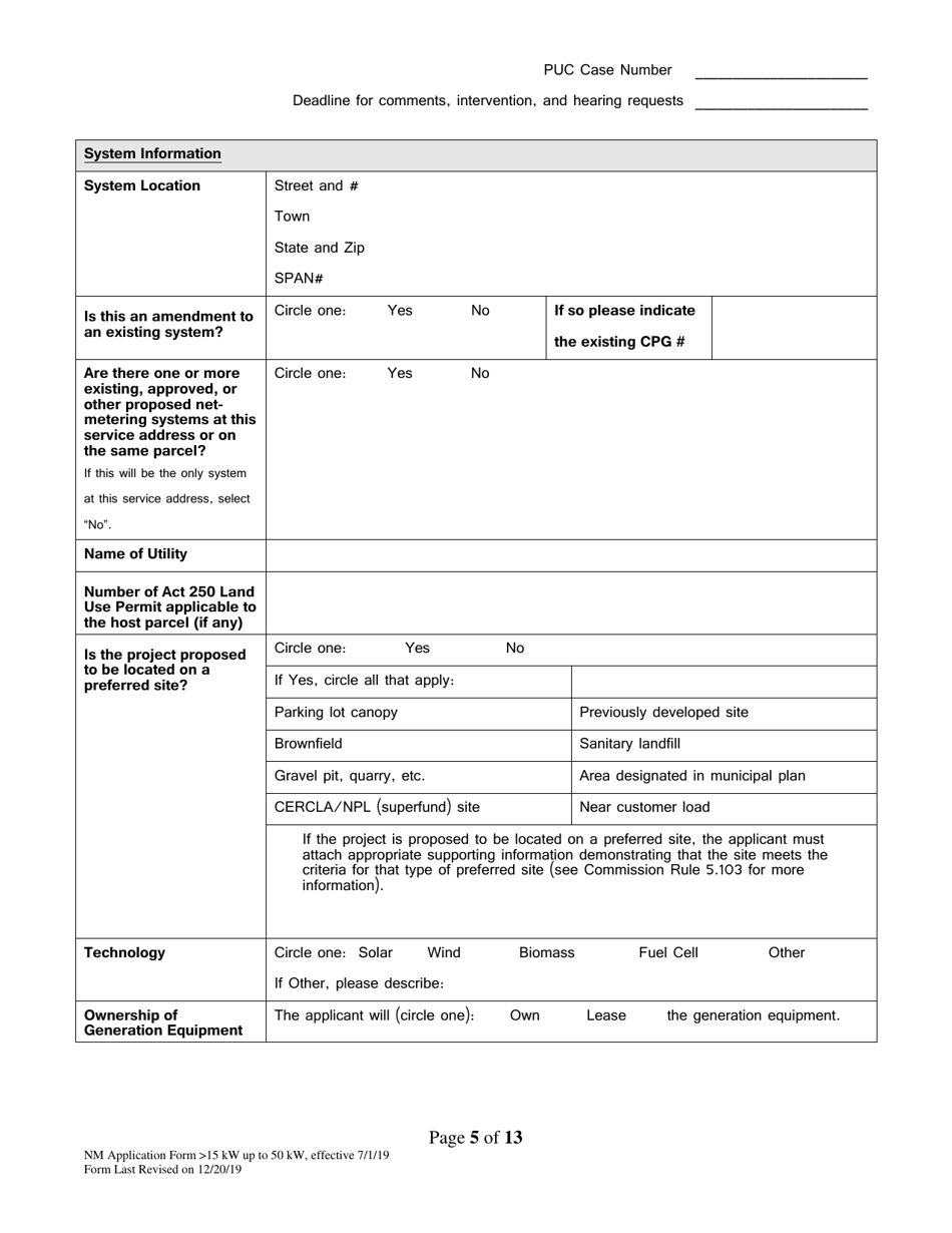
Net-Metering Application Form is a legal document that was released by the Vermont Public Utility Commission - a government authority operating within Vermont.

FAQ

Q: What is net metering?
A: Net metering is a billing arrangement that allows utility customers to receive credit for the excess electricity they generate and send back to the grid.

Q: Who is eligible for net metering in Vermont?
A: Residential, commercial, and agricultural customers who generate electricity from eligible renewable energy sources, such as solar or wind, are eligible for net metering in Vermont.

Q: What information do I need to provide in the net metering application?
A: You will need to provide information about your renewable energy system, such as its capacity, location, and the equipment used.

Q: Are there any fees associated with net metering in Vermont?
A: Yes, there are fees associated with net metering in Vermont. These fees vary depending on the size of your renewable energy system and other factors. You should consult with your electric utility to determine the specific fees.

Q: How long does it take for the net metering application to be processed?
A: The processing time for a net metering application in Vermont can vary, but it typically takes a few weeks to a couple of months.

Q: What happens after my net metering application is approved?
A: Once your net metering application is approved, your electric utility will install a bi-directional meter that can measure the electricity you consume from the grid and the excess electricity you generate and send back to the grid.

Q: Can I participate in net metering if I rent my property?
A: If you rent your property in Vermont, you may still be able to participate in net metering. However, you will need to have a written agreement with your landlord and meet certain criteria.

Q: What are the benefits of net metering?
A: The benefits of net metering include financial savings on your electricity bill, the ability to generate clean and renewable energy, and the potential to earn credits for the excess electricity you generate.

Q: Are there any limitations to net metering in Vermont?
A: There are certain limitations to net metering in Vermont, such as caps on the total amount of net metering capacity allowed in the state and restrictions on the types of renewable energy systems that are eligible for net metering. You should consult with your electric utility for more information.

ADVERTISEMENT

Form Details:

  • Released on December 20, 2019;
  • The latest edition currently provided by the Vermont Public Utility Commission;
  • Ready to use and print;
  • Easy to customize;
  • Compatible with most PDF-viewing applications;
  • Fill out the form in our online filing application.

Download a printable version of the form by clicking the link below or browse more documents and templates provided by the Vermont Public Utility Commission.

Download Net-Metering Application Form - Vermont

4.7 of 5 (17 votes)
  • Net-Metering Application Form - Vermont

    1

  • Net-Metering Application Form - Vermont, Page 2

    2

  • Net-Metering Application Form - Vermont, Page 3

    3

  • Net-Metering Application Form - Vermont, Page 4

    4

  • Net-Metering Application Form - Vermont, Page 5

    5

  • Net-Metering Application Form - Vermont, Page 6

    6

  • Net-Metering Application Form - Vermont, Page 7

    7

  • Net-Metering Application Form - Vermont, Page 8

    8

  • Net-Metering Application Form - Vermont, Page 9

    9

  • Net-Metering Application Form - Vermont, Page 10

    10

  • Net-Metering Application Form - Vermont, Page 11

    11

  • Net-Metering Application Form - Vermont, Page 12

    12

  • Net-Metering Application Form - Vermont, Page 13

    13

  • Net-Metering Application Form - Vermont, Page 1
  • Net-Metering Application Form - Vermont, Page 2
  • Net-Metering Application Form - Vermont, Page 3
  • Net-Metering Application Form - Vermont, Page 4
  • Net-Metering Application Form - Vermont, Page 5
  • Net-Metering Application Form - Vermont, Page 6
  • Net-Metering Application Form - Vermont, Page 7
  • Net-Metering Application Form - Vermont, Page 8
  • Net-Metering Application Form - Vermont, Page 9
  • Net-Metering Application Form - Vermont, Page 10
  • Net-Metering Application Form - Vermont, Page 11
  • Net-Metering Application Form - Vermont, Page 12
  • Net-Metering Application Form - Vermont, Page 13
Prev 1 2 3 4 5 ... 13 Next
ADVERTISEMENT