Money Laundering Risk Assessment Form - Michael Parkes Chartered Surveyors

Money Laundering Risk Assessment Form - Michael Parkes Chartered Surveyors

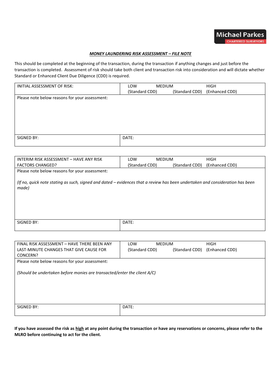
The Money Laundering Risk Assessment Form is used by Michael Parkes Chartered Surveyors to identify and evaluate the risks of potential money laundering activities in their business operations. It helps them comply with anti-money laundering regulations and develop appropriate measures to prevent illicit financial activities.

FAQ

Q: What is the Money Laundering Risk Assessment Form?
A: The Money Laundering Risk Assessment Form is a tool used by Michael Parkes Chartered Surveyors to assess the risks associated with money laundering.

Q: Why is a Money Laundering Risk Assessment Form necessary?
A: The form is necessary as it helps to identify the potential risk factors and vulnerabilities to money laundering activities within the surveying business.

Q: What information is gathered using the Money Laundering Risk Assessment Form?
A: The form collects information about clients, their transactions, and their business activities that could provide insights into potential money laundering risks.

Q: Who is responsible for completing the Money Laundering Risk Assessment Form?
A: The staff members of Michael Parkes Chartered Surveyors are responsible for completing the form.

Q: What happens after completing the Money Laundering Risk Assessment Form?
A: After completing the form, Michael Parkes Chartered Surveyors can implement appropriate measures to mitigate the identified money laundering risks.

Q: Is the Money Laundering Risk Assessment Form a legal requirement?
A: Yes, it is a legal requirement for Michael Parkes Chartered Surveyors to conduct and document a risk assessment regarding money laundering activities.

ADVERTISEMENT

Download Money Laundering Risk Assessment Form - Michael Parkes Chartered Surveyors

4.7 of 5 (22 votes)
  • Money Laundering Risk Assessment Form - Michael Parkes Chartered Surveyors

    1

  • Money Laundering Risk Assessment Form - Michael Parkes Chartered Surveyors, Page 2

    2

  • Money Laundering Risk Assessment Form - Michael Parkes Chartered Surveyors, Page 1
  • Money Laundering Risk Assessment Form - Michael Parkes Chartered Surveyors, Page 2
Prev 1 2 Next
ADVERTISEMENT